Билдинг Бокс предлага за продажба тристаен апартамент в новострояща се сграда в сърцето на столицата.
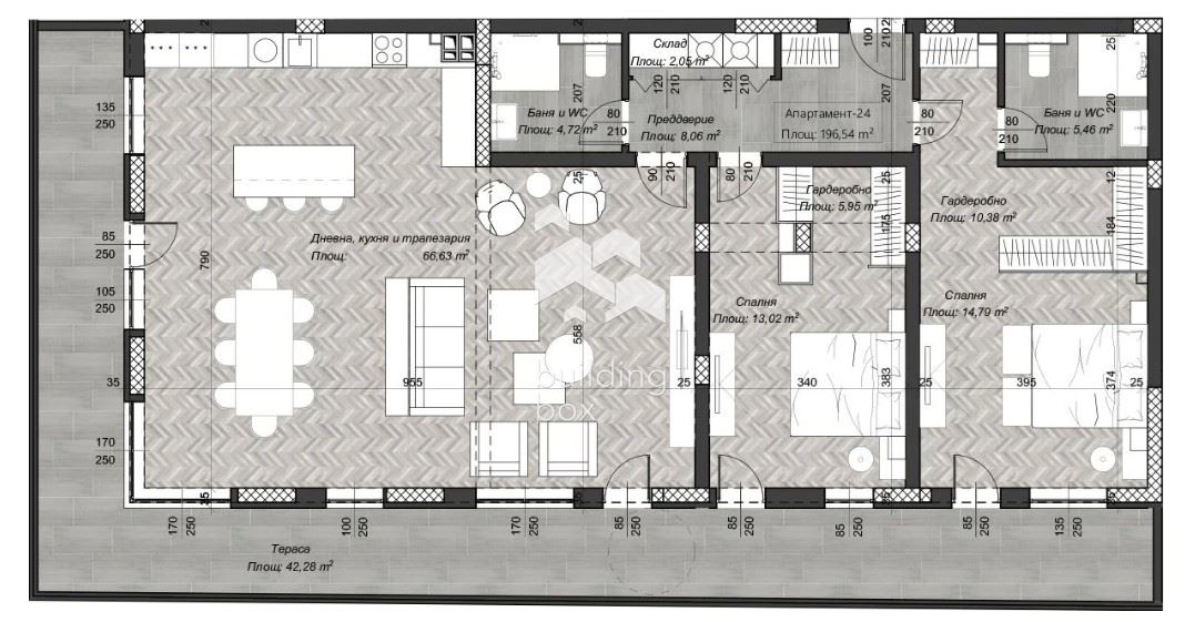
Апартаментът се намира на пети етаж от общо четиринадесет етажа, със застроена площ от 196.54 кв.м и има следното разпределение: антре, дневна с кухненски бокс, две спални, две бани с тоалетни, склад, тераса. Жилището е с изложение запад и север. Отопление на ток.
Сградата ще бъде изпълнена с висок клас материали, фасада - HPL панели и мазилка. Заложено е на дограма с немски алуминиев профил с троен стъклопакет Schüco. Тухлите ще бъдат керамични с дебелина 25см и 12см от Wienerberger. Входни пространства с декоративна рамка с облицовка от камък, а асансьорът е на доказалата се марка OTIS, изпозвана в сгради като Емпайър Стейт Билдинг и Бурж Халифа.
Проектът ще бъде реализиран от опитен строител с над 70 реализирани проекта. Локацията е отлична в близост до паркове, метро и множество спирки на градски транспорт, магазини, ресторанти, училища и детски градини. Жилищата са функционални, светли и просторни с височина на таваните 3.20 м.
Сградата е на етап фундамент и ще бъде завършена в началото на 2028г.
Предлагат се и други апартаменти, както надземни и подземни паркоместа на цени от 40 000 евро.
Билдинг Бокс предоставя безплатна консултация и съдействие при финансиране на избрания от Вас имот.
Оферта № 23929
| €
2,500 €
500,000 €
| месеца
36 месеца
360 месеца
| %
2.45%
5%
Месечна вноска
ГПР %
Общо дължима сума
Действия по вписване на ипотека (Еднократно)
€20.45
Такса за проверка и анализ на обезпечението по кредита (Еднократно)
€204.52
Такса план (Месечно)
€6.13
Такса за оценка на обезпечение (Еднократно)
€120.15
Powered by Credia
Подходящ се за предварително одобрение!
Lorem ipsum dolor sit amet, consectetur adipiscing elit. Maecenas imperdiet leo nisl, et porta massa tempus eget. Sed vestibulum sagittis ante eu dictum.
Ценови диапазон за наем на 3-стаен в Център, София
€850 - €1050
Процент на възвръщаемост:
2.25%
*Цените са ориентировачни. За повече информация се свържете с наш консултант.
Powered by Credia
Подходящ се за предварително одобрение!
Lorem ipsum dolor sit amet, consectetur adipiscing elit. Maecenas imperdiet leo nisl, et porta massa tempus eget. Sed vestibulum sagittis ante eu dictum.
Сравняване на списъци
СравниМоля, въведете вашето потребителско име или имейл адрес. Ще получите връзка за създаване на нова парола по имейл.
Академиите в София, Пловдив и Варна се провеждат 3 пъти в годината – в началото на всяка година, на пролет и на есен.
Очаквайте да се свържем с вас, за да се запишете за следващият свободен прозорец.