Имоти
Имоти

4-стаен апартамент в Центъра

София, Център

Общ преглед

  • 4-стаен
  • Тип имот
  • 3
  • Спални
  • 220
  • 2028
  • Година на строеж

Описание

Билдинг Бокс предлага за продажба четиристаен апартамент в новострояща се сграда в сърцето на столицата.


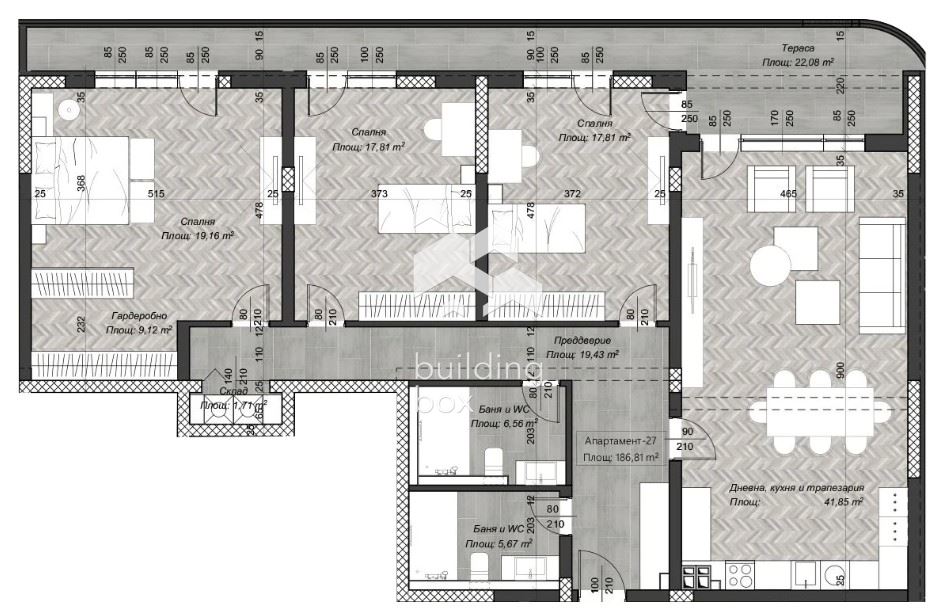
Апартаментът се намира на пети етаж от общо четиринадесет етажа, със застроена площ от 186 кв.м и има следното разпределение: антре, дневна с кухненски бокс, три спални, две бани с тоалетни, склад, тераса. Жилището е с изложение изток. Отопление на ток.


Сградата ще бъде изпълненa с висок клас материали, фасада - HPL панели и мазилка. Заложено е на дограма с немски алуминиев профил с троен стъклопакет Schüco. Тухлите ще бъдат керамични с дебелина 25см и 12см от Wienerberger. Входни пространства с декоративна рамка с облицовка от камък, а асансьорът е на доказалата се марка OTIS, изпозвана в сгради като Емпайър Стейт Билдинг и Бурж Халифа.


Проектът ще бъде реализиран от опитен строител с над 70 реализирани проекта. Локацията е отлична в близост до паркове, метро и множество спирки на градски транспорт, магазини, ресторанти, училища и детски градини. Жилищата са функционални, светли и просторни с височина на таваните 3.20 м.


Сградата е на етап фундамент и ще бъде завършена в началото на 2028г.


Предлагат се и други апартаменти, както надземни и подземни паркоместа на цени от 40 000 евро. 


Билдинг Бокс предоставя безплатна консултация и съдействие при финансиране на избрания от Вас имот.


Оферта № 23934

Имаш интерес?

Свържи се
с нас

Имаш интерес?

Свържи се
с нас

Допълнителни детайли

  • Номер на имота: 23934
  • Цена: € 533,053
    (1,042,561.05 лв.)
  • Спални: 3
  • Площ: 220
  • Статус на имота: Купи

Размер на кредит

| €

2,500 €

500,000 €

Срок на кредит

| месеца

36 месеца

360 месеца

Лихвен процент

| %

2.45%

5%

Месечна вноска

ГПР %

Общо дължима сума

Действия по вписване на ипотека (Еднократно)

€20.45

Такса за проверка и анализ на обезпечението по кредита (Еднократно)

€204.52

Такса план (Месечно)

€6.13

Такса за оценка на обезпечение (Еднократно)

€120.15

Powered by Credia

Стойност на имота

€533053 / 1042562 лв.

Няма данни за наемите в района.

Powered by Credia

Обадете се 0879900994
ПОДОБНИ ИМОТИ

ПОДОБНИ
ИМОТИ

Сравняване на списъци

Сравни
Диана Митева
  • Диана Митева

Внимание

Академиите в София, Пловдив и Варна се провеждат 3 пъти в годината – в началото на всяка година, на пролет и на есен.

Очаквайте да се свържем с вас, за да се запишете за следващият свободен прозорец.

This site is registered on wpml.org as a development site. Switch to a production site key to remove this banner.