Имоти
Имоти

Четиристаен апартамент с акт 14

Пловдив, Остромила

Общ преглед

  • 4-стаен
  • Тип имот
  • 3
  • Спални
  • 156
  • 2026
  • Година на строеж

Описание

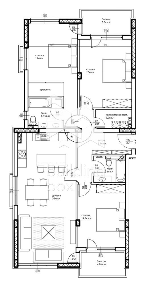
БИЛДИНГ БОКС предлага за продажба просторен четиристаен апартамент в нова сграда в кв. Остромила.


Предимства на имота:

- ЛОКАЦИЯ: В самото начало на кв. Остромила, в близост до VIA Парк Юг.

- РАЗПРЕДЕЛЕНИЕ: Просторна всекидневна с кухненски бокс, три спални, антре, три санитарни помещения и две тераси.

- ЕТАЖНОСТ: 2-ри етаж от общо 4.

- ОТОПЛЕНИЕ: Електричество.

- ИЗЛОЖЕНИЕ: ЗАПАД/ЮГ/ИЗТОК

- ПАРКИРАНЕ: Възможност за закупуване на паркомясто или гараж.

- СГРАДА: Апартаментът се намира в нова сграда от инвеститор с дългогодишна история и опит.

- ЕТАП НА СТРОИТЕЛСТВО: АКТ 14. Въвеждане в експлоатация (АКТ 16) се очаква през 2027г.

- СХЕМА НА ПЛАЩАНЕ: 20% сега – останалата част от сумата при АКТ 16. 


БИЛДИНГ БОКС предоставя безплатна консултация и съдействие при финансиране на избрания от Вас имот.


Оферта №13851

Имаш интерес?

Свържи се
с нас

Имаш интерес?

Свържи се
с нас

Допълнителни детайли

  • Номер на имота: 13851
  • Цена: € 225,707
    (441,444.52 лв.)
  • Спални: 3
  • Площ: 156
  • Статус на имота: Купи
Обадете се 0877190777
ПОДОБНИ ИМОТИ

ПОДОБНИ
ИМОТИ

Сравняване на списъци

Сравни
Екатерина Кирилова
  • Екатерина Кирилова

Внимание

Академиите в София, Пловдив и Варна се провеждат 3 пъти в годината – в началото на всяка година, на пролет и на есен.

Очаквайте да се свържем с вас, за да се запишете за следващият свободен прозорец.

This site is registered on wpml.org as a development site. Switch to a production site key to remove this banner.