Имоти
Имоти

Четиристаен апартамент срещу Ловен парк в кв. Витоша

София, Витоша

Общ преглед

  • 4-стаен
  • Тип имот
  • 3
  • Спални
  • 146
  • 2027
  • Година на строеж

Описание

РАЗСРОЧЕНА СХЕМА НА ПЛАЩАНЕ, БЕЗ ОСКЪПЯВАНЕ!


ИЗГРАЖДАНЕ НА ПОДОВО ОТОПЛЕНИЕ В ЦЕНАТА!


Билдинг Бокс предлага за продажба просторен четиристаен апартамент в модерна новострояща се сграда в кв. Витоша.


Сградата е разположена в един от най-атрактивните и бързо развиващи се райони на града, осигуряващ бърз достъп до основните транспортни артерии на столицата, както и непосредствена близост до автобусни спирки, детски градини и училища и Зоопарк София. Разположена на ул. “Симеоновско шосе” 12 - между булевардите „Симеоновско шосе“ и „Филип Кутев“. Локацията предлага възможност за бързо придвижване до центъра на града, но същевременно позволява уединение и спокойствие благодарение на близостта си до Ловен парк, Зоопарк София и Витоша.


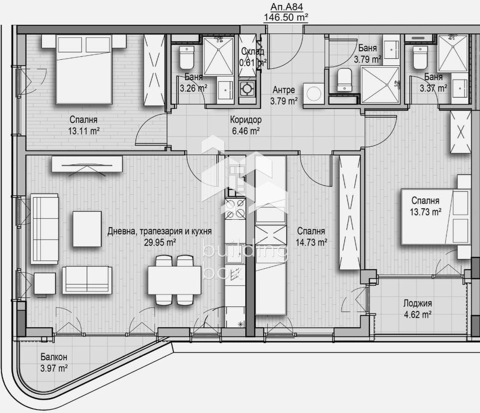
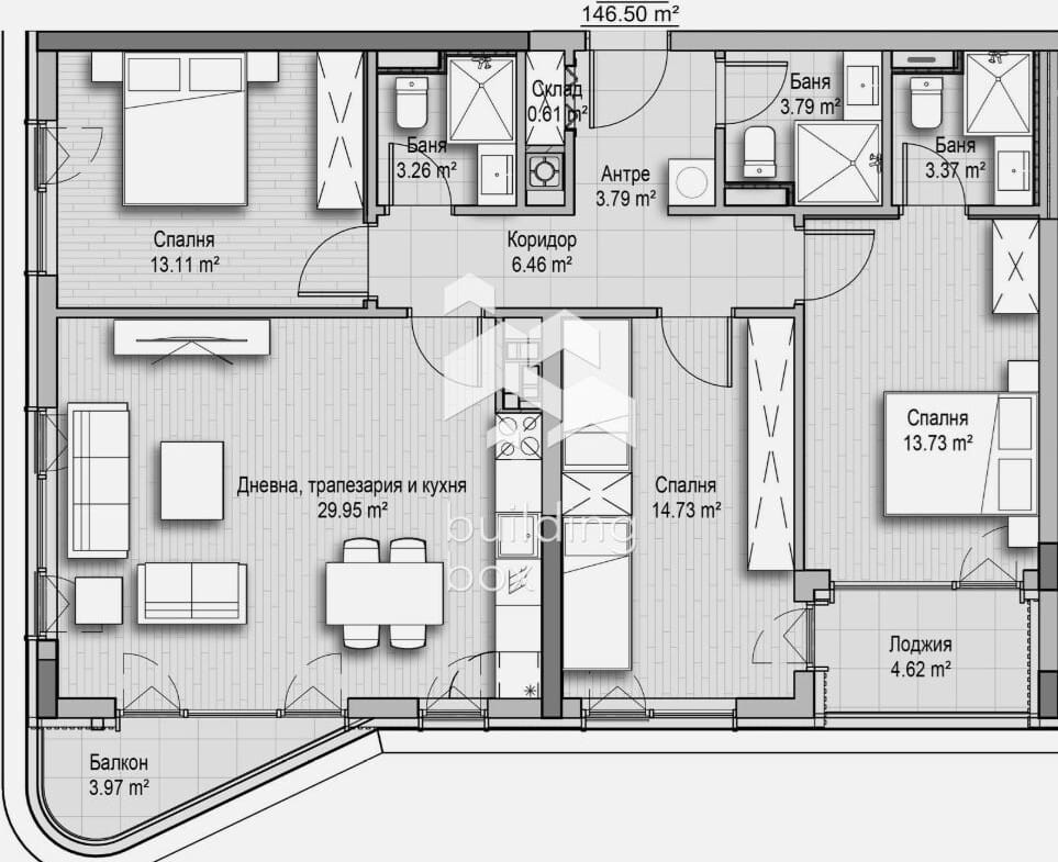
Апартаментът е на 8-ми последен етаж, с чиста площ 121.36 кв.м и обща площ 146.50 кв.м. и е единствения четиристаен апартамент проектиран в сградата!


Изложение: юг (едната спалня), юг-запад (всекидневната) и запад (две спални). На запад се открива панорамна гледка към Зоологическа градина, а на юг нескриваема гледка към планина Витоша.


Сградата е на изкопни дейности, АКТ 16 се очаква до края на 2027г.


Отоплението е на газ.


Имотът включва:

  • Просторна дневна - 29.95 кв.м
  • Спалня със собствена баня - 13.73 кв.м + 3.37 кв.м (баня с тоалетна)
  • Втора спалня - 13.11 кв.м
  • Трета спалня - 14.73 кв.м
  • Две бани с тоалетни - 3.26 кв.м и 3.79 кв.м
  • Лоджия (запад) - 4.62 кв.м
  • Балкон (югозапад) - 3.97 кв.м


Паркиране: Към имота може да се закупят подземни паркоместа и гаражи.


ПРЕДИМСТВА НА ПРОЕКТА:


На ниво Партер се намират 4 търговски помещения, предлагащи всичко необходимо за удобството на живущите в сградата. На покрива на сградата ще има фотоволтаична електроцентрала, която ще произвежда повече от 110 000 кВтч чиста енергия на година, което ще покрива напълно потреблението на всички енергоконсуматори в общите части на комплекса.


Билдинг Бокс предоставя безплатна консултация и съдействие при финансиране на избрания от Вас имот.


Цената е без ДДС.


Оферта № 20757

Имаш интерес?

Свържи се
с нас

Имаш интерес?

Свържи се
с нас

Допълнителни детайли

  • Номер на имота: 20757
  • Цена: € 411,000
    (803,846.13 лв.)
  • Спални: 3
  • Площ: 146
  • Статус на имота: Купи

Размер на кредит

| €

2,500 €

500,000 €

Срок на кредит

| месеца

36 месеца

360 месеца

Лихвен процент

| %

2.45%

5%

Месечна вноска

ГПР %

Общо дължима сума

Действия по вписване на ипотека (Еднократно)

€20.45

Такса за проверка и анализ на обезпечението по кредита (Еднократно)

€204.52

Такса план (Месечно)

€6.13

Такса за оценка на обезпечение (Еднократно)

€120.15

Powered by Credia

Стойност на имота

€411000 / 803847 лв.

Няма данни за наемите в района.

Powered by Credia

Обадете се 0877734412
ПОДОБНИ ИМОТИ

ПОДОБНИ
ИМОТИ

Сравняване на списъци

Сравни
Антонио Динев
  • Антонио Динев

Внимание

Академиите в София, Пловдив и Варна се провеждат 3 пъти в годината – в началото на всяка година, на пролет и на есен.

Очаквайте да се свържем с вас, за да се запишете за следващият свободен прозорец.

This site is registered on wpml.org as a development site. Switch to a production site key to remove this banner.