Имоти
Имоти

Четиристаен апартамент в новострояща се сграда

Варна, м-т Пчелина

Общ преглед

  • 4-стаен
  • Тип имот
  • 3
  • Спални
  • 116
  • 2025
  • Година на строеж

Описание

БИЛДИНГ БОКС предлага за продажба просторен четиристаен апартамент в новострояща сграда.


-ЛОКАЦИЯ: Сграда, разположена в м-ст Пчелина, в непосредствена близост до кв. Възраждане III. Отличен достъп, улично осветление, тих и спокоен район, до основна пътна артерия, което я прави лесно достъпна и само на 10 минути път от центъра на града

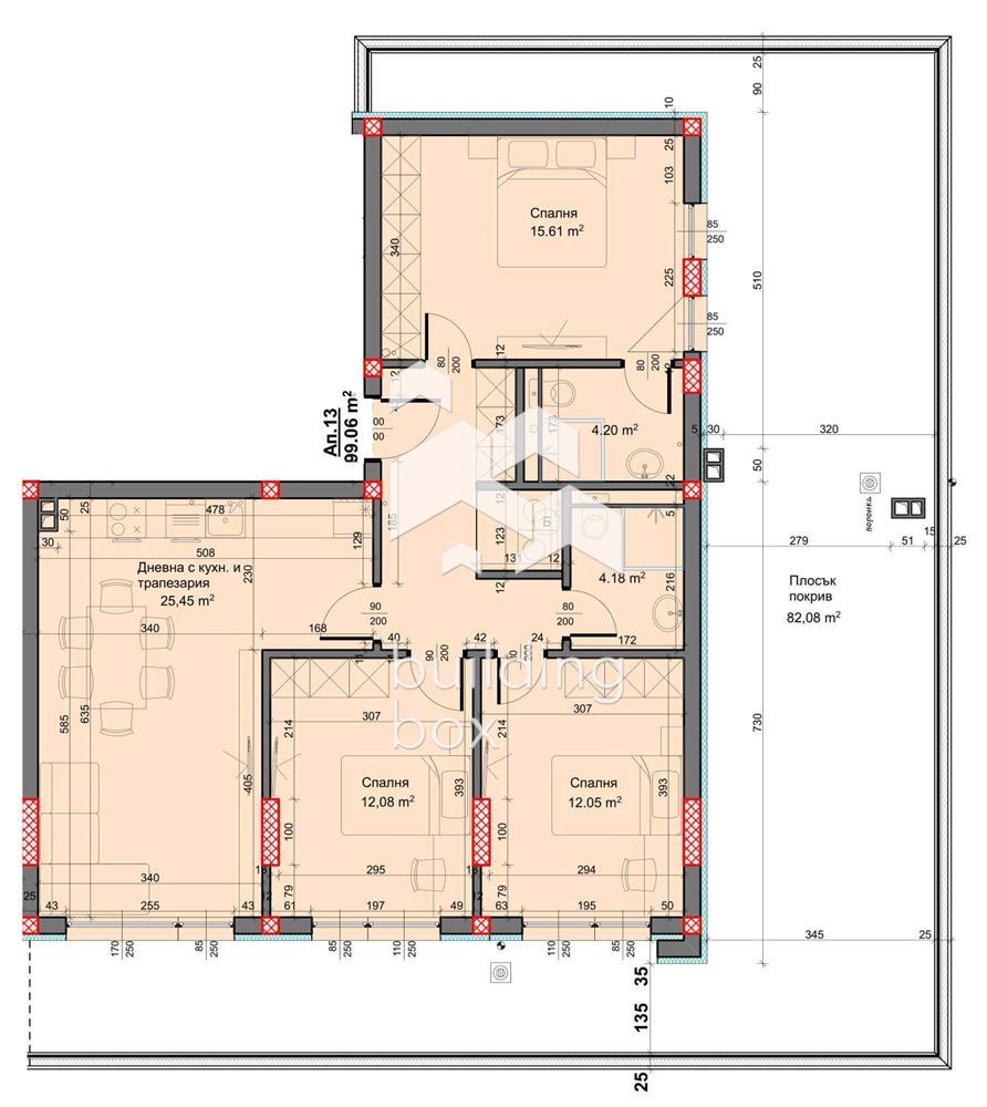
 -РАЗПРЕДЕЛЕНИЕ: Апартаментът се състои от весекидневна с кухненски бокс - 25.45 кв.м, 3 спални по 15.61 кв.м., 12.08 кв.м. и 12.05 кв.м, две бани с тоалет, килер, коридор и покривна тераса.

-ЕТАЖНОСТ: Етаж 4 от общо 4

-ОТОПЛЕНИЕ: Електричество

-ИЗЛОЖЕНИЕ: Изток/Юг/Север

-ПАРКИРАНЕ: Възможност за закупуване на:

-Открито паркомясто;

-Закрито паркомясто;

-СГРАДА: Сграда с модерна визия, с 29 панорамни апартамента. На разположение на живущите са подземни и дворни паркоместа.

-ИНВЕСТИТОР:  Жилищната сграда се изгражда от инвеститор с доказана история от вече завършени сгради, които могат да бъдат разгледани като начин на изпълнение, качество, външен вид и стил. 


Билдинг Бокс предоставя безплатна консултация и съдействие при финансиране на избрания от Вас имот.

Оферта №15952

Имаш интерес?

Свържи се
с нас

Имаш интерес?

Свържи се
с нас

Допълнителни детайли

  • Номер на имота: 15952
  • Цена: € 223,004
    (436,157.91 лв.)
  • Спални: 3
  • Площ: 116
  • Статус на имота: Купи

Размер на кредит

| €

2,500 €

500,000 €

Срок на кредит

| месеца

36 месеца

360 месеца

Лихвен процент

| %

2.45%

5%

Месечна вноска

ГПР %

Общо дължима сума

Действия по вписване на ипотека (Еднократно)

€20.45

Такса за проверка и анализ на обезпечението по кредита (Еднократно)

€204.52

Такса план (Месечно)

€6.13

Такса за оценка на обезпечение (Еднократно)

€120.15

Powered by Credia

Стойност на имота

€223004 / 436158 лв.

Няма данни за наемите в района.

Powered by Credia

Обадете се 0879900993
ПОДОБНИ ИМОТИ

ПОДОБНИ
ИМОТИ

Сравняване на списъци

Сравни
Силвия Георгиева
  • Силвия Георгиева

Внимание

Академиите в София, Пловдив и Варна се провеждат 3 пъти в годината – в началото на всяка година, на пролет и на есен.

Очаквайте да се свържем с вас, за да се запишете за следващият свободен прозорец.

This site is registered on wpml.org as a development site. Switch to a production site key to remove this banner.