БИЛДИНГ БОКС с удоволствие представя Вашия бъдещ дом в сърцето на квартал Западен!
Тази нова, модерна къща е перфектният избор за хора, които търсят спокойствие, пространство и комфорт, без да правят компромис с градските удобства.
Предимства на имота:
- ЛОКАЦИЯ – Сред новопостроени къщи в тиха и подредена зона, с бърз достъп до бул. „Пещерско шосе“ и само на минути от „Гребната база“ – идеално място за спорт, разходки и отдих.
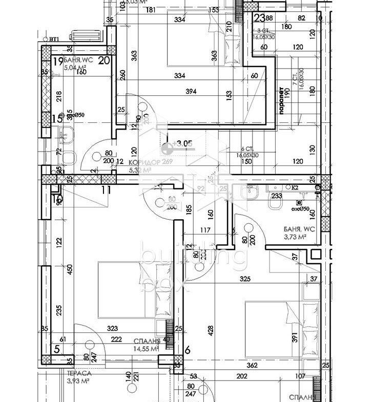
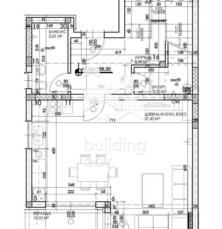
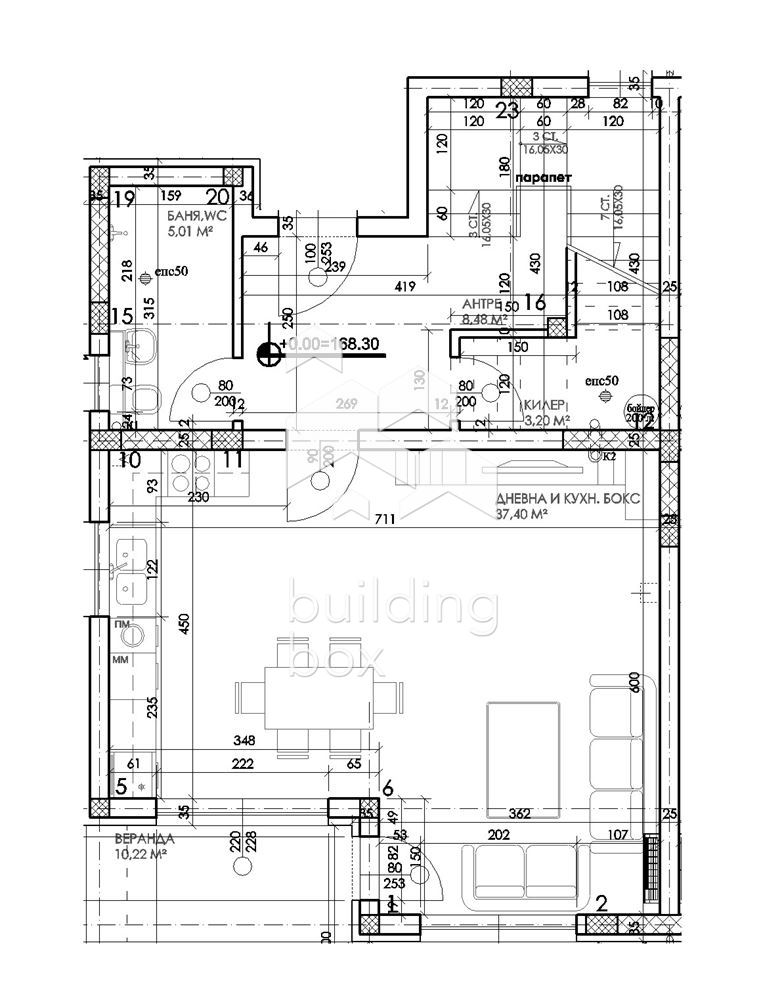
- РАЗПРЕДЕЛЕНИЕ: Функционално разпределение на два етажа с обща площ от 160 кв.м., разпределени както следва:
1. Първи етаж: Просторно входно антре, светла дневна с трапезария и кухненски кът (40 кв.м.), баня с тоалетна, техническо помещение и уютна веранда (10 кв.м.), където ще се наслаждавате на сутрешното си кафе.
2. Втори етаж: Три големи спални, едната от които е със собствена баня, тоалетна и тераса с гледка, общ коридор и още една баня с тоалетна.
- ОТОПЛЕНИЕ: Подготвена за подово отопление – за уют през всички сезони.
- ПАРКИРАНЕ: Има възможност за закупуване на Двоен гараж – 50 000€
Допълнителни предимства:
- СОБСТВЕН ДВОР – 100 кв.м., който е идеален за градина, детски кът или зона за отдих.
- СЪСТОЯНИЕ: Пред АКТ 16 (въвеждане в експлоатация) – възможност да оформите интериора по свой вкус и стил.
БИЛДИНГ БОКС предоставя безплатна консултация и съдействие при финансиране на избрания от Вас имот.
Оферта № 16122
| €
2,500 €
500,000 €
| месеца
36 месеца
360 месеца
| %
2.45%
5%
Месечна вноска
ГПР %
Общо дължима сума
Действия по вписване на ипотека (Еднократно)
€20.45
Такса за проверка и анализ на обезпечението по кредита (Еднократно)
€204.52
Такса план (Месечно)
€6.13
Такса за оценка на обезпечение (Еднократно)
€120.15
Powered by Credia
Подходящ се за предварително одобрение!
Lorem ipsum dolor sit amet, consectetur adipiscing elit. Maecenas imperdiet leo nisl, et porta massa tempus eget. Sed vestibulum sagittis ante eu dictum.
Няма данни за наемите в района.
Powered by Credia
Подходящ се за предварително одобрение!
Lorem ipsum dolor sit amet, consectetur adipiscing elit. Maecenas imperdiet leo nisl, et porta massa tempus eget. Sed vestibulum sagittis ante eu dictum.
Сравняване на списъци
СравниМоля, въведете вашето потребителско име или имейл адрес. Ще получите връзка за създаване на нова парола по имейл.
Академиите в София, Пловдив и Варна се провеждат 3 пъти в годината – в началото на всяка година, на пролет и на есен.
Очаквайте да се свържем с вас, за да се запишете за следващият свободен прозорец.