Имоти
Имоти

ДВУСТАЕН апартамент до Делта планет мол

Варна, Младост 1

Общ преглед

  • 2-стаен
  • Тип имот
  • 1
  • Спалня
  • 69
  • 2027
  • Година на строеж

Описание



БИЛДИНГ БОКС предлага за продажба ДВУСТАЕН апартамент в новострояща се сграда в кв. Младост.


– ЛОКАЦИЯ: Комплексът се намира в предпочитания за живеене от много варненци квартал Младост. Районът предлага множество удобства, като хипермаркет, търговски центрове, училища, детски градини, поликлиника и развита транспортна инфраструктура. На пешеходно разстояние се намират Делта Планет мол, ПГИ Иван Богоров, ОУ Антон Страшимиров, ДГ 30 Синчец, МЦ Младост, стадион Младост и ТЦ Явор

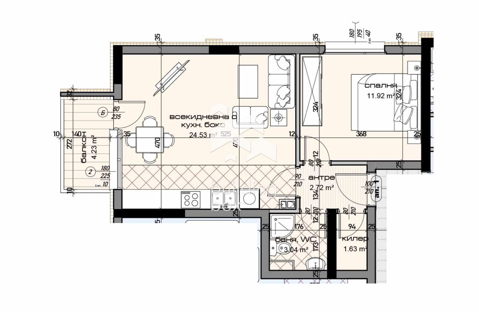
– РАЗПРЕДЕЛЕНИЕ: Всекидневна с кухненски бокс - 24,53 кв.м, спалня - 11,92 кв.м, баня с тоалетна - 3,04 кв.м, входно антре - 2,72 кв.м, балкон - 4,23 кв.м. Чистата застроена площ на апартамента е 56,21 кв.м.

– ЕТАЖ: Етаж 2 от общо 18

– ИЗЛОЖЕНИЕ: Запад/Север

– ОТОПЛЕНИЕ: Електричество.

– ЗАВЪРШЕНОСТ:

Коридори, кухня и стаи: под – циментова замазка, стени – бяла гипсова мазилка, таван – гипсова шпакловка;

Санитарен възел: стени и таван – мазилка, под – замазка, без санитарно обзавеждане;

Ел.инсталация: вътрешна и външна – 100% завършени (плюс електромер);

ВиК: – външна – завършена с монтиран главен водомер, вътрешна – на тапа;

Външна врата: висок клас входни врати – блиндирани

– ПАРКИРАНЕ: Към имота има възможност да се закупят гаражи или паркоместа.

– СТРОИТЕЛСТВО: Тухла.


Билдинг Бокс предоставя безплатна консултация и съдействие при финансиране на избрания от Вас имот.

Оферта № 13347

Имаш интерес?

Свържи се
с нас

Имаш интерес?

Свържи се
с нас

Допълнителни детайли

  • Номер на имота: 13347
  • Цена: € 102,900
    (201,254.91 лв.)
  • Спалня: 1
  • Площ: 69
  • Статус на имота: Купи

Размер на кредит

| €

2,500 €

500,000 €

Срок на кредит

| месеца

36 месеца

360 месеца

Лихвен процент

| %

2.45%

5%

Месечна вноска

ГПР %

Общо дължима сума

Действия по вписване на ипотека (Еднократно)

€20.45

Такса за проверка и анализ на обезпечението по кредита (Еднократно)

€204.52

Такса план (Месечно)

€6.13

Такса за оценка на обезпечение (Еднократно)

€120.15

Powered by Credia

Стойност на имота

€102900 / 201255 лв.

Ценови диапазон за наем на 2-стаен в Младост 1, Варна

€350 - €450

Процент на възвръщаемост:

5.25%

*Цените са ориентировачни. За повече информация се свържете с наш консултант.

Powered by Credia

Обадете се 0879900993
ПОДОБНИ ИМОТИ

ПОДОБНИ
ИМОТИ

Сравняване на списъци

Сравни
Метин Емин
  • Метин Емин

Внимание

Академиите в София, Пловдив и Варна се провеждат 3 пъти в годината – в началото на всяка година, на пролет и на есен.

Очаквайте да се свържем с вас, за да се запишете за следващият свободен прозорец.

This site is registered on wpml.org as a development site. Switch to a production site key to remove this banner.