Имоти
Имоти

Двустаен апартамент – гр. Асеновград

Пловдив, област, гр.Асеновград

Общ преглед

  • 2-стаен
  • Тип имот
  • 1
  • Спалня
  • 76
  • 2026
  • Година на строеж

Описание

БИЛДИНГ БОКС предлага за продажба слънчев двустаен апартамент на шпакловка и замазка.

 

Предимства на имота:

- ЛОКАЦИЯ: На 6 мин. от гр. Пловдив, на 4 минути от летище Пловдив и на 3 минути от центъра на Асеновград.

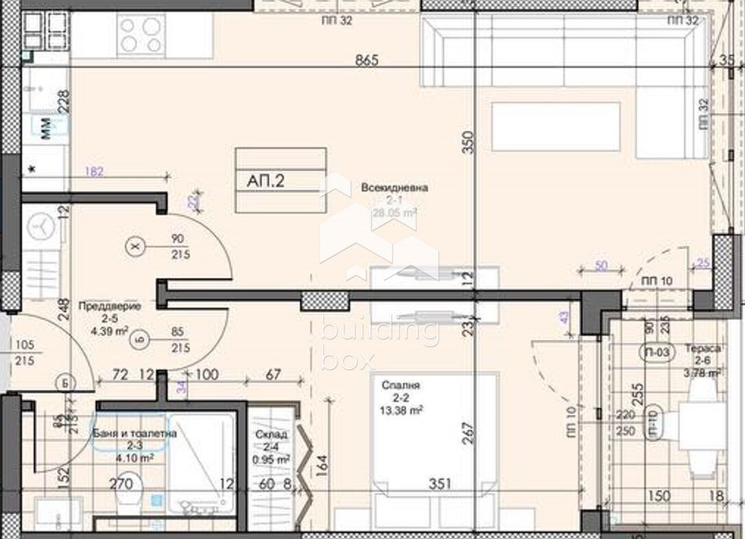
- РАЗПРЕДЕЛЕНИЕ: Просторна всекидневна с кухненски бокс, спалня, баня и тоалетна, тераса.

- ПЛОЩ: Общата площ на апартамента е 75.52 кв.м.

- ИЗЛОЖЕНИЕ: СЕВЕРОИЗТОК/СЕВЕРОЗАПАД.

- ОТОПЛЕНИЕ: Електричество.

- ЕТАЖ: 2-ри етаж от общо 4.

- СИГУРНОСТ: Ограничен достъп с чип.

- ПАРКИРАНЕ: С възможност за закупуване на подземно паркомясто.

- ПРЕДИМСТВА НА СГРАДАТА: Висок клас строителство, правилни форми за лесно обзавеждане, завладяващи гледки, луксозни общи части, HPL панели за естествена регулация на температурата през всеки сезон и нисък разход за отопление. Също така озеленен вътрешен двор, детска площадка и контролиран достъп, както и нисък процент общи части.


БИЛДИНГ БОКС предоставя безплатна консултация и съдействие при финансиране на избрания от Вас имот.


Оферта № 26599

Имаш интерес?

Свържи се
с нас

Имаш интерес?

Свържи се
с нас

Допълнителни детайли

  • Номер на имота: 26599
  • Цена: € 73,254
    (143,272.37 лв.)
  • Спалня: 1
  • Площ: 76
  • Статус на имота: Купи

Размер на кредит

| €

2,500 €

500,000 €

Срок на кредит

| месеца

36 месеца

360 месеца

Лихвен процент

| %

2.45%

5%

Месечна вноска

ГПР %

Общо дължима сума

Действия по вписване на ипотека (Еднократно)

€20.45

Такса за проверка и анализ на обезпечението по кредита (Еднократно)

€204.52

Такса план (Месечно)

€6.13

Такса за оценка на обезпечение (Еднократно)

€120.15

Powered by Credia

Стойност на имота

€73254 / 143273 лв.

Няма данни за наемите в района.

Powered by Credia

Обадете се 0877190777
ПОДОБНИ ИМОТИ

ПОДОБНИ
ИМОТИ

Сравняване на списъци

Сравни
Пепо Корделов
  • Пепо Корделов

Внимание

Академиите в София, Пловдив и Варна се провеждат 3 пъти в годината – в началото на всяка година, на пролет и на есен.

Очаквайте да се свържем с вас, за да се запишете за следващият свободен прозорец.

This site is registered on wpml.org as a development site. Switch to a production site key to remove this banner.