Имоти
Имоти

Двустаен апартамент – кв. Коматево

Пловдив, Коматево

Общ преглед

  • 2-стаен
  • Тип имот
  • 1
  • Спалня
  • 80
  • 2027
  • Година на строеж

Описание

БИЛДИНГ БОКС предлага за продажба двустаен апартамент на шпакловка и замазка в квартал Коматево.


Предимства на имота:

– ЛОКАЦИЯ: Намира се в тиха и спокойна част на квартал Коматево - гр. Пловдив.

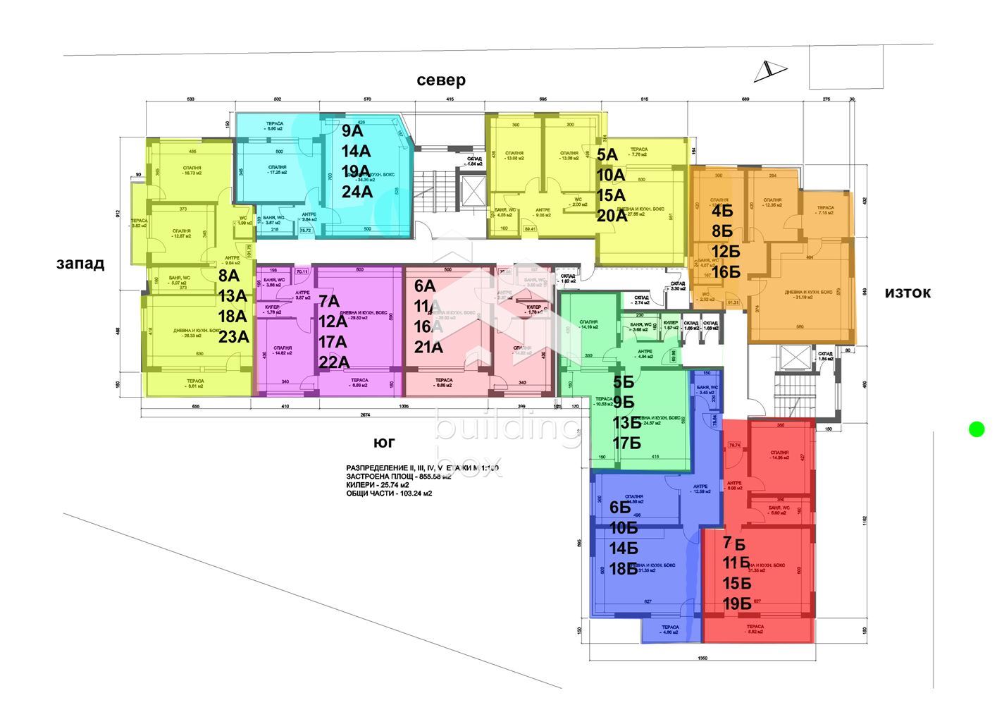
– РАЗПРЕДЕЛЕНИЕ: Просторна всекидневна с кухненски бокс, спалня, баня с тоалетна, отделна тоалетна, антре и голяма тераса.

- ПЛОЩ: Общата площ на апартамента е 80,70 кв.м.

– ИЗЛОЖЕНИЕ: ЮГ/ИЗТОК.

– ОТОПЛЕНИЕ: Електричество.

– ЕТАЖ: 2-ри етаж от общо 6.

– СИГУРНОСТ: Ограничен достъп с чип.

– ПАРКИРАНЕ: С възможност за закупуване на подземно паркомясто.

_ СХЕМА НА ПЛАЩАНЕ:

  • Стандартната схема на плащане е 20% на ПД, 20% на 1-ва плоча, 20% на 3-та плоча, 20% на АКТ14 и 10% на АКТ16.
  • Възможност за плащане на 30% на Предварителен договор и останалите 70% на АКТ14.


БИЛДИНГ БОКС предоставя безплатна консултация и съдействие при финансиране на избрания от Вас имот.


Оферта № 17746

Имаш интерес?

Свържи се
с нас

Имаш интерес?

Свържи се
с нас

Допълнителни детайли

  • Номер на имота: 17746
  • Цена: € 93,000
    (181,892.19 лв.)
  • Спалня: 1
  • Площ: 80
  • Статус на имота: Купи

Размер на кредит

| €

2,500 €

500,000 €

Срок на кредит

| месеца

36 месеца

360 месеца

Лихвен процент

| %

2.45%

5%

Месечна вноска

ГПР %

Общо дължима сума

Действия по вписване на ипотека (Еднократно)

€20.45

Такса за проверка и анализ на обезпечението по кредита (Еднократно)

€204.52

Такса план (Месечно)

€6.13

Такса за оценка на обезпечение (Еднократно)

€120.15

Powered by Credia

Стойност на имота

€93000 / 181893 лв.

Ценови диапазон за наем на 2-стаен в Коматево, Пловдив

€280 - €330

Процент на възвръщаемост:

4.26%

*Цените са ориентировачни. За повече информация се свържете с наш консултант.

Powered by Credia

Обадете се 0877190777
ПОДОБНИ ИМОТИ

ПОДОБНИ
ИМОТИ

Сравняване на списъци

Сравни
Божидар Игнатов
  • Божидар Игнатов

Внимание

Академиите в София, Пловдив и Варна се провеждат 3 пъти в годината – в началото на всяка година, на пролет и на есен.

Очаквайте да се свържем с вас, за да се запишете за следващият свободен прозорец.

This site is registered on wpml.org as a development site. Switch to a production site key to remove this banner.