БИЛДИНГ БОКС предлага за продажба двустаен апартамент в гр. Пловдив.
Предимства на имота:
- ЛОКАЦИЯ: Инфраструктурно най-развита локация в кв. Остромила. Намира се на асфалтов път, в близост до нови ниски сгради и къщи.
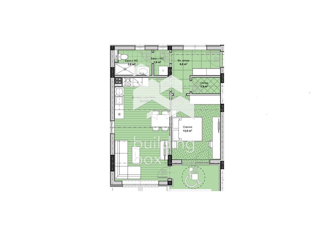
- РАЗПРЕДЕЛЕНИЕ: Просторна всекидневна с кухненски бокс с площ от 23,96 кв.м, спалня с площ от 13,6 кв.м, антре, склад, баня с тоалетна и тераса*.
- ЕТАЖНОСТ: 3-ти етаж от общо 3.
- ОТОПЛЕНИЕ: Електричество.
- ИЗЛОЖЕНИЕ: ЮГОЗАПАД.
- ПАРКИРАНЕ: Наличие на надземни паркоместа и гаражи.
- СГРАДА: Апартаментът се намира в първа сграда, част от комплекс от 3 малки бутикови сгради на 3 етажа, всяка с по 3 апартамента на етаж.
- СХЕМИ НА ПЛАЩАНЕ: 30% / 30% / 30% / 10% - стандартна схема на плащане.
- ЕТАП НА СТРОИТЕЛСТВО: Сградата е в начален етап на строителство. Въвеждане в експлоатация се очаква през 2027г.
* НИСЪК ПРОЦЕНТ ОБЩИ ЧАСТИ
БИЛДИНГ БОКС предоставя безплатна консултация и съдействие при финансиране на избрания от Вас имот.
Оферта № 24275
| €
2,500 €
500,000 €
| месеца
36 месеца
360 месеца
| %
2.45%
5%
Месечна вноска
ГПР %
Общо дължима сума
Действия по вписване на ипотека (Еднократно)
€20.45
Такса за проверка и анализ на обезпечението по кредита (Еднократно)
€204.52
Такса план (Месечно)
€6.13
Такса за оценка на обезпечение (Еднократно)
€120.15
Powered by Credia
Подходящ се за предварително одобрение!
Lorem ipsum dolor sit amet, consectetur adipiscing elit. Maecenas imperdiet leo nisl, et porta massa tempus eget. Sed vestibulum sagittis ante eu dictum.
Ценови диапазон за наем на 2-стаен в Остромила, Пловдив
€450 - €550
Процент на възвръщаемост:
7.28%
*Цените са ориентировачни. За повече информация се свържете с наш консултант.
Powered by Credia
Подходящ се за предварително одобрение!
Lorem ipsum dolor sit amet, consectetur adipiscing elit. Maecenas imperdiet leo nisl, et porta massa tempus eget. Sed vestibulum sagittis ante eu dictum.
Сравняване на списъци
СравниМоля, въведете вашето потребителско име или имейл адрес. Ще получите връзка за създаване на нова парола по имейл.
Академиите в София, Пловдив и Варна се провеждат 3 пъти в годината – в началото на всяка година, на пролет и на есен.
Очаквайте да се свържем с вас, за да се запишете за следващият свободен прозорец.