Имоти
Имоти

ДВУСТАЕН апартамент, квартал Аспарухово

Варна, Аспарухово

Общ преглед

  • 2-стаен
  • Тип имот
  • 1
  • Спалня
  • 59

Описание

Представяме ви уютен двустаен апартамент, разположен в един от най-привлекателните и спокойни райони на гр. Варна – квартал Аспарухово. Идеалният избор за тези, които търсят баланс между градския комфорт и близостта до природата.


БИЛДИНГ БОКС предлага за продажба ДВУСТАЕН апартамент в новострояща се сграда в кв. Аспарухово.


– ЛОКАЦИЯ: Комплексът се намира в предпочитания за живеене от много варненци кв. Аспарухово. Местоположението на комплекса осигурява редица удобства: простор, зелени площи, прекрасна морска панорама, слънчево изложение, чист въздух, отлична пътна инфраструктура, в близост до автобусна спирка на градски транспорт и хипермаркет LIDL, в близост до плажа с бърз и удобен пешеходен достъп, тишина, спокойна атмосфера и всичко това в комбинация осигурява една здравословна среда на живот.

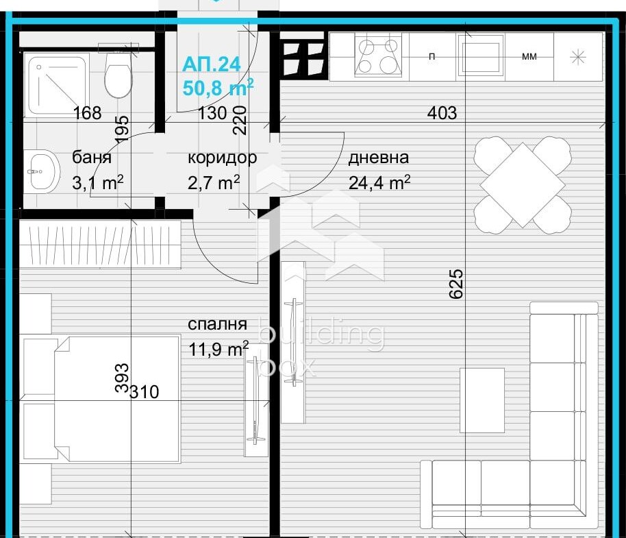
– РАЗПРЕДЕЛЕНИЕ: Всекидневна с кухненски бокс - 24.4 кв.м, спалня - 11.9 кв.м, баня с тоалетна - 3.10 кв.м, входно антре - 2.7 кв.м. Чистата застроена площ на апартамента е 50.8 кв.м.

– ЕТАЖ: Етаж 5 от общо 10

– ИЗЛОЖЕНИЕ: Югозапад

– ОТОПЛЕНИЕ: Електричество.

– ЗАВЪРШЕНОСТ:

Коридори, кухня и стаи: под – циментова замазка, стени – бяла гипсова мазилка, таван – гипсова шпакловка;

Санитарен възел: стени и таван – мазилка, под – замазка, без санитарно обзавеждане;

Ел.инсталация: вътрешна и външна – 100% завършени (плюс електромер);

ВиК: – външна – завършена с монтиран главен водомер, вътрешна – на тапа;

Напълно завършени общи части с поставени подови настилки от гранитогрес, боядисани стени и тавани, автоматично осветление с фотоклетки (по проект).

Външна врата: висок клас входни врати – блиндирани

– ПАРКИРАНЕ: Към имота има възможност да се закупят гаражи или паркоместа.

– СТРОИТЕЛСТВО: Тухла.

–ЕТАП : Сградата е в строеж.


Билдинг Бокс предоставя безплатна консултация и съдействие при финансиране на избрания от Вас имот.


Оферта № 19633

Имаш интерес?

Свържи се
с нас

Имаш интерес?

Свържи се
с нас

Допълнителни детайли

  • Номер на имота: 19633
  • Цена: € 93,800
    (183,456.85 лв.)
  • Спалня: 1
  • Площ: 59
  • Статус на имота: Купи

Размер на кредит

| €

2,500 €

500,000 €

Срок на кредит

| месеца

36 месеца

360 месеца

Лихвен процент

| %

2.45%

5%

Месечна вноска

ГПР %

Общо дължима сума

Действия по вписване на ипотека (Еднократно)

€20.45

Такса за проверка и анализ на обезпечението по кредита (Еднократно)

€204.52

Такса план (Месечно)

€6.13

Такса за оценка на обезпечение (Еднократно)

€120.15

Powered by Credia

Стойност на имота

€93800 / 183457 лв.

Ценови диапазон за наем на 2-стаен в Аспарухово, Варна

€280 - €330

Процент на възвръщаемост:

4.22%

*Цените са ориентировачни. За повече информация се свържете с наш консултант.

Powered by Credia

Обадете се 0879900993
ПОДОБНИ ИМОТИ

ПОДОБНИ
ИМОТИ

Сравняване на списъци

Сравни
Иван Стефанов Иванов
  • Иван Стефанов Иванов

Внимание

Академиите в София, Пловдив и Варна се провеждат 3 пъти в годината – в началото на всяка година, на пролет и на есен.

Очаквайте да се свържем с вас, за да се запишете за следващият свободен прозорец.

This site is registered on wpml.org as a development site. Switch to a production site key to remove this banner.