Имоти
Имоти

Двустаен апартамент в кв. Красно село

София, Красно Село

Общ преглед

  • 2-стаен
  • Тип имот
  • 1
  • Спалня
  • 64
  • 2024
  • Година на строеж

Описание

БИЛДИНГ БОКС предлага за продажба двустаен апартамент в кв. Красно село.


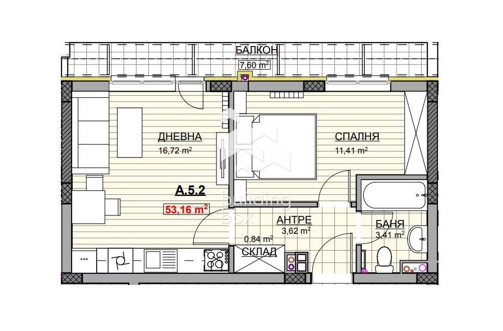
Застроената площ на имота е 53,16 кв.м и се състои от антре, дневна с кухненски бокс, спалня, баня с тоалетна, склад и тераса.

Апартаментът се намира на пети етаж от общо седем. Отоплението е предвидено на ТЕЦ. Изложението е изток.


Бутикова сграда, разполагаща с апартаменти, търговски обекти, подземни и надземни паркоместа. В проекта са заложени апартаменти с функционални разпределения, благоприятни изложения и минимализиран процент общи части. 

Сградата е след Акт 14 и ще бъде завършена през 2025г.


Инвеститорът е с дългогодишен опит, има повече от 10 завършени сгради с обща застроена площ над 80 000 кв.м, както в столицата, така и по черноморски и планински курорти. 


В близост до бул. “България“, бул. „Цар Борис III“ и бул. „Гоце Делчев“, което осигурява бърз достъп до централната част на столицата и останалите райони на града. Местоположението на сградата е перфектно обезпечено от спирки на градски транспорт - на 200 м от метростанция „Красно село“, на 300 м от спирки на тролеи, трамваи и автобуси.

В непосредствена близост има детски градини, училища, множество търговски обекти, пазар „Красно село“, ресторанти, заведения за бързо хранене и разнообразие от магазини за всички нужди на един човек.


БИЛДИНГ БОКС предоставя безплатна консултация и съдействие при финансиране на избрания от Вас имот.

Оферта 7749

Имаш интерес?

Свържи се
с нас

Имаш интерес?

Свържи се
с нас

Допълнителни детайли

  • Номер на имота: 7749
  • Цена: € 178,813
    (349,727.83 лв.)
  • Спалня: 1
  • Площ: 64
  • Статус на имота: Купи

Размер на кредит

| €

2,500 €

500,000 €

Срок на кредит

| месеца

36 месеца

360 месеца

Лихвен процент

| %

2.45%

5%

Месечна вноска

ГПР %

Общо дължима сума

Действия по вписване на ипотека (Еднократно)

€20.45

Такса за проверка и анализ на обезпечението по кредита (Еднократно)

€204.52

Такса план (Месечно)

€6.13

Такса за оценка на обезпечение (Еднократно)

€120.15

Powered by Credia

Стойност на имота

€178813 / 349728 лв.

Ценови диапазон за наем на 2-стаен в Красно Село, София

€650 - €750

Процент на възвръщаемост:

5.03%

*Цените са ориентировачни. За повече информация се свържете с наш консултант.

Powered by Credia

Обадете се 0877734412
ПОДОБНИ ИМОТИ

ПОДОБНИ
ИМОТИ

Сравняване на списъци

Сравни
Патрисия Ангелова
  • Патрисия Ангелова

Внимание

Академиите в София, Пловдив и Варна се провеждат 3 пъти в годината – в началото на всяка година, на пролет и на есен.

Очаквайте да се свържем с вас, за да се запишете за следващият свободен прозорец.

This site is registered on wpml.org as a development site. Switch to a production site key to remove this banner.