Имоти
Имоти

Двустаен апартамент в кв. Витоша

София, Витоша

Общ преглед

  • 2-стаен
  • Тип имот
  • 1
  • Спалня
  • 48
  • 2026
  • Година на строеж

Описание

Двустаен апартамент с гледка към Витоша – последен етаж, кв. Витоша, зад комплекс Макси


БИЛДИНГ БОКС предлага за продажба двустаен апартамент в сграда, разположена непосредствено зад комплекс „Макси“ в кв. Витоша. Сградата е в етап Акт 14, като завършване с Акт 16 се очаква до април 2026 г.


Сградата ще бъде изпълнена с висококачествени материали – минерална мазилка, 15 см топлоизолация, асансьори Orona. Апартаментите ще се предават на шпакловка и замазка, с изводи на тапа.


В сградата се предлагат подземни паркоместа на цена от 30 000 евро.


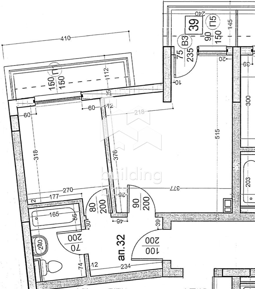
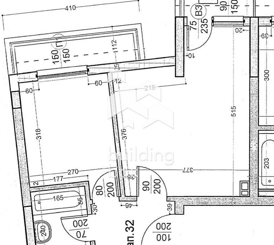
За имота (Ап. 32):

Апартаментът се намира на последния пети етаж и предлага 41,30 кв.м светла площ и 48,48 кв.м обща площ. Изложението е западно с панорамна гледка към Витоша.


Състои се от входно антре, хол с кухня и трапезария, баня с тоалетна и две тераси – една с излаз от дневната и една от спалнята.


БИЛДИНГ БОКС предоставя безплатна консултация и съдействие при финансиране на избрания от Вас имот.


Оферта № 24443

Имаш интерес?

Свържи се
с нас

Имаш интерес?

Свържи се
с нас

Допълнителни детайли

  • Номер на имота: 24443
  • Цена: € 135,000
    (264,037.05 лв.)
  • Спалня: 1
  • Площ: 48
  • Статус на имота: Купи

Размер на кредит

| €

2,500 €

500,000 €

Срок на кредит

| месеца

36 месеца

360 месеца

Лихвен процент

| %

2.45%

5%

Месечна вноска

ГПР %

Общо дължима сума

Действия по вписване на ипотека (Еднократно)

€20.45

Такса за проверка и анализ на обезпечението по кредита (Еднократно)

€204.52

Такса план (Месечно)

€6.13

Такса за оценка на обезпечение (Еднократно)

€120.15

Powered by Credia

Стойност на имота

€135000 / 264038 лв.

Ценови диапазон за наем на 2-стаен в Витоша, София

€650 - €750

Процент на възвръщаемост:

6.67%

*Цените са ориентировачни. За повече информация се свържете с наш консултант.

Powered by Credia

Обадете се 0877734412
ПОДОБНИ ИМОТИ

ПОДОБНИ
ИМОТИ

Сравняване на списъци

Сравни
Виктор Данданов
  • Виктор Данданов

Внимание

Академиите в София, Пловдив и Варна се провеждат 3 пъти в годината – в началото на всяка година, на пролет и на есен.

Очаквайте да се свържем с вас, за да се запишете за следващият свободен прозорец.

This site is registered on wpml.org as a development site. Switch to a production site key to remove this banner.