Имоти
Имоти

Двустаен апартамент в новострояща се жилищна сграда

Варна, Владиславово

Общ преглед

  • 2-стаен
  • Тип имот
  • 1
  • Спалня
  • 65
  • 2028
  • Година на строеж

Описание

БИЛДИНГ БОКС предлага за продажба двустаен апартамент в новострояща се жилищна сграда.

– ЛОКАЦИЯ: Жилищната сграда се намира в кв. Владиславово. Локация с бърз достъп до главен булевард, спирки на градски транспорт, търговски обекти, медицински центрове.

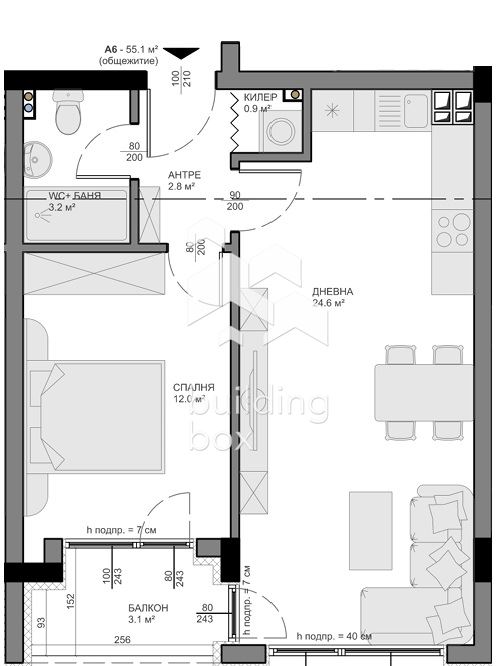
– РАЗПРЕДЕЛЕНИЕ: Всекидневна с кухненски бокс с площ от 24.06 кв.м., спалня - 12.00 кв.м., антре, баня и тоалетна, балкон

– ЕТАЖНОСТ: Етаж 2 от 5

ИЗЛОЖЕНИЕ: Юг/Изток

– ОТОПЛЕНИЕ: Електричество

– ПАРКИРАНЕ: Налични подземни паркоместа, гаражи, както и външни паркоместа, които могат да бъдат закупени допълнително.

– ЕТАП НА СТРОИТЕЛСТВО: С разрешение за строеж, открита строителна площадка

– СГРАДА: Сградата е проектирана на 5 жилищни етажа, с общо 42 апартамента и 2 офиса. Апартаментите разполагат с функционални разпределения.


ИНВЕСТИТОР: Инвеститор с дългогодишен опит и утвърден в сферата на жилищно, промишлено строителство, както и в ремонти на сгради и съоръжения.

 

Билдинг Бокс предоставя безплатна консултация и съдействие при финансиране на избрания от Вас имот.


Оферта №26540

Имаш интерес?

Свържи се
с нас

Имаш интерес?

Свържи се
с нас

Допълнителни детайли

  • Номер на имота: 26540
  • Цена: € 85,900
    (168,005.80 лв.)
  • Спалня: 1
  • Площ: 65
  • Статус на имота: Купи

Размер на кредит

| €

2,500 €

500,000 €

Срок на кредит

| месеца

36 месеца

360 месеца

Лихвен процент

| %

2.45%

5%

Месечна вноска

ГПР %

Общо дължима сума

Действия по вписване на ипотека (Еднократно)

€20.45

Такса за проверка и анализ на обезпечението по кредита (Еднократно)

€204.52

Такса план (Месечно)

€6.13

Такса за оценка на обезпечение (Еднократно)

€120.15

Powered by Credia

Стойност на имота

€85900 / 168006 лв.

Ценови диапазон за наем на 2-стаен в Владиславово, Варна

€310 - €410

Процент на възвръщаемост:

5.73%

*Цените са ориентировачни. За повече информация се свържете с наш консултант.

Powered by Credia

Обадете се 0879900993
ПОДОБНИ ИМОТИ

ПОДОБНИ
ИМОТИ

Сравняване на списъци

Сравни
Силвия Георгиева
  • Силвия Георгиева

Внимание

Академиите в София, Пловдив и Варна се провеждат 3 пъти в годината – в началото на всяка година, на пролет и на есен.

Очаквайте да се свържем с вас, за да се запишете за следващият свободен прозорец.

This site is registered on wpml.org as a development site. Switch to a production site key to remove this banner.