Имоти
Имоти

ДВУСТАЕН апартамент в новострояща се сграда до парк Възраждане

Варна, Възраждане 4

Общ преглед

  • 2-стаен
  • Тип имот
  • 1
  • Спалня
  • 76
  • 2028
  • Година на строеж

Описание

БИЛДИНГ БОКС предлага за продажба ДВУСТАЕН апартамент в новострояща се сграда до парк Възраждане

 

-ЛОКАЦИЯТА:  Локацията позволява удобства на живущите, възможност за отдаване под наем, благодарение на близостта до главните пътни артерии и големи вериги на хранителни магазини, учебни заведения, спирки на градски транспорт и други удобства. Сградата ще се намира на крачки от новоизградения парк Възраждане.

 

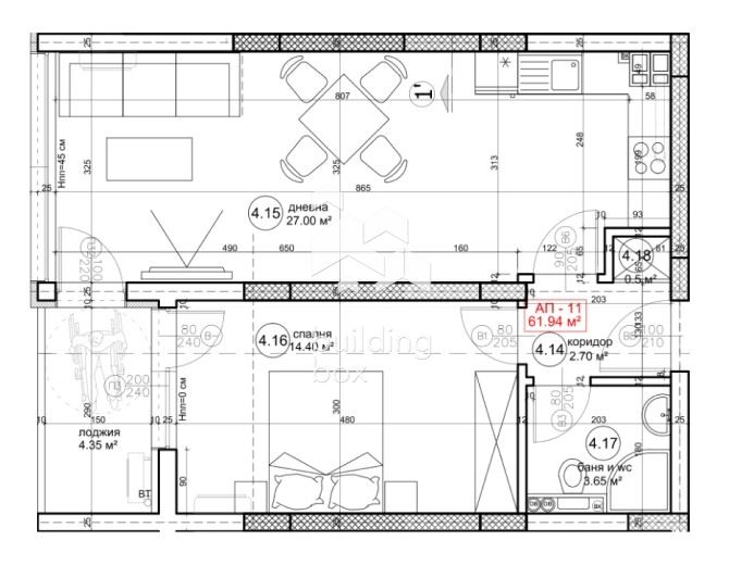
-РАЗПРЕДЕЛЕНИЕ: Апартаментът се състои от всекидневна с кухненски бокс - 27.00 кв.м., спалня – 14.40 кв.м., лоджия, баня с тоалетна,перално помещение, коридор.

 

-ЕТАЖНОСТ: Етаж 4 от общо 13

 

-ОТОПЛЕНИЕ:  Електричество

 

-ИЗЛОЖЕНИЕ: Запад

 

-СТРОИТЕЛСТВО: Тухла


-ПАРКИРАНЕ : Към имота има възможност да се закупи паркомясто;

 

-СГРАДА: Сградата е с разрешение за строеж. Очаква се Акт 16 - 2028 година

 

-ИНВЕСТИТОР: Инвеститорът е показал история на вече завършени имоти, които могат да бъдат разгледани като начин на изпълнение, качество, външен вид и стил.

 

Билдинг Бокс предлага безплатна консултация и съдействие при финансиране на избрания от Вас имот

 

Оферта №25456

Имаш интерес?

Свържи се
с нас

Имаш интерес?

Свържи се
с нас

Допълнителни детайли

  • Номер на имота: 25456
  • Цена: € 124,000
    (242,522.92 лв.)
  • Спалня: 1
  • Площ: 76
  • Статус на имота: Купи

Размер на кредит

| €

2,500 €

500,000 €

Срок на кредит

| месеца

36 месеца

360 месеца

Лихвен процент

| %

2.45%

5%

Месечна вноска

ГПР %

Общо дължима сума

Действия по вписване на ипотека (Еднократно)

€20.45

Такса за проверка и анализ на обезпечението по кредита (Еднократно)

€204.52

Такса план (Месечно)

€6.13

Такса за оценка на обезпечение (Еднократно)

€120.15

Powered by Credia

Стойност на имота

€124000 / 242523 лв.

Ценови диапазон за наем на 2-стаен в Възраждане 4, Варна

€350 - €450

Процент на възвръщаемост:

4.35%

*Цените са ориентировачни. За повече информация се свържете с наш консултант.

Powered by Credia

Обадете се 0879900993
ПОДОБНИ ИМОТИ

ПОДОБНИ
ИМОТИ

Сравняване на списъци

Сравни
Силвия Георгиева
  • Силвия Георгиева

Внимание

Академиите в София, Пловдив и Варна се провеждат 3 пъти в годината – в началото на всяка година, на пролет и на есен.

Очаквайте да се свържем с вас, за да се запишете за следващият свободен прозорец.

This site is registered on wpml.org as a development site. Switch to a production site key to remove this banner.