Имоти
Имоти

ДВУСТАЕН апатрамент в нов грандиозен проект

Варна, Младост 1

Общ преглед

  • 2-стаен
  • Тип имот
  • 1
  • Спалня
  • 81
  • 2027
  • Година на строеж

Описание

Do you want to learn more about real estate market in Bulgaria? Are you interested in this offer? Make an appointment and learn more about it. 

We have a qualified team of professionals and we’ll help you have a smooth and successful buying experience. The best way to protect yourself from fraud is to work with us.


БИЛДИНГ БОКС предлага за продажба ДВУСТАЕН апартамент в новострояща се сграда в кв. Младост.


– ЛОКАЦИЯ: Комплексът се намира в предпочитания за живеене от много варненци кв. Младост. Районът предлага множество удобства, като хипермаркет, търговски центрове, училища, детски градини, поликлиника и развита транспортна инфраструктура. На пешеходно разстояние се намират Делта Планет мол, ПГИ Иван Богоров, ОУ Антон Страшимиров, ДГ 30 Синчец, МЦ Младост, стадион Младост и ТЦ Явор

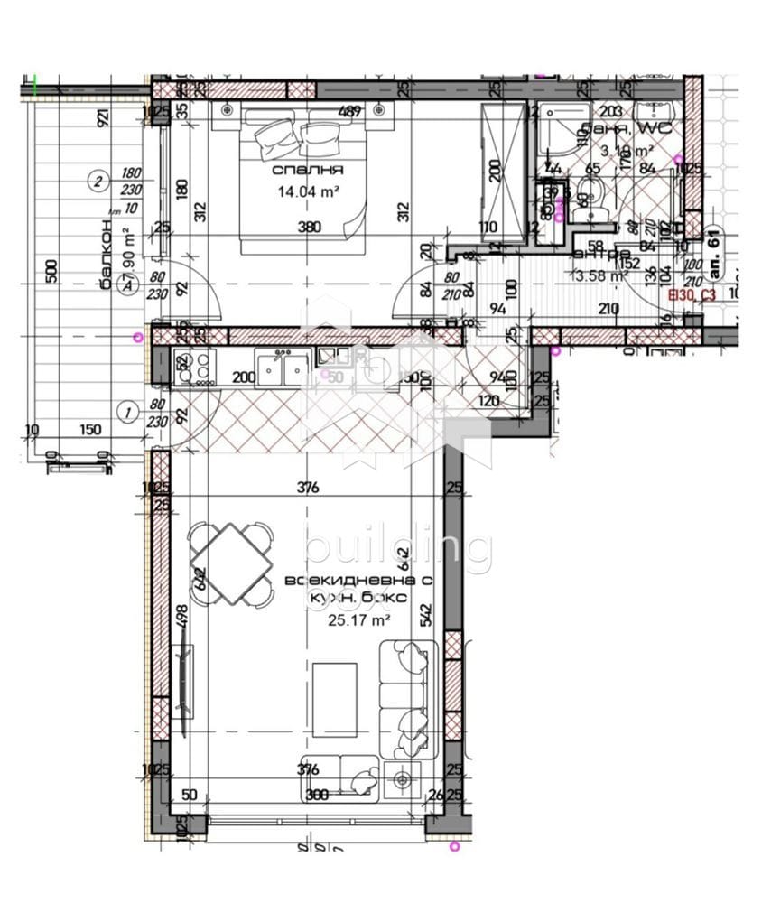
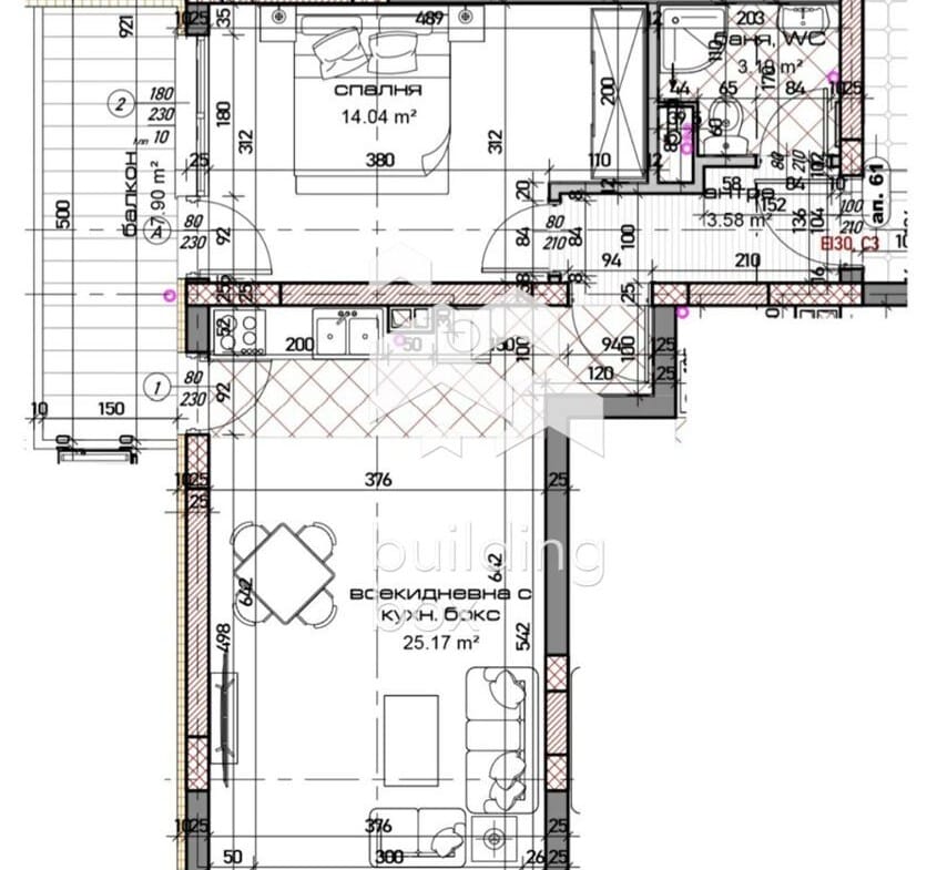
– РАЗПРЕДЕЛЕНИЕ: Всекидневна с кухненски бокс - 25,17 кв.м, спалня - 14,04 кв.м, баня с тоалетна - 3,18 кв.м, входно антре - 3,58 кв.м, балкон - 7,90 кв.м и избено помещение - 3,17 кв.м. Чистата застроена площ на апартамента е 63,23 кв.м.

– ЕТАЖ: Етаж 7 от общо 18

– ИЗЛОЖЕНИЕ: Запад

– ОТОПЛЕНИЕ: Електричество.

– ЗАВЪРШЕНОСТ:

Коридори, кухня и стаи: под – циментова замазка, стени – бяла гипсова мазилка, таван – гипсова шпакловка;

Санитарен възел: стени и таван – мазилка, под – замазка, без санитарно обзавеждане;

Ел.инсталация: вътрешна и външна – 100% завършени (плюс електромер);

ВиК: – външна – завършена с монтиран главен водомер, вътрешна – на тапа;

Външна врата: висок клас входни врати – блиндирани

– ПАРКИРАНЕ: Към имота има възможност да се закупят гаражи или паркоместа.

– СТРОИТЕЛСТВО: Тухла.


Билдинг Бокс предоставя безплатна консултация и съдействие при финансиране на избрания от Вас имот.

Оферта № 13514

Имаш интерес?

Свържи се
с нас

Имаш интерес?

Свържи се
с нас

Допълнителни детайли

  • Номер на имота: 13514
  • Цена: € 129,900
    (254,062.32 лв.)
  • Спалня: 1
  • Площ: 81
  • Статус на имота: Купи

Размер на кредит

| €

2,500 €

500,000 €

Срок на кредит

| месеца

36 месеца

360 месеца

Лихвен процент

| %

2.45%

5%

Месечна вноска

ГПР %

Общо дължима сума

Действия по вписване на ипотека (Еднократно)

€20.45

Такса за проверка и анализ на обезпечението по кредита (Еднократно)

€204.52

Такса план (Месечно)

€6.13

Такса за оценка на обезпечение (Еднократно)

€120.15

Powered by Credia

Стойност на имота

€129900 / 254063 лв.

Ценови диапазон за наем на 2-стаен в Младост 1, Варна

€350 - €450

Процент на възвръщаемост:

4.16%

*Цените са ориентировачни. За повече информация се свържете с наш консултант.

Powered by Credia

Обадете се 0879900993
ПОДОБНИ ИМОТИ

ПОДОБНИ
ИМОТИ

Сравняване на списъци

Сравни
Метин Емин
  • Метин Емин

Внимание

Академиите в София, Пловдив и Варна се провеждат 3 пъти в годината – в началото на всяка година, на пролет и на есен.

Очаквайте да се свържем с вас, за да се запишете за следващият свободен прозорец.

This site is registered on wpml.org as a development site. Switch to a production site key to remove this banner.