БИЛДИНГ БОКС има удоволствието да Ви представи двустаен луксозно обзаведен апартамент в гр. Пловдив.
Предимства на имота:
- ЛОКАЦИЯ: Сградата се намира в един от най-предпочитаните квартали - Христо Смирненски, в близост до магазини, маркети, болници.
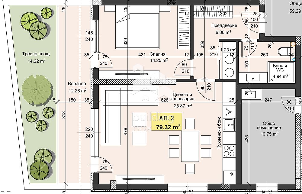
- РАЗПРЕДЕЛЕНИЕ: Дневна и трапезария с кухненски бокс, с площ от 28,87 кв.м, спалня - 14,25 кв.м, баня и WC - 4,94 кв.м, преддверие с площ от 6,86 кв.м, веранда - 12,26 кв.м и тревна площ - 14,22 кв.м.
- ЕТАЖ: 1-ви етаж от общо 7.
- ПЛОЩ: Апартаментът е с обща площ от 98,71 кв.м.
- ОТОПЛЕНИЕ: Електричество.
- ИЗЛОЖЕНИЕ: ЮГ/ ЗАПАД.
- СТРОИТЕЛСТВО: Тухла. Сградата е въведена в експлоатация през 2023г.
- ПРЕДИМСТВА: Висок клас строителство и обзавеждане по индивидуален проект. Апартаментът е изключително светъл, просторен и уютен.
БИЛДИНГ БОКС предоставя безплатна консултация и съдействие при финансиране на избрания от Вас имот.
Оферта № 18464
| €
2,500 €
500,000 €
| месеца
36 месеца
360 месеца
| %
2.45%
5%
Месечна вноска
ГПР %
Общо дължима сума
Действия по вписване на ипотека (Еднократно)
€20.45
Такса за проверка и анализ на обезпечението по кредита (Еднократно)
€204.52
Такса план (Месечно)
€6.13
Такса за оценка на обезпечение (Еднократно)
€120.15
Powered by Credia
Подходящ се за предварително одобрение!
Lorem ipsum dolor sit amet, consectetur adipiscing elit. Maecenas imperdiet leo nisl, et porta massa tempus eget. Sed vestibulum sagittis ante eu dictum.
Ценови диапазон за наем на 2-стаен в Смирненски, Пловдив
€450 - €550
Процент на възвръщаемост:
3.34%
*Цените са ориентировачни. За повече информация се свържете с наш консултант.
Powered by Credia
Подходящ се за предварително одобрение!
Lorem ipsum dolor sit amet, consectetur adipiscing elit. Maecenas imperdiet leo nisl, et porta massa tempus eget. Sed vestibulum sagittis ante eu dictum.
Сравняване на списъци
СравниМоля, въведете вашето потребителско име или имейл адрес. Ще получите връзка за създаване на нова парола по имейл.
Академиите в София, Пловдив и Варна се провеждат 3 пъти в годината – в началото на всяка година, на пролет и на есен.
Очаквайте да се свържем с вас, за да се запишете за следващият свободен прозорец.