Имоти
Имоти

Двустаен южен апартамент в нова сграда до УМБАЛ Св.Марина

Варна, Изгрев

Общ преглед

  • 2-стаен
  • Тип имот
  • 72
  • 2026
  • Година на строеж

Описание



БИЛДИНГ БОКС продава двустаен апартамент в новострояща се сграда в близост до УМБАЛ Св.Марина.

Предимства на имота :

  • ЛОКАЦИЯ: Сградата е разположена на 350 метра от бул.Христо Смирненски, локация гарантираща комуникативност и спокойствие едновременно, далеч от шумните улици.
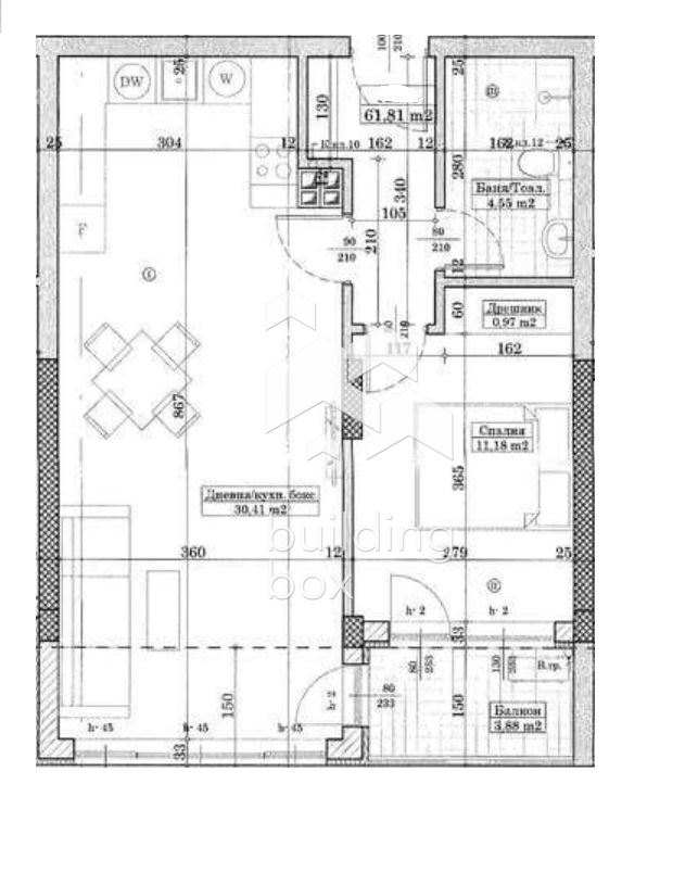
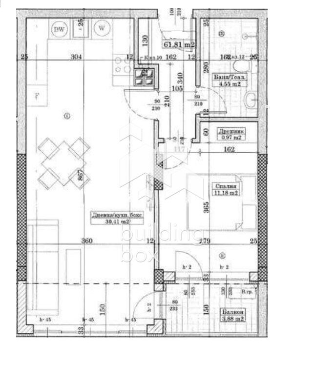
  • РАЗПРЕДЕЛЕНИЕ: Жилището се състои от дневна стая с кухненски бокс, спалня с дрешник, баня с тоалетна, входно антре, килерна ниша и тераса.
  • ЕТАЖНОСТ: Жилището е ситуирано на етаж 6 от общо 11.
  • ОТОПЛЕНИЕ: Електричество
  • ИЗЛОЖЕНИЕ: Юг
  • ПАРКИРАНЕ: На полуподземното ниво са планирани 22 паркоместа, а допълнително в сутерена има още 32 паркоместа.
  • СГРАДА: Сградата е удобно разположена, така че всички жилища да разполагат с достатъчно пространство и светлина. Проектирани са апартаменти с правилни форми и максимално функционално разпределение на помещенията. Предвижда се изчистена красива фасада изпълнена с висококачествени материали.
  • ЕТАП НА СТРОИТЕЛСТВО: Сградата е с Акт 14.
  • СТРОИТЕЛ: Изпълнител е строителна фирма с проекти с РЗП общо над 33 500 кв.м., доказана на строителния пазар с портфолио от над 15 обекта, които могат да бъдат разгледани по всяко време като стил, качество и начин на изпълнение.


Билдинг Бокс предоставя безплатна консултация и съдействие при финансиране на избрания от Вас имот.

Оферта № 10156

Имаш интерес?

Свържи се
с нас

Имаш интерес?

Свържи се
с нас

Допълнителни детайли

  • Номер на имота: 10156
  • Цена: € 145,998
    (285,547.27 лв.)
  • Площ: 72
  • Статус на имота: Купи

Размер на кредит

| €

2,500 €

500,000 €

Срок на кредит

| месеца

36 месеца

360 месеца

Лихвен процент

| %

2.45%

5%

Месечна вноска

ГПР %

Общо дължима сума

Действия по вписване на ипотека (Еднократно)

€20.45

Такса за проверка и анализ на обезпечението по кредита (Еднократно)

€204.52

Такса план (Месечно)

€6.13

Такса за оценка на обезпечение (Еднократно)

€120.15

Powered by Credia

Стойност на имота

€145998 / 285548 лв.

Няма данни за наемите в района.

Powered by Credia

Обадете се 0879900993
ПОДОБНИ ИМОТИ

ПОДОБНИ
ИМОТИ

Сравняване на списъци

Сравни
Вивиан Дончева
  • Вивиан Дончева

Внимание

Академиите в София, Пловдив и Варна се провеждат 3 пъти в годината – в началото на всяка година, на пролет и на есен.

Очаквайте да се свържем с вас, за да се запишете за следващият свободен прозорец.

This site is registered on wpml.org as a development site. Switch to a production site key to remove this banner.