Имоти
Имоти

Едноетажна къща – с. Ягодово

Пловдив, област, с.Ягодово

Общ преглед

  • Къща
  • Тип имот
  • 2
  • Спални
  • 98
  • 2025
  • Година на строеж

Описание

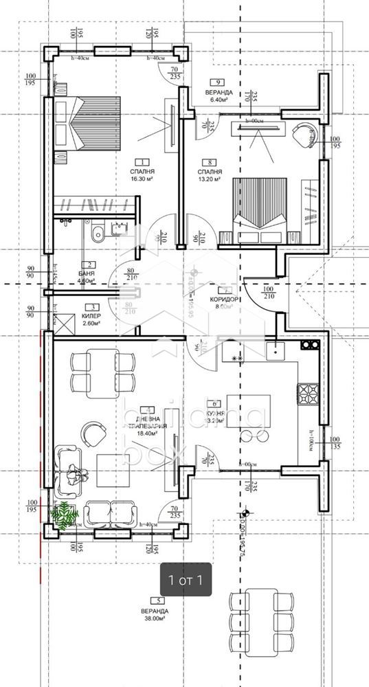
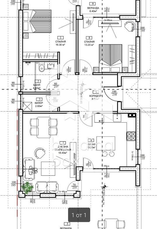
БИЛДИНГ БОКС има удоволствието да Ви представи ексклузивно за продажба самостоятелна едноетажна къща с РЗП от 142 кв.м., разположена в предпочитаното за живеене село Ягодово, само на 12 км. от гр. Пловдив.


- ЛОКАЦИЯ: Село Ягодово, само на 12 км. от гр. Пловдив.

- РАЗПРЕДЕЛЕНИЕ: Просторна всекидневна с кухненски кът, две самостоятелни спални, баня с тоалетна и килер / мокро помещение*.

- ДВОР: Към имота принадлежи урегулиран парцел с площ 801 кв.м., подходящ за озеленяване, зона за отдих или изграждане на допълнителни удобства.


Предимства:

1. Ново строителство – тухла, 2025г.;

2. Изпълнена с висококачествени материали;

3. Австрийска дограма за отлична изолация и комфорт;

4. Уютна едноетажна архитектура с възможност за разширение;

5. Спокойно и предпочитано място за живеене, в непосредствена близост до града


Допълнителни възможности:

* Къщата разполага с подпокривно пространство, което дава възможност за обособяване на още една или две стаи според нуждите на бъдещите собственици.


БИЛДИНГ БОКС предлага безплатна консултация и съдействие при финансиране на избрания от Вас имот.

Оферта №22171

Имаш интерес?

Свържи се
с нас

Имаш интерес?

Свържи се
с нас

Допълнителни детайли

  • Номер на имота: 22171
  • Цена: € 189,900
    (371,412.12 лв.)
  • Спални: 2
  • Площ: 98
  • Статус на имота: Купи

Размер на кредит

| €

2,500 €

500,000 €

Срок на кредит

| месеца

36 месеца

360 месеца

Лихвен процент

| %

2.45%

5%

Месечна вноска

ГПР %

Общо дължима сума

Действия по вписване на ипотека (Еднократно)

€20.45

Такса за проверка и анализ на обезпечението по кредита (Еднократно)

€204.52

Такса план (Месечно)

€6.13

Такса за оценка на обезпечение (Еднократно)

€120.15

Powered by Credia

Стойност на имота

€189900 / 371413 лв.

Няма данни за наемите в района.

Powered by Credia

Обадете се 0877190777
ПОДОБНИ ИМОТИ

ПОДОБНИ
ИМОТИ

Сравняване на списъци

Сравни
Георги Ганчев
  • Георги Ганчев

Внимание

Академиите в София, Пловдив и Варна се провеждат 3 пъти в годината – в началото на всяка година, на пролет и на есен.

Очаквайте да се свържем с вас, за да се запишете за следващият свободен прозорец.

This site is registered on wpml.org as a development site. Switch to a production site key to remove this banner.