Имоти
Имоти

Еднофамилна къща в с.Лозен

София, с.Долни Лозен

Общ преглед

  • Къща
  • Тип имот
  • 4
  • Спални
  • 419
  • 2025
  • Година на строеж

Описание

Билдинг Бокс предлага еднофамилна къща в с. Лозен (района на бившия Долни Лозен). Тиха и уединена част далеч от градския шум, но позволяваща бърз достъп до София. Село Лозен се намира в един от районите с най-чист въздух около столицата. Липсата на интензивния градски трафик и ТЕЦ, както и наличието на защитена гора, и полегатите склонове на Лозенската планина, осигуряват целогодишно, чист въздух без смог и по-малко дни без мъгли.


Транспорт: В непосредствена близост до последната спирка на автобус №5, минаващ през 15 минути. На 3 минути до Околовръстен път, на 20-25 минути до пл. Народно събрание и НДК, на 15-17 минути до летище „Васил Левски“ и на 15 минути до Бизнес парк София.


Образование: В с. Лозен има 2 детски градини, 2 основни училища и частно училище Американо - английска академия (от 1ви до 12ти клас).


Екотуризъм: В непосредствена близост се намира станцията на БЧК (на 10 минути пешеходно разстояние) от където започват голяма част от екопътеките в Лозенската планина. Една от които води до Лозенски манастир св. Спас и връх Половрак.

 

Описание на проекта:


Конструкция: С цел постигане на високо ниво на хидроизолация, след подложния бетон е реализирана хидроизолационна вана, която достига до първия жилищен етаж. Къщата е проектирана с монолитна стоманобетонова конструкция. Осигуряването на здравината на конструкцията е постигнато чрез използването на високоякостни бетони с клас С 20/25 и армировъчна стомана клас В500. Преградните и външни стените са изградени от керамични блокове Porotherm с дебелини 25см и 12см на немската марка Winerberger, които осигуряват високо ниво на топло и шумоизолация.


Водопроводна и канализационна инсталация: Тръбите на водопроводната инсталация са полипропиленови, гарантиращи дълъг живот, липса на корозия и отлагане на котлен камък, както и устойчивост на температурни разлики. Канализационната инсталация е изградена с PVC тръби.


Електро инсталация: Кабелите за захранване ще са изтеглени в PVC тръби. Всеки етаж е на отделен токов кръг, като допълнително ключовите електрически уреди ще преминават през UPS кръг. Захранване с цел подготовка за зарядна станция в гаража и изграждане на фотоволтаична система на покривната тераса.


Отопление: Топлозахранването на сградата е с подготовка за термопомпен агрегат /вода-въздух/ с вътрешни тела, външно тяло, предвидено за монтаж на северната фасада. В къщата ще бъде изградена и газова инсталация с цел използване за отопление или домакински нужди. Изграждането на тръбните пътища, които ще бъдат положени под замазката, с фиксирани места за монтаж на вътрешните тела, както и PVC тръби за отвеждане на кондензите при охлаждане на помещенията.


Покрив: Покривът на сградата е плосък, използваем, изпълнен посредством полагане на хидроизолационна система от два пласта битумна менбра на General membrane, като горния пласт е с посипка, пароизолация, топлоизолация XPS с дебелина 15 см, която осигурява неговата дълготрайност и армирана цимент-пясъчна замазка. Отводняването е с HL сифони с подгряване.


Фасада: Фасадата ще бъде изпълнена с цялостна система на Baumit с 10 см топлоизолация и мазилка в два цвята. Всички прозорци са с немски PVC профили от иновативна 7-камерна система с висока топлоизолация и шумоизолация - Kommerling 88 MD, отвън – алуминиеви капачки прахово боядисани в цвят по RAL 7021 мат, отвътре - бяло. Усилващи профили от поцинкована стомана, с дебелина 1,5мм (затворен профил в касата), а обкова е австрийски МАСО. Тройни стъклопакети 44 мм от:

- външно енергийно всесезонно стъкло - 6мм, 15mm - запълване- Argon 90%

- средно кантирано безцветно стъкло 4мм, 15mm - запълване- Argon 90%

- вътрешно нискоемисионо 4мм

 

Външни врати:

  • Гаражна секционна врата Hörmann LPU 42 с размери – ширина 6000 мм и височина 2250 мм, отвътре с релефно щамповане Stucco и висококачествено покритие CH 7016 антрацит Мат deluxe;
  • Входна врата: Hörmann Външна врата Thermo 65 с алуминиева каса. Защита срещу влизане с взлом RC2 съгласно DIN EN, блокировка в няколко точки с основна брава (въртящ се език) и 2 болта, защита срещу пробиване и изтегляне. Алуминиева каса, профил A3 термично разделен 80 мм. Цвят CH 7016 Мат.
  • Врати към северната фасада: Hörmann Входна врата Thermo 46 с алуминиева каса. 3-точкова защита от задната страна, блокировка в няколко точки с основна брава. Цвят CH 7016 Мат

 

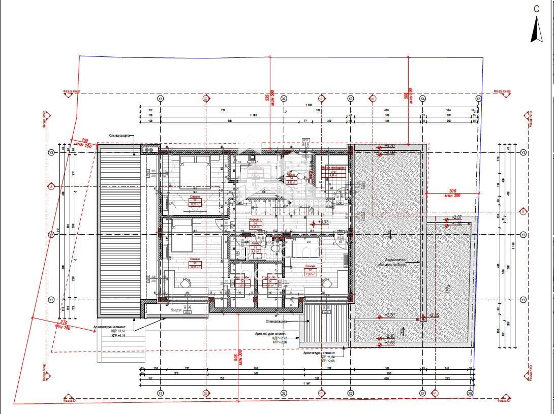
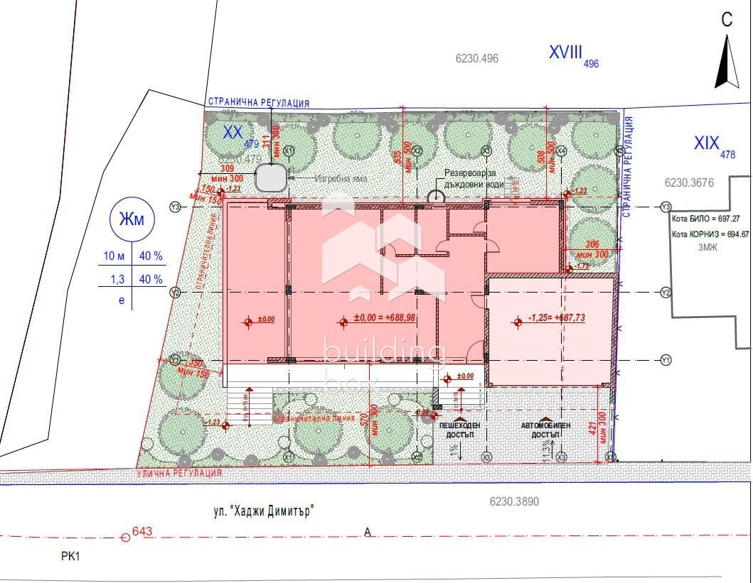
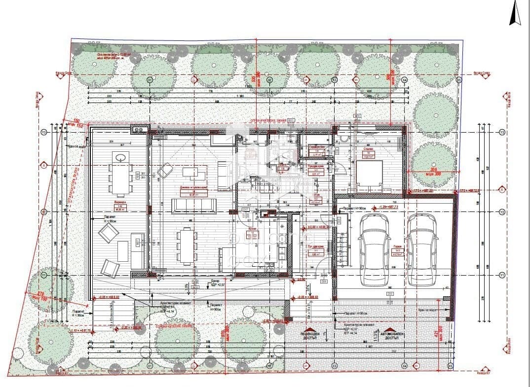
Големина на парцела: 500 кв.м. от които застроената площ е 200 кв.м. Къщата е с РЗП 420 кв. м. разпределени на три нива.


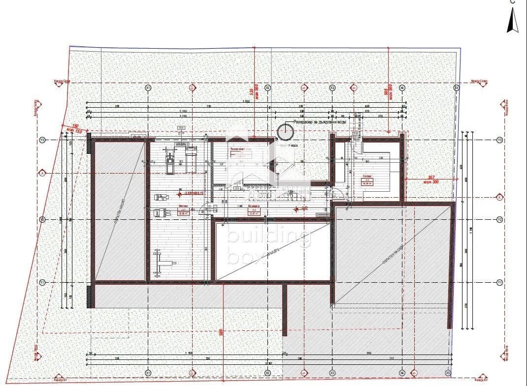
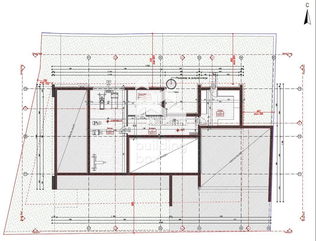
Сутерен общо ЗП 86 кв. м. със следното разпределение:

Техническо помещение – 8,66 кв. м.

Склад – 14,34 кв. м.

Кино салон или зона за бридж белот -  27 кв. м.

Фитнес – 30,49 кв. м.

Механа – 30 кв. м.

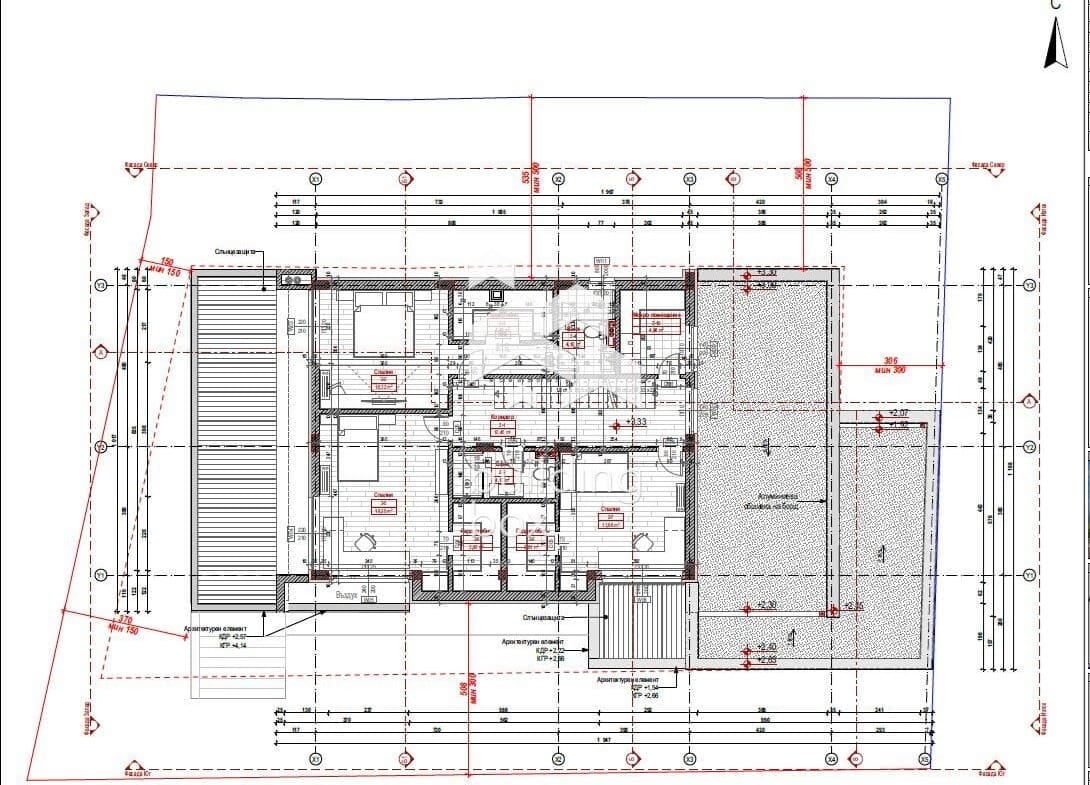
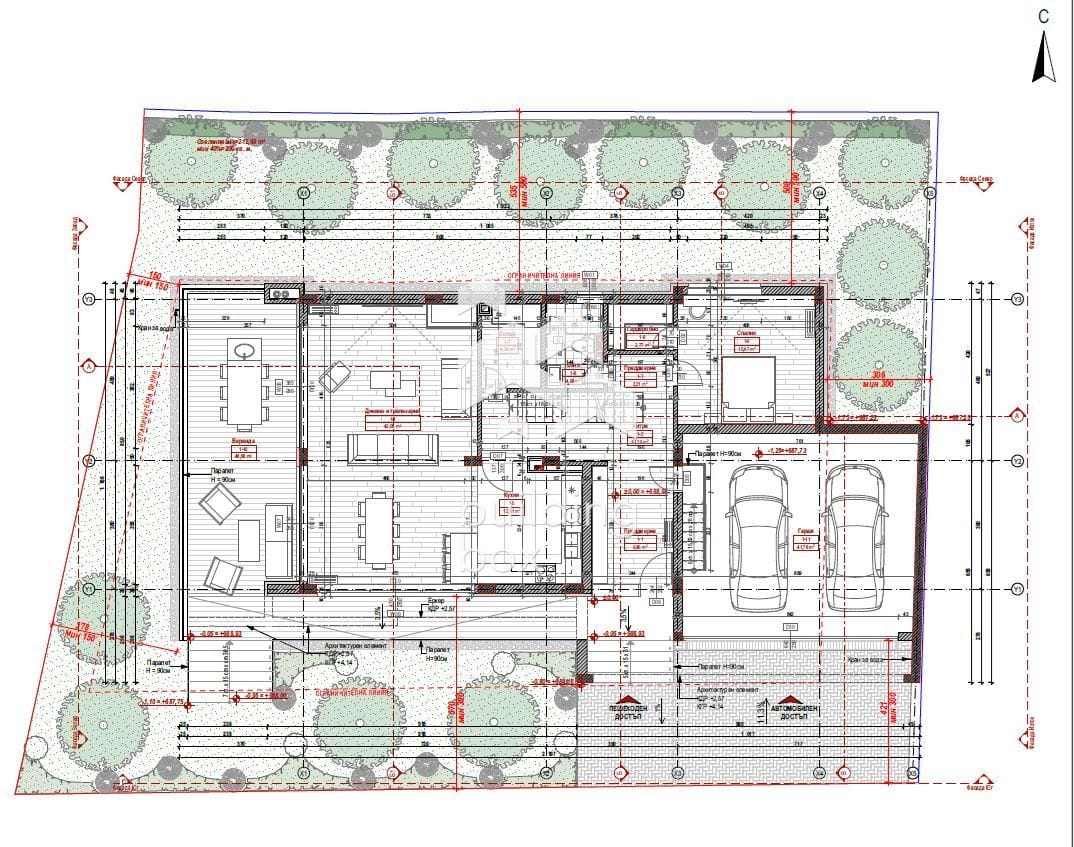
Първи етаж общо ЗП 199 кв. м. със следното разпределение:

Преддверие – 8.90 кв. м.

Антре – 11,28 кв. м.

Дневна и трапезария – 42,05 кв. м.

Кухня – 12.01 кв. м.

Спалня с гардеробно – 18,44 кв. м.

Склад – 4,39 кв. м.

Баня – 4.08 кв. м.

Към първия етаж е достъпа до просторна веранда (46,68 кв. м.) с изложение юг-запад и топла връзка към двоен гараж (41,78 кв. м.).

Втори етаж общо ЗП 109 кв. м. със следното разпределение:

Коридор – 10,45 кв. м.

Родителска спалня с гардеробно и баня – 24,82 кв. м.

Втора спалня с гардеробно – 22,18 кв. м.

 Трета спалня с гардеробно – 17,57 кв. м.

Баня – 4,17 кв. м.

Самостоятелно мокро помещение – 4,98 кв. м.

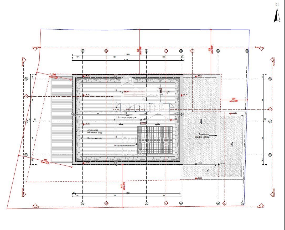
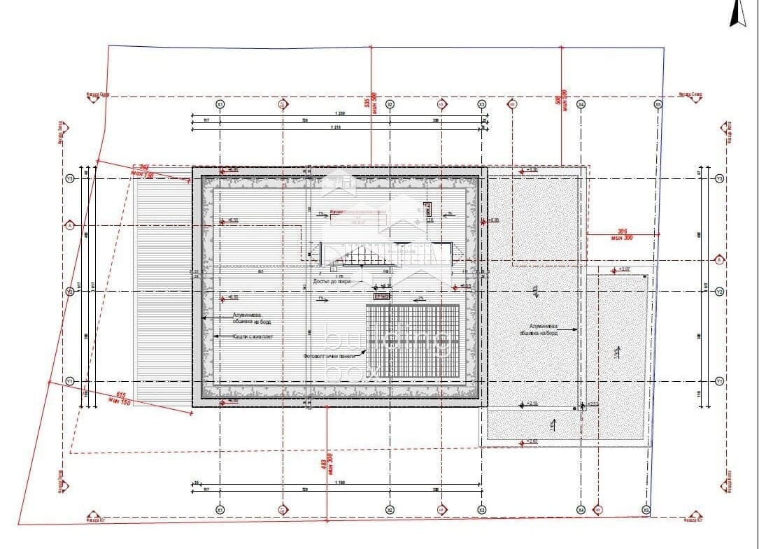
От втория етаж е излаза към използваема покривна тераса 107 кв. м. (ЗП 199 кв. м.) разпределена на две зони: зона за забавления и почивка и зона за монтиране на слънчеви панели с цел захранване на къщата.  

Етапи:

АКТ 14 от 11.2024г.

АКТ 16 – 08.2025г.


Цена (на акт 16) - €740,000 евро


За контакти: Емил Радев - 0888981992


Оферта № 15835

Имаш интерес?

Свържи се
с нас

Имаш интерес?

Свържи се
с нас

Допълнителни детайли

  • Номер на имота: 15835
  • Цена: € 740,000
    (1,447,314.20 лв.)
  • Спални: 4
  • Площ: 419
  • Статус на имота: Купи

Размер на кредит

| €

2,500 €

500,000 €

Срок на кредит

| месеца

36 месеца

360 месеца

Лихвен процент

| %

2.45%

5%

Месечна вноска

ГПР %

Общо дължима сума

Действия по вписване на ипотека (Еднократно)

€20.45

Такса за проверка и анализ на обезпечението по кредита (Еднократно)

€204.52

Такса план (Месечно)

€6.13

Такса за оценка на обезпечение (Еднократно)

€120.15

Powered by Credia

Стойност на имота

€740000 / 1447315 лв.

Няма данни за наемите в района.

Powered by Credia

Обадете се 0879900994
ПОДОБНИ ИМОТИ

ПОДОБНИ
ИМОТИ

Сравняване на списъци

Сравни
Емил Радев
  • Емил Радев

Внимание

Академиите в София, Пловдив и Варна се провеждат 3 пъти в годината – в началото на всяка година, на пролет и на есен.

Очаквайте да се свържем с вас, за да се запишете за следващият свободен прозорец.

This site is registered on wpml.org as a development site. Switch to a production site key to remove this banner.