Имоти
Имоти

Голям двустаен апартамент на бул. “Ломско шосе”

София,

Общ преглед

  • 2-стаен
  • Тип имот
  • 1
  • Спалня
  • 69
  • 2026
  • Година на строеж

Описание

Двустаен апартамент в новия комплекс „Garden Residence“ – бул. Ломско шосе.


БИЛДИНГ БОКС представя за продажба просторен и функционален двустаен апартамент в един от най-перспективните райони на гр. София – в непосредствена близост до метро станция и с отличен достъп до централната част на града.


Характеристики на имота:

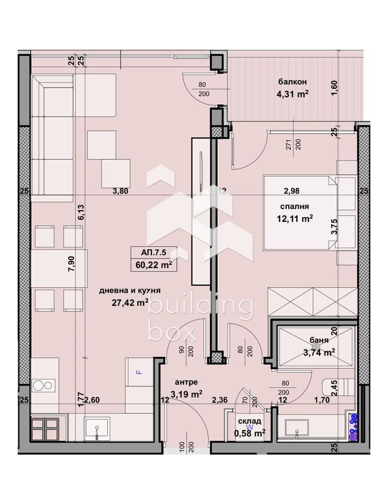
1. Обща площ: 69 кв.м.;

2. Етаж: 7-ми етаж от 9;

3. Състояние: С издаден АКТ 14;

4. Изложение: Север / Изток;

5. Разстояние до метро: Само 150 м.


За комплекса:

„Garden Residence“ е модерен жилищен комплекс, отличаващ се с висококачествено строителство, съвременен архитектурен дизайн и богато озеленени общи пространства.

На разположение на живущите са:

- Зелени алеи и зони за отдих;

- Детски площадки;

- Контрол на достъпа и отлично поддържани общи части


Предимства:

- Ново строителство с модерни материали;

- Удобна локация с бърз достъп до метрото, основни пътни артерии и търговски обекти;

- Подходящ, както за лично ползване, така и за инвестиция с висока възвръщаемост


БИЛДИНГ БОКС предоставя безплатна консултация и съдействие при финансиране на избрания от Вас имот.

Оферта №26581

Имаш интерес?

Свържи се
с нас

Имаш интерес?

Свържи се
с нас

Допълнителни детайли

  • Номер на имота: 26581
  • Цена: € 155,000
    (303,153.65 лв.)
  • Спалня: 1
  • Площ: 69
  • Статус на имота: Купи

Размер на кредит

| €

2,500 €

500,000 €

Срок на кредит

| месеца

36 месеца

360 месеца

Лихвен процент

| %

2.45%

5%

Месечна вноска

ГПР %

Общо дължима сума

Действия по вписване на ипотека (Еднократно)

€20.45

Такса за проверка и анализ на обезпечението по кредита (Еднократно)

€204.52

Такса план (Месечно)

€6.13

Такса за оценка на обезпечение (Еднократно)

€120.15

Powered by Credia

Стойност на имота

€155000 / 303154 лв.

Няма данни за наемите в района.

Powered by Credia

Обадете се 0877734412
ПОДОБНИ ИМОТИ

ПОДОБНИ
ИМОТИ

Сравняване на списъци

Сравни
Борислав Гешев
  • Борислав Гешев

Внимание

Академиите в София, Пловдив и Варна се провеждат 3 пъти в годината – в началото на всяка година, на пролет и на есен.

Очаквайте да се свържем с вас, за да се запишете за следващият свободен прозорец.

This site is registered on wpml.org as a development site. Switch to a production site key to remove this banner.