Билдинг Бокс представя сграда, която се отличава с просторни жилища с перфектно разпределение, нисък процент общи части и високо качество на строителството, изпълнено от опитни професионалисти, които осигуряват сигурност и комфорт за бъдещите обитатели.
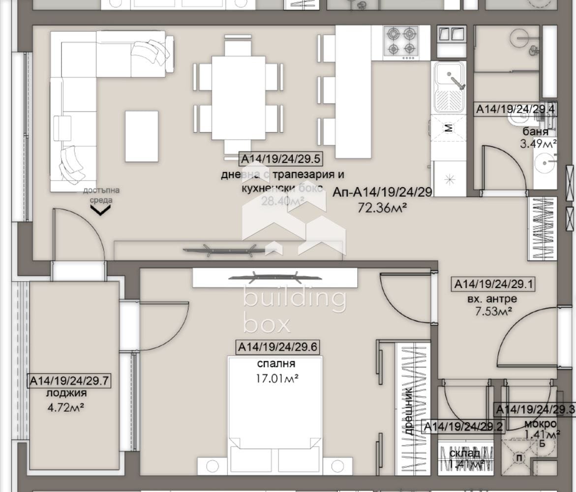
Имотът е със застроената площ от 72.36 кв.м, а разпределението му е както следва: входно антре, дневна с кухненски бокс, спалня, склад, баня с тоалетна и лоджия. Изложението на имота е запад. Намира се на 7-ми етаж от общо 8 етажа. Отоплението е на ТЕЦ, ще има изводи за климатици и бойлер.
Жилищния комплекс изпъкващ сред сградите в района с иновативен дизайн, модерна фасада и перфектни архитектурни решения. Ще предостави комфорт за бъдещите си собственици и всички необходими удобства за днешния градски живот. При изграждането на проекта ще бъдат използвани висококачествени материали и технологии.
Сградата е на междинни плочи и ще бъде завършена 2027г.
Местоположението на сградата е в непосредствена близост до спирки на градски транспорт, магазини и супермаркети, детски градини, училища, много зелени междублокови пространства и Западния парк. Локацията има бърз излаз до Околовръстния път.
Билдинг Бокс Ви предлага безплатна консултация и кредитно съдействие за финансиране на покупката на Вашия имот.
Оферта 18489
| €
2,500 €
500,000 €
| месеца
36 месеца
360 месеца
| %
2.45%
5%
Месечна вноска
ГПР %
Общо дължима сума
Действия по вписване на ипотека (Еднократно)
€20.45
Такса за проверка и анализ на обезпечението по кредита (Еднократно)
€204.52
Такса план (Месечно)
€6.13
Такса за оценка на обезпечение (Еднократно)
€120.15
Powered by Credia
Подходящ се за предварително одобрение!
Lorem ipsum dolor sit amet, consectetur adipiscing elit. Maecenas imperdiet leo nisl, et porta massa tempus eget. Sed vestibulum sagittis ante eu dictum.
Ценови диапазон за наем на 2-стаен в Люлин 5, София
€480 - €600
Процент на възвръщаемост:
4.88%
*Цените са ориентировачни. За повече информация се свържете с наш консултант.
Powered by Credia
Подходящ се за предварително одобрение!
Lorem ipsum dolor sit amet, consectetur adipiscing elit. Maecenas imperdiet leo nisl, et porta massa tempus eget. Sed vestibulum sagittis ante eu dictum.
Сравняване на списъци
СравниМоля, въведете вашето потребителско име или имейл адрес. Ще получите връзка за създаване на нова парола по имейл.
Академиите в София, Пловдив и Варна се провеждат 3 пъти в годината – в началото на всяка година, на пролет и на есен.
Очаквайте да се свържем с вас, за да се запишете за следващият свободен прозорец.