Имоти
Имоти

Къща – с. Марково

Пловдив, област, с.Марково

Общ преглед

  • Къща
  • Тип имот
  • 3
  • Спални
  • 4
  • Бани
  • 316
  • 2025
  • Година на строеж

Описание

БИЛДИНГ БОКС има удоволствието да Ви представи екслузивно двуетажна елегантна къща с РЗП 316 кв.м., проектирана с идея за удобство, комфорт и функционалност. Разположена е върху голям парцел от 940 кв.м.


Предимства на имота:

- ЛОКАЦИЯ: с. Марково - на 5 км. разстояние от гр. Пловдив.

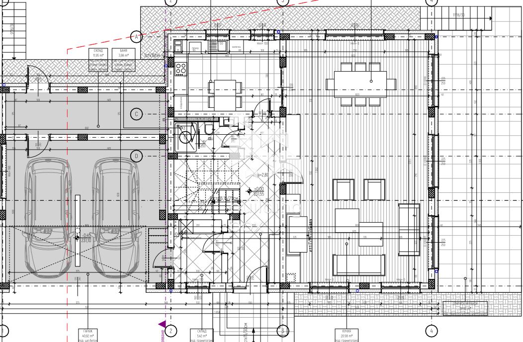
- РАЗПРЕДЕЛЕНИЕ: Къщата разполага с два етажа и има следното разпределение:

1. Сутерен: Три помещения по 16 кв.м., подходящи за склад, фитнес, винарна или хоби зона*.

2. Първи етаж: Впечатляваща всекидневна – 60 кв.м., отделна кухня – 14 кв.м., която може да бъде преустроена в спалня или офис, два склада по 12 кв.м. и 5 кв.м., баня – 4 кв.м., просторна веранда – 39 кв.м.;

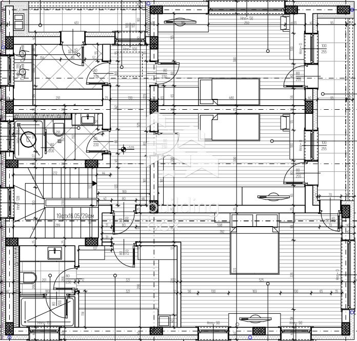
3. Втори етаж: Три просторни спални, както следва:

- Спалня 1 – 22 кв.м. със собствен дрешник (9 кв.м.) и баня (5 кв.м.);

- Спалня 2 – 14,48 кв.м.;

- Спалня 3 – 14,42 кв.м.;

- Допълнителна баня – 5 кв.м.;

- Мокро помещение – 6 кв.м.

- ПАРКИРАНЕ: Двоен гараж с площ от 62 кв.м. – достатъчно място за два автомобила.

- ДВОР: Към имота има дворно място с площ от 780 кв.м.

- СТРОИТЕЛСТВО: Тухли Wienerberger Porotherm – 25 см., изолация с каменна вата Rockwool – 15 см., оптимална термо- и шумоизолация, алуминиева дограма ETEM, E75 – шесткамерна с троен стъклопакет.


* Изградена яма и водопровод


БИЛДИНГ БОКС предоставя безплатна консултация и съдействие при финансиране на избрания от Вас имот.

Оферта №20526





Имаш интерес?

Свържи се
с нас

Имаш интерес?

Свържи се
с нас

Допълнителни детайли

  • Номер на имота: 20526
  • Цена: € 380,000
    (743,215.40 лв.)
  • Спални: 3
  • Бани: 4
  • Площ: 316
  • Статус на имота: Купи

Размер на кредит

| €

2,500 €

500,000 €

Срок на кредит

| месеца

36 месеца

360 месеца

Лихвен процент

| %

2.45%

5%

Месечна вноска

ГПР %

Общо дължима сума

Действия по вписване на ипотека (Еднократно)

€20.45

Такса за проверка и анализ на обезпечението по кредита (Еднократно)

€204.52

Такса план (Месечно)

€6.13

Такса за оценка на обезпечение (Еднократно)

€120.15

Powered by Credia

Стойност на имота

€380000 / 743216 лв.

Няма данни за наемите в района.

Powered by Credia

Обадете се 0877190777
ПОДОБНИ ИМОТИ

ПОДОБНИ
ИМОТИ

Сравняване на списъци

Сравни
Златина Тачкова
  • Златина Тачкова

Внимание

Академиите в София, Пловдив и Варна се провеждат 3 пъти в годината – в началото на всяка година, на пролет и на есен.

Очаквайте да се свържем с вас, за да се запишете за следващият свободен прозорец.

This site is registered on wpml.org as a development site. Switch to a production site key to remove this banner.