Имоти
Имоти

Къща в Бистрица

София, Симеоново

Общ преглед

  • Къща
  • Тип имот
  • 4
  • Спални
  • 195
  • 2025
  • Година на строеж

Описание

ДИРЕКТНО ОТ ИНВЕСТИТОР И ЗАВЪРШЕНА ДО КЛЮЧ!

Пред АКТ 16!

 

Билдинг Бокс има удоволствието да Ви представи ново предложение - дом заобиколен от природа, спокойствие и простор.

 

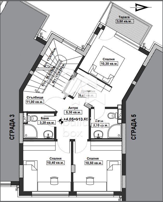
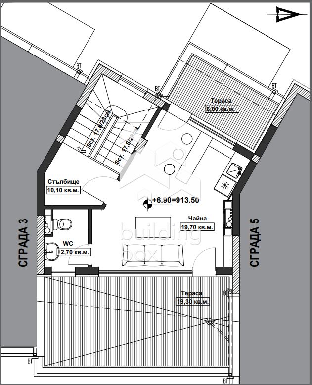
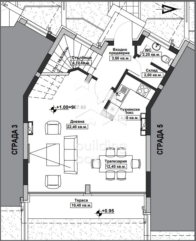
Къща със самостоятелен двор от 317 кв.м и с площ от 190,90 кв.м. Първото ниво се състои от: антре, склад, голяма дневна с трапезария и кухненски бокс, тоалетна и прекрасна веранда. Второто ниво: три самостоятелни спални, към една от които има дрешник и тераса, и две бани с тоалетни. На третото ниво: open space помещение с баня и тоалетна, което е подходящо за офис или четвърта спалня. Пред къщата има обособени две паркоместа.

 

Комплекс ОСТА Хоум се състои от общо шест къщи, като всички са с по три етажа. Основното изложение на къщите е изток-запад.

 

В момента къщите са на етап пред Акт 15, като за изпълнението им са използвани висок клас материали. Във всяка от къщите има изградена инсталация за котле с радиатори, а спрямо предпочитанията на клиента, ще може да се отоплява на ток или пелети.


 

В комплекса ще бъде монтирана пречиствателна станция.

 

Билдинг Бокс предоставя безплатна консултация и кредитно съдействие при финансиране на избрания от Вас имот.

Оферта 8783

Имаш интерес?

Свържи се
с нас

Имаш интерес?

Свържи се
с нас

Допълнителни детайли

  • Номер на имота: 8783
  • Цена: € 670,000
    (1,310,406.10 лв.)
  • Спални: 4
  • Площ: 195
  • Статус на имота: Купи

Размер на кредит

| €

2,500 €

500,000 €

Срок на кредит

| месеца

36 месеца

360 месеца

Лихвен процент

| %

2.45%

5%

Месечна вноска

ГПР %

Общо дължима сума

Действия по вписване на ипотека (Еднократно)

€20.45

Такса за проверка и анализ на обезпечението по кредита (Еднократно)

€204.52

Такса план (Месечно)

€6.13

Такса за оценка на обезпечение (Еднократно)

€120.15

Powered by Credia

Стойност на имота

€670000 / 1310407 лв.

Няма данни за наемите в района.

Powered by Credia

Обадете се 0879900994
ПОДОБНИ ИМОТИ

ПОДОБНИ
ИМОТИ

Сравняване на списъци

Сравни
Стоимен Борисов
  • Стоимен Борисов

Внимание

Академиите в София, Пловдив и Варна се провеждат 3 пъти в годината – в началото на всяка година, на пролет и на есен.

Очаквайте да се свържем с вас, за да се запишете за следващият свободен прозорец.

This site is registered on wpml.org as a development site. Switch to a production site key to remove this banner.