Имоти
Имоти

Къща в с. Лозен

София, с.Горни Лозен

Общ преглед

  • Къща
  • Тип имот
  • 4
  • Спални
  • 200
  • 1980
  • Година на строеж

Описание

НОВ ИМОТ ЗА ПРОДАЖБА!


БИЛДИНГ БОКС има удоволствието да Ви представи къща за продажба в с. Лозен.

 

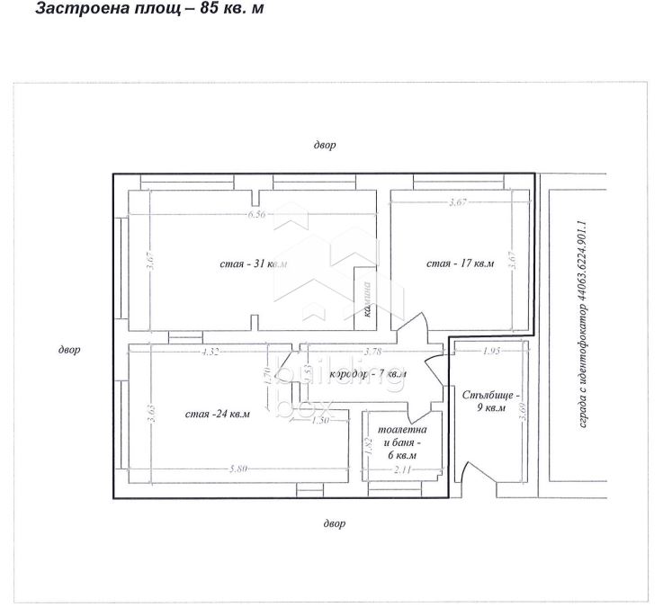
Къщата е от 80-те години със самостоятелен двор и с площ от 200 кв.м. Първото ниво се състои от: антре, голяма дневна, кухня с трапезария, спалня и баня с тоалетна. Второто ниво: антре, хол, две спални, баня с тоалетна и две тераси. На третото ниво: open space помещение с баня и тоалетна, което е подходящо за офис или да се отделят две големи спални. В двора има обособен навес за едно паркомясто, като допълнително има възможност за паркиране на още един автомобил.

 

Основното изложение е изток-юг.

 

Къщата е основно ремонтирана преди 2 години - покрив, фасада с изолация, дограма, електрическа инсталация.


В двора има постройка, която може да бъде превърната лесно в барбекю или друго помещение по избор.


БИЛДИНГ БОКС предоставя безплатна консултация и кредитно съдействие при финансиране на избрания от Вас имот.

Оферта № 24139

Имаш интерес?

Свържи се
с нас

Имаш интерес?

Свържи се
с нас

Допълнителни детайли

  • Номер на имота: 24139
  • Цена: € 450,000
    (880,123.50 лв.)
  • Спални: 4
  • Площ: 200
  • Статус на имота: Купи

Размер на кредит

| €

2,500 €

500,000 €

Срок на кредит

| месеца

36 месеца

360 месеца

Лихвен процент

| %

2.45%

5%

Месечна вноска

ГПР %

Общо дължима сума

Действия по вписване на ипотека (Еднократно)

€20.45

Такса за проверка и анализ на обезпечението по кредита (Еднократно)

€204.52

Такса план (Месечно)

€6.13

Такса за оценка на обезпечение (Еднократно)

€120.15

Powered by Credia

Стойност на имота

€450000 / 880124 лв.

Няма данни за наемите в района.

Powered by Credia

Обадете се 0879900994
ПОДОБНИ ИМОТИ

ПОДОБНИ
ИМОТИ

Сравняване на списъци

Сравни
Стоимен Борисов
  • Стоимен Борисов

Внимание

Академиите в София, Пловдив и Варна се провеждат 3 пъти в годината – в началото на всяка година, на пролет и на есен.

Очаквайте да се свържем с вас, за да се запишете за следващият свободен прозорец.

This site is registered on wpml.org as a development site. Switch to a production site key to remove this banner.