Имоти
Имоти

Парцел за индустриално строителство – гр. Пловдив

Пловдив, Индустриална зона -Тракия

Общ преглед

  • Парцел
  • Тип имот
  • 3500

Описание

БИЛДИНГ БОКС има удоволствието да Ви представи парцел за индустриално строителство в град Пловдив.


Предимства на имота:

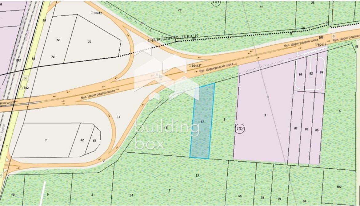
- ЛОКАЦИЯ: Имотът се намира в местност Скобелица, с лице на главния път, на излизане от гр. Пловдив по пътя към с. Садово, точно до табелата.

- ПЛОЩ: Парцелът е с площ от 3500 кв.м с лице 33 м. и дълбочина 150 м.

- ДОСТЪП: Второстепенен път.

- ОСОБЕНОСТИ: В близост до парцела има ток и вода.

- ПРЕДНАЗНАЧЕНИЕ: Индустриално строителство.

- ДОПЪЛНИТЕЛНО ПРЕДИМСТВО: На комуникативно място, на първа линия на един от най-натоварените главни пътища.


БИЛДИНГ БОКС предоставя безплатна консултация и съдействие при финансиране на избрания от Вас имот.


Оферта № 24245

Имаш интерес?

Свържи се
с нас

Имаш интерес?

Свържи се
с нас

Допълнителни детайли

  • Номер на имота: 24245
  • Цена: € 227,500
    (444,951.33 лв.)
  • Площ: 3500
  • Статус на имота: Купи

Размер на кредит

| €

2,500 €

500,000 €

Срок на кредит

| месеца

36 месеца

360 месеца

Лихвен процент

| %

2.45%

5%

Месечна вноска

ГПР %

Общо дължима сума

Действия по вписване на ипотека (Еднократно)

€20.45

Такса за проверка и анализ на обезпечението по кредита (Еднократно)

€204.52

Такса план (Месечно)

€6.13

Такса за оценка на обезпечение (Еднократно)

€120.15

Powered by Credia

Стойност на имота

€227500 / 444952 лв.

Няма данни за наемите в района.

Powered by Credia

Обадете се 0877190777
ПОДОБНИ ИМОТИ

ПОДОБНИ
ИМОТИ

Сравняване на списъци

Сравни
Джунейт Узунов
  • Джунейт Узунов

Внимание

Академиите в София, Пловдив и Варна се провеждат 3 пъти в годината – в началото на всяка година, на пролет и на есен.

Очаквайте да се свържем с вас, за да се запишете за следващият свободен прозорец.

This site is registered on wpml.org as a development site. Switch to a production site key to remove this banner.