Имоти
Имоти

Перфектен двустаен апартамент в ж.к. Люлин 5

София, Люлин 5

Общ преглед

  • 2-стаен
  • Тип имот
  • 1
  • Спалня
  • 87
  • 2027
  • Година на строеж

Описание

Билдинг Бокс представя сграда, която се отличава с просторни жилища с перфектно разпределение, нисък процент общи части и високо качество на строителството, изпълнено от опитни професионалисти, които осигуряват сигурност и комфорт за бъдещите обитатели.


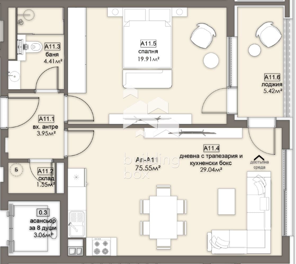
Имотът е със застроената площ от 75,55 кв.м, а разпределението му е както следва: входно антре, дневна с кухненски бокс, спалня, склад, баня с тоалетна и лоджия. Изложението на имота е изток. Намира се на 3-ти етаж от общо 8 етажа. Отоплението е на ТЕЦ, ще има изводи за климатици и бойлер.


Жилищния комплекс изпъкващ сред сградите в района с иновативен дизайн, модерна фасада и перфектни архитектурни решения. Ще предостави комфорт за бъдещите си собственици и всички необходими удобства за днешния градски живот. При изграждането на проекта ще бъдат използвани висококачествени материали и технологии.


Сградата е на междинни плочи и ще бъде завършена 2027г.


Местоположението на сградата е в непосредствена близост до спирки на градски транспорт, магазини и супермаркети, детски градини, училища, много зелени междублокови пространства и Западния парк. Локацията има бърз излаз до Околовръстния път. 


Билдинг Бокс Ви предлага безплатна консултация и кредитно съдействие за финансиране на покупката на Вашия имот.


Оферта 18369

Имаш интерес?

Свържи се
с нас

Имаш интерес?

Свържи се
с нас

Допълнителни детайли

  • Номер на имота: 18369
  • Цена: € 154,842
    (302,844.63 лв.)
  • Спалня: 1
  • Площ: 87
  • Статус на имота: Купи

Размер на кредит

| €

2,500 €

500,000 €

Срок на кредит

| месеца

36 месеца

360 месеца

Лихвен процент

| %

2.45%

5%

Месечна вноска

ГПР %

Общо дължима сума

Действия по вписване на ипотека (Еднократно)

€20.45

Такса за проверка и анализ на обезпечението по кредита (Еднократно)

€204.52

Такса план (Месечно)

€6.13

Такса за оценка на обезпечение (Еднократно)

€120.15

Powered by Credia

Стойност на имота

€154842 / 302845 лв.

Ценови диапазон за наем на 2-стаен в Люлин 5, София

€480 - €600

Процент на възвръщаемост:

4.65%

*Цените са ориентировачни. За повече информация се свържете с наш консултант.

Powered by Credia

Обадете се 0877734412
ПОДОБНИ ИМОТИ

ПОДОБНИ
ИМОТИ

Сравняване на списъци

Сравни
Кристин Николов
  • Кристин Николов

Внимание

Академиите в София, Пловдив и Варна се провеждат 3 пъти в годината – в началото на всяка година, на пролет и на есен.

Очаквайте да се свържем с вас, за да се запишете за следващият свободен прозорец.

This site is registered on wpml.org as a development site. Switch to a production site key to remove this banner.