Имоти
Имоти

Перфектен тристаен апартамент в ж.к. Люлин 5

София, Люлин 5

Общ преглед

  • 3-стаен
  • Тип имот
  • 2
  • Спални
  • 169
  • 2027
  • Година на строеж

Описание

Билдинг Бокс представя сграда, която се отличава с просторни жилища с перфектно разпределение, нисък процент общи части и високо качество на строителството, изпълнено от опитни професионалисти, които осигуряват сигурност и комфорт за бъдещите обитатели.


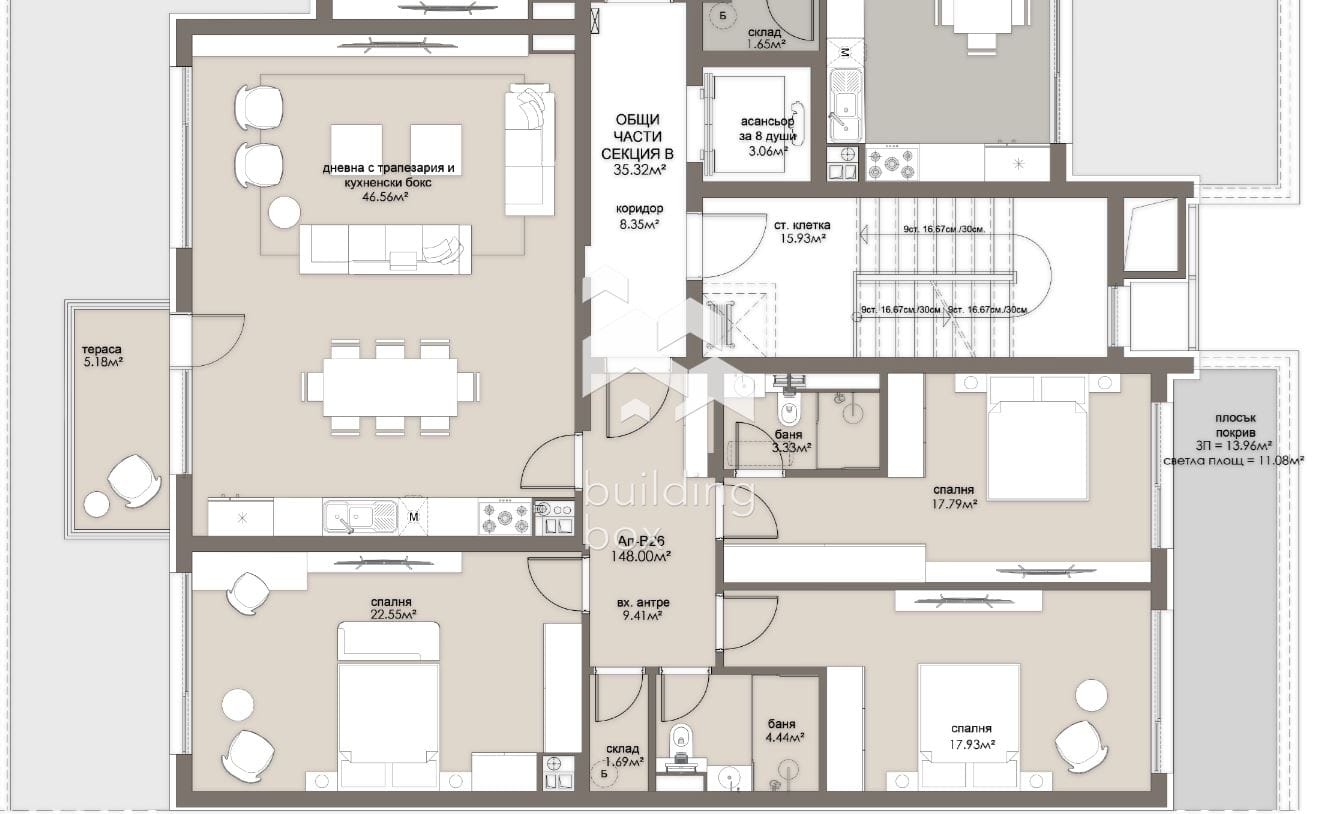
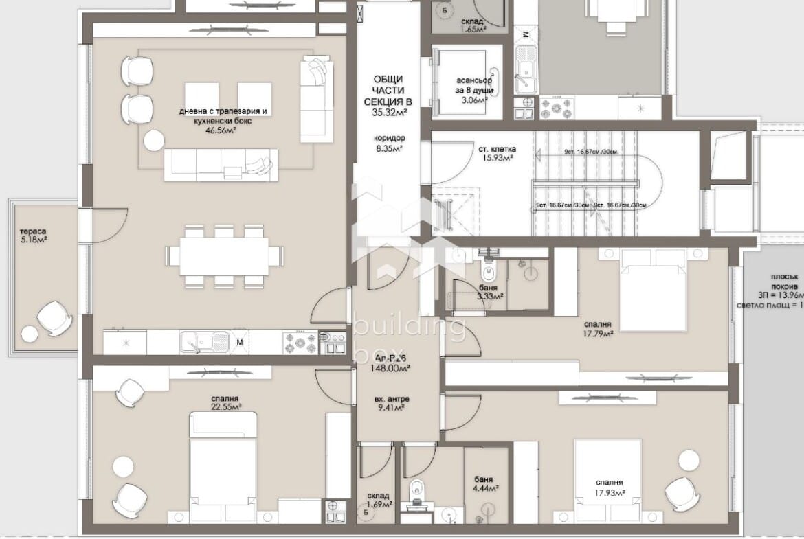
Имотът е тристаен и е със застроената площ от 148.00 кв.м, а разпределението му е както следва: входно антре, дневна с кухненски бокс, две спални, склад, две бани с тоалетна, прилежаща тераса и две покривни тераси . Изложенията на имота са изток и запад. Намира се на 7-ти етаж от общо 7 етажа. Отоплението е на ТЕЦ, ще има изводи за климатици и бойлер.


Жилищният комплекс е изпъкващ сред сградите в района с иновативен дизайн, модерна фасада и перфектни архитектурни решения. Ще предостави комфорт за бъдещите си собственици и всички необходими удобства за днешния градски живот. При изграждането на проекта ще бъдат използвани висококачествени материали и технологии.


Сградата е на междинни плочи и ще бъде завършена 2027г.


Местоположението на сградата е в непосредствена близост до спирки на градски транспорт, магазини и супермаркети, детски градини, училища, много зелени междублокови пространства и Западния парк. Локацията има бърз излаз до Околовръстния път. 


Билдинг Бокс Ви предлага безплатна консултация и кредитно съдействие за финансиране на покупката на Вашия имот.


Оферта 19556

Имаш интерес?

Свържи се
с нас

Имаш интерес?

Свържи се
с нас

Допълнителни детайли

  • Номер на имота: 19556
  • Цена: € 278,306
    (544,319.22 лв.)
  • Спални: 2
  • Площ: 169
  • Статус на имота: Купи

Размер на кредит

| €

2,500 €

500,000 €

Срок на кредит

| месеца

36 месеца

360 месеца

Лихвен процент

| %

2.45%

5%

Месечна вноска

ГПР %

Общо дължима сума

Действия по вписване на ипотека (Еднократно)

€20.45

Такса за проверка и анализ на обезпечението по кредита (Еднократно)

€204.52

Такса план (Месечно)

€6.13

Такса за оценка на обезпечение (Еднократно)

€120.15

Powered by Credia

Стойност на имота

€278306 / 544320 лв.

Ценови диапазон за наем на 3-стаен в Люлин 5, София

€600 - €750

Процент на възвръщаемост:

3.23%

*Цените са ориентировачни. За повече информация се свържете с наш консултант.

Powered by Credia

Обадете се 0877734412
ПОДОБНИ ИМОТИ

ПОДОБНИ
ИМОТИ

Сравняване на списъци

Сравни
Кристин Николов
  • Кристин Николов

Внимание

Академиите в София, Пловдив и Варна се провеждат 3 пъти в годината – в началото на всяка година, на пролет и на есен.

Очаквайте да се свържем с вас, за да се запишете за следващият свободен прозорец.

This site is registered on wpml.org as a development site. Switch to a production site key to remove this banner.