Билдинг Бокс представя жилищен комплекс от затворен тип в Малинова долина, който съчетава модерен дизайн, простор и зеленина – създаден с мисъл за Вашето удобство и качество на живот!
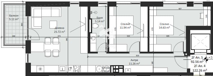
Жилището се намира на втори от общо четири етажа, с чиста площ от 92.56 кв.м.
Имотът е тристаен и се състои от входно антре, дневна с кухненски бокс, две самостоятелни спални,склад, баня с тоалетна и тераса с с площ от 5.11кв.м.
Отоплението е предвидено чрез ГАЗ. Изложението е Северозапад.
Това не е просто имот – това е дом, който вдъхновява! Независимо дали търсите перфектното място за живот или печеливша инвестиция, тук ще откриете идеалния баланс между природа, комфорт и удобство.
Предимства:
- Само по 3 апартамента на етаж, осигуряващи спокойствие, правилни форми и просторни квадратури.
- Изложението е Северозапад – гарантирана естествена светлина и уют през целия ден.
- Широки зелени площи – за разходки, игри и релакс сред природата.
- Избор между дворове и големи тераси – за семейно уединение или панорамни гледки към Витоша и София.
- Луксозни общи части – стил и престиж на всяка стъпка.
Разнообразие от жилища – 2-стайни, 3-стайни, 4-стайни и 5-стайни апартаменти.
Възможност за покупка на подземни паркоместа и гаражи.
В момента е на етап изкопни дейности и ще бъде завършена 2027г.
Локация:
· Само на минути от Ring Mall
· Бърз достъп до Околовръстен път – винаги близо до всичко важно.
· В близост до бъдеща метростанция!
Билдинг Бокс предоставя безплатна консултация и съдействие при финансиране на избрания от Вас имот.
Оферта № 19400
| €
2,500 €
500,000 €
| месеца
36 месеца
360 месеца
| %
2.45%
5%
Месечна вноска
ГПР %
Общо дължима сума
Действия по вписване на ипотека (Еднократно)
€20.45
Такса за проверка и анализ на обезпечението по кредита (Еднократно)
€204.52
Такса план (Месечно)
€6.13
Такса за оценка на обезпечение (Еднократно)
€120.15
Powered by Credia
Подходящ се за предварително одобрение!
Lorem ipsum dolor sit amet, consectetur adipiscing elit. Maecenas imperdiet leo nisl, et porta massa tempus eget. Sed vestibulum sagittis ante eu dictum.
Ценови диапазон за наем на 3-стаен в Малинова Долина, София
€800 - €950
Процент на възвръщаемост:
5.75%
*Цените са ориентировачни. За повече информация се свържете с наш консултант.
Powered by Credia
Подходящ се за предварително одобрение!
Lorem ipsum dolor sit amet, consectetur adipiscing elit. Maecenas imperdiet leo nisl, et porta massa tempus eget. Sed vestibulum sagittis ante eu dictum.
Сравняване на списъци
СравниМоля, въведете вашето потребителско име или имейл адрес. Ще получите връзка за създаване на нова парола по имейл.
Академиите в София, Пловдив и Варна се провеждат 3 пъти в годината – в началото на всяка година, на пролет и на есен.
Очаквайте да се свържем с вас, за да се запишете за следващият свободен прозорец.