Билдинг Бокс представя луксозен тристаен апартамент в модерна жилищна сграда в кв. Дианабад.
Акт 16 - Артекс - сграда Хармони!
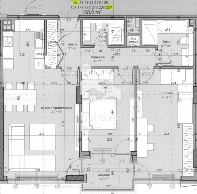
Жилището се намира на четиринадесети от общо шестнадесет етажа, с чиста площ от 108,2 кв.м
Имотът е тристаен и се състои от входно антре, дневна с кухненски бокс, две спални, две бани с тоалетни, склад и тераса.
Отоплението е предвидено чрез ТЕЦ и климатици.
Изложението е изток.
Паркомясто включено в цената!
Цената е без ДДС.
Ако търсите съчетание от лукс, комфорт, уют и прекрасна панорамна гледка, това е мечтаният дом.
Апартаментът е с перфектно разпределение, прави форми и дизайнерски обзаведен.
Намира се на бул. Г-м Димитров и бул. Драган Цанков. На изключително подходящо и комуникативно място. В непосредствена близост от метростанция, детски градини, училища, супермаркети и спирки на градски транспорт.
Билдинг Бокс предоставя безплатна консултация и съдействие при финансиране на избрания от Вас имот.
Оферта № 26451
| €
2,500 €
500,000 €
| месеца
36 месеца
360 месеца
| %
2.45%
5%
Месечна вноска
ГПР %
Общо дължима сума
Действия по вписване на ипотека (Еднократно)
€20.45
Такса за проверка и анализ на обезпечението по кредита (Еднократно)
€204.52
Такса план (Месечно)
€6.13
Такса за оценка на обезпечение (Еднократно)
€120.15
Powered by Credia
Подходящ се за предварително одобрение!
Lorem ipsum dolor sit amet, consectetur adipiscing elit. Maecenas imperdiet leo nisl, et porta massa tempus eget. Sed vestibulum sagittis ante eu dictum.
Ценови диапазон за наем на 3-стаен в Дианабад, София
€800 - €950
Процент на възвръщаемост:
2.19%
*Цените са ориентировачни. За повече информация се свържете с наш консултант.
Powered by Credia
Подходящ се за предварително одобрение!
Lorem ipsum dolor sit amet, consectetur adipiscing elit. Maecenas imperdiet leo nisl, et porta massa tempus eget. Sed vestibulum sagittis ante eu dictum.
Сравняване на списъци
СравниМоля, въведете вашето потребителско име или имейл адрес. Ще получите връзка за създаване на нова парола по имейл.
Академиите в София, Пловдив и Варна се провеждат 3 пъти в годината – в началото на всяка година, на пролет и на есен.
Очаквайте да се свържем с вас, за да се запишете за следващият свободен прозорец.