Имоти
Имоти

Продава 3-стаен

София, Малинова Долина

Общ преглед

  • 3-стаен
  • Тип имот
  • 2
  • Спални
  • 110
  • 2027
  • Година на строеж

Описание

Билдинг Бокс представя жилищен комплекс от затворен тип в Малинова долина, който съчетава модерен дизайн, простор и зеленина – създаден с мисъл за Вашето удобство и качество на живот!


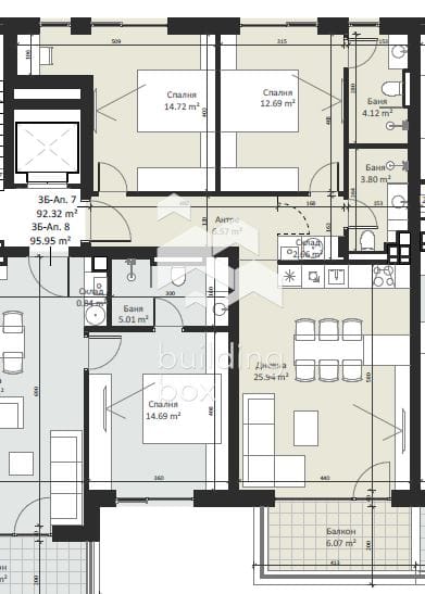
Жилището се намира на трети от общо четири етажа, с чиста площ от 92.32 кв.м.

Имотът е тристаен и се състои от антре, дневна с кухненски бокс, две самостоятелни спални, склад, 2 бани с тоалетни, и тераса с площ от 6.07 кв.м.

Отоплението е предвидено чрез ГАЗ. Изложението е Север-Юг.


Това не е просто имот – това е дом, който вдъхновява! Независимо дали търсите перфектното място за живот или печеливша инвестиция, тук ще откриете идеалния баланс между природа, комфорт и удобство.


Предимства:

-       Само по 3 апартамента на етаж, осигуряващи спокойствиеправилни форми и просторни квадратури.

-       Изложението е Север-Юг – гарантирана естествена светлина и уют през целия ден.

-       Широки зелени площи – за разходки, игри и релакс сред природата.

-       Избор между дворове и големи тераси – за семейно уединение или панорамни гледки към Витоша и София.

-       Луксозни общи части – стил и престиж на всяка стъпка.

 

Разнообразие от жилища – 2-стайни, 3-стайни, 4-стайни и 5-стайни апартаменти.


Възможност за покупка на подземни паркоместа и гаражи.


В момента е на етап изкопни дейности и ще бъде завършена 2027г.


Локация:

·      Само на минути от Ring Mall

·      Бърз достъп до Околовръстен път – винаги близо до всичко важно.

·      В близост до бъдеща метростанция!


Билдинг Бокс предоставя безплатна консултация и съдействие при финансиране на избрания от Вас имот.

Оферта № 19332

Имаш интерес?

Свържи се
с нас

Имаш интерес?

Свържи се
с нас

Допълнителни детайли

  • Номер на имота: 19332
  • Цена: € 204,238
    (399,454.81 лв.)
  • Спални: 2
  • Площ: 110
  • Статус на имота: Купи

Размер на кредит

| €

2,500 €

500,000 €

Срок на кредит

| месеца

36 месеца

360 месеца

Лихвен процент

| %

2.45%

5%

Месечна вноска

ГПР %

Общо дължима сума

Действия по вписване на ипотека (Еднократно)

€20.45

Такса за проверка и анализ на обезпечението по кредита (Еднократно)

€204.52

Такса план (Месечно)

€6.13

Такса за оценка на обезпечение (Еднократно)

€120.15

Powered by Credia

Стойност на имота

€204238 / 399455 лв.

Ценови диапазон за наем на 3-стаен в Малинова Долина, София

€800 - €950

Процент на възвръщаемост:

5.58%

*Цените са ориентировачни. За повече информация се свържете с наш консултант.

Powered by Credia

Обадете се 0879900994
ПОДОБНИ ИМОТИ

ПОДОБНИ
ИМОТИ

Сравняване на списъци

Сравни
Васил Попов
  • Васил Попов

Внимание

Академиите в София, Пловдив и Варна се провеждат 3 пъти в годината – в началото на всяка година, на пролет и на есен.

Очаквайте да се свържем с вас, за да се запишете за следващият свободен прозорец.

This site is registered on wpml.org as a development site. Switch to a production site key to remove this banner.