Имоти
Имоти

Продава 4-стаен

София, Дружба 2

Общ преглед

  • 4-стаен
  • Тип имот
  • 3
  • Спални
  • 151
  • 2023
  • Година на строеж

Описание

Билдинг Бокс предлага за продажба луксозно обзаведен четиристаен апартамент в сграда Авигея с Акт 16 от 2023 година в Дружба 2.

 

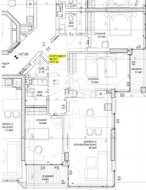
Жилището се намира на единадесети етаж от общо шестнадесет със застроена площ от 123 кв.м, състоящо се от: входно антре, всекидневна, три самостоятелни спални, две бани с тоалетни, складово помещение и две тераси. Изложението е юг - изток.

Отоплението е на ТЕЦ с изкарани изводи за климатици.


Сградата е тухлена, построена от реномирания строител Артекс, и е с висококачествено изпълнение и отлични общи части. Разполага с четири асансьора и има възможност за покупка на гараж и паркомясто.


Този апартамент съчетава удобство, комфорт и стил в едно. Обзавеждането е изпълнено по дизайнерски проект с висок клас уреди и мебели съчетани стилно и максимално функционално.

С модерното си обзавеждане и висококачествени довършителни работи, той е готов за незабавно нанасяне. Насладете се на спокойствието и уюта в този просторен дом с великолепна гледка към Витоша.


Апартаментът е разположен в квартал с отлична инфраструктура. В близост се намират метростанция Дружба, летище, магазини, училища, детски градини и разнообразен градски транспорт.

Цената на Апартамента е без ДДС.


Билдинг Бокс предоставя безплатна консултация и съдействие при финансиране на избрания от Вас имот.


Оферта № 14264

Имаш интерес?

Свържи се
с нас

Имаш интерес?

Свържи се
с нас

Допълнителни детайли

  • Номер на имота: 14264
  • Цена: € 411,975
    (805,753.06 лв.)
  • Спални: 3
  • Площ: 151
  • Статус на имота: Купи

Размер на кредит

| €

2,500 €

500,000 €

Срок на кредит

| месеца

36 месеца

360 месеца

Лихвен процент

| %

2.45%

5%

Месечна вноска

ГПР %

Общо дължима сума

Действия по вписване на ипотека (Еднократно)

€20.45

Такса за проверка и анализ на обезпечението по кредита (Еднократно)

€204.52

Такса план (Месечно)

€6.13

Такса за оценка на обезпечение (Еднократно)

€120.15

Powered by Credia

Стойност на имота

€411975 / 805754 лв.

Няма данни за наемите в района.

Powered by Credia

Обадете се 0879900994
ПОДОБНИ ИМОТИ

ПОДОБНИ
ИМОТИ

Сравняване на списъци

Сравни
Васил Попов
  • Васил Попов

Внимание

Академиите в София, Пловдив и Варна се провеждат 3 пъти в годината – в началото на всяка година, на пролет и на есен.

Очаквайте да се свържем с вас, за да се запишете за следващият свободен прозорец.

This site is registered on wpml.org as a development site. Switch to a production site key to remove this banner.