Имоти
Имоти

Продава Къща в Симеоново

София, Симеоново

Общ преглед

  • Къща
  • Тип имот
  • 4
  • Спални
  • 360
  • 2002
  • Година на строеж

Описание

БИЛДИНГ БОКС има удоволствието да Ви представи ново предложение - дом заобиколен от природа, спокойствие и простор.

 

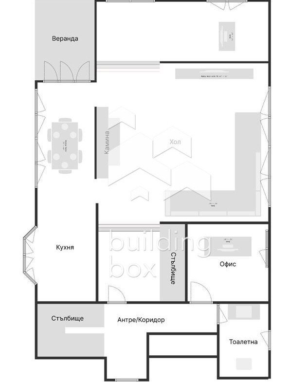
Къща със самостоятелен двор от 858 кв.м и с площ от 360 кв.м.

Първото ниво се състои от: антре, голяма дневна с трапезария и кухня, тоалетна и прекрасна веранда.

Второто ниво: две самостоятелни спални, към една от които има дрешник и баня с тоалетна.

На третото ниво: две спални със самостоятелни баня и тоалетна, библиотека.


Пред къщата има гараж за две коли, две паркоместа в двора, както и 3 паркоместа пред самата къща. Сутеренът на къщата е 90 кв.м., където са поместени перално помещение и изба.

Възможно е да се изградят СПА център, фитнес и дори киносалон.


Отоплението е на газ и климатици.

Прекрасният двор се поддържа от косачка-робот, както и поливна система, свързана към собствен кладенец.

Има канализация.

 Основното изложение на къщата е изток-юг.


Къщата е в един от най-желаните и спокойни райони на София – кв. Симеоново. Локацията съчетава бърз достъп до града и близост до природата. Само на 2 минути с автомобил от Околовръстен път, мястото осигурява отлична връзка с Бизнес парк, кварталите Драгалевци, Малинова долина и бул. „Симеоновско шосе“.

 


 Билдинг Бокс предоставя безплатна консултация и кредитно съдействие при финансиране на избрания от Вас имот.

Оферта № 24106

Имаш интерес?

Свържи се
с нас

Имаш интерес?

Свържи се
с нас

Допълнителни детайли

  • Номер на имота: 24106
  • Цена: € 1,250,000
    (2,444,787.50 лв.)
  • Спални: 4
  • Площ: 360
  • Статус на имота: Купи

Размер на кредит

| €

2,500 €

500,000 €

Срок на кредит

| месеца

36 месеца

360 месеца

Лихвен процент

| %

2.45%

5%

Месечна вноска

ГПР %

Общо дължима сума

Действия по вписване на ипотека (Еднократно)

€20.45

Такса за проверка и анализ на обезпечението по кредита (Еднократно)

€204.52

Такса план (Месечно)

€6.13

Такса за оценка на обезпечение (Еднократно)

€120.15

Powered by Credia

Стойност на имота

€1250000 / 2444788 лв.

Няма данни за наемите в района.

Powered by Credia

Обадете се 0879900994
ПОДОБНИ ИМОТИ

ПОДОБНИ
ИМОТИ

Сравняване на списъци

Сравни
Ана Сеферова
  • Ана Сеферова

Внимание

Академиите в София, Пловдив и Варна се провеждат 3 пъти в годината – в началото на всяка година, на пролет и на есен.

Очаквайте да се свържем с вас, за да се запишете за следващият свободен прозорец.

This site is registered on wpml.org as a development site. Switch to a production site key to remove this banner.