Имоти
Имоти

Продава просторен магазин или офис в Стрелбище

София, Стрелбище

Общ преглед

  • Магазин
  • Тип имот
  • 2
  • Спални
  • 143
  • 2025
  • Година на строеж

Описание

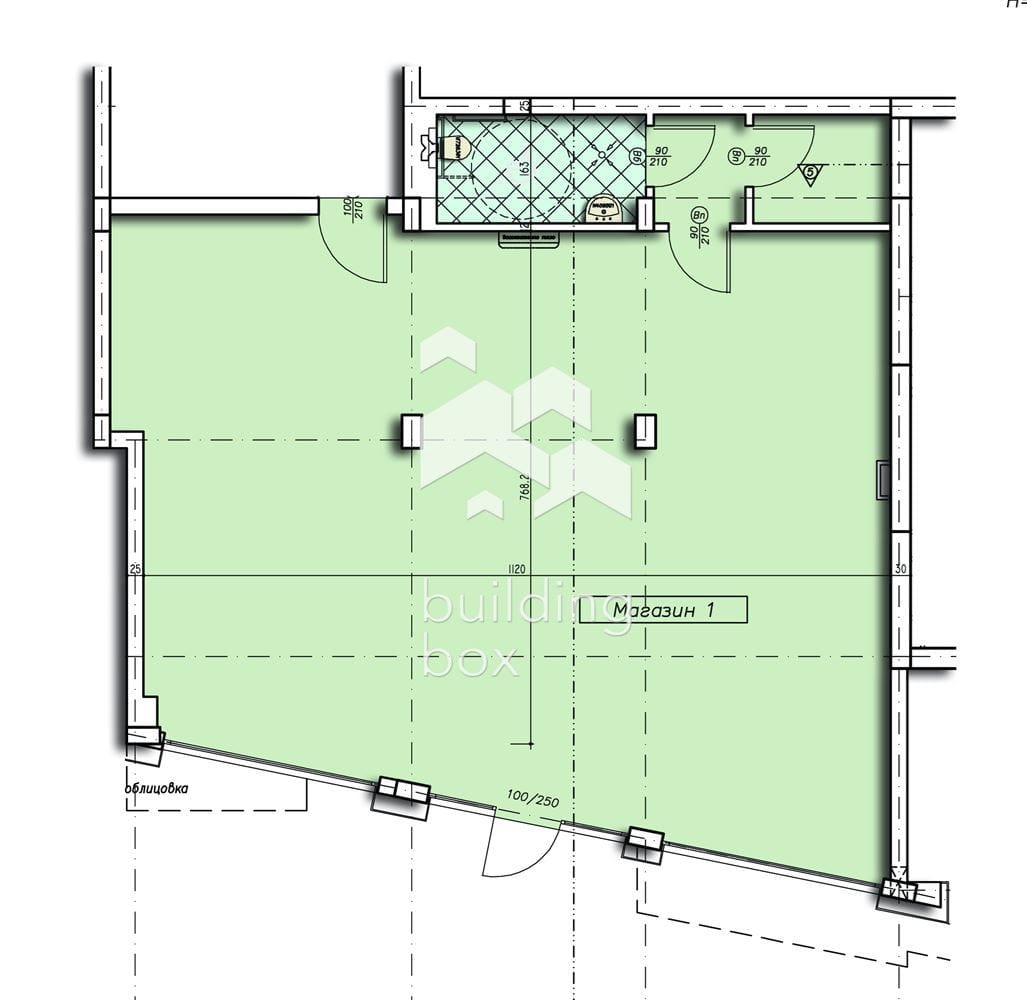
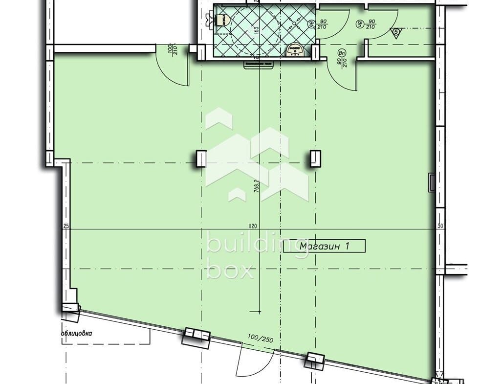
Билдинг Бокс предлага за продажба просторен магазин или офис на партерен етаж от общо 8 етажа в квартал Стрелбище.


Жилището е с обща площ от 143,10 кв.м. състоящ се от: 100 кв.м. търговска площ, тоалетна,склад и коридор.

Височина на таваните 3,70м.


ПРЕДИМСТВА:

Локацията е в близост до паркове и детски градини, училища, търговски центрове и магазини. Удобно и бързо придвижване до Центъра и други точки на гр. София. Строителството е изключително качествено, с добре обмислена архитектура, задоволяваща и най-изтънченият вкус:


- алуминиева дограма на Schuco и вентилируема фасада от гранитогрес на LAMINAM;

-френски прозорци;

- специални вентилационни системи, които осигуряват ефективна и енергоспестяваща вентилация в сградата..

- Топлоотдаването в сградата е централно от Топлофикация . Предвидени са трасета на климатици към всички стаи.


Сградата разполага с паркоместа на ниво -1 и -2 с рампа на цена 55 000 евро.



Билдинг Бокс предоставя безплатна консултация и съдействие при финансиране на избрания от Вас имот.

Оферта №19940

Имаш интерес?

Свържи се
с нас

Имаш интерес?

Свържи се
с нас

Допълнителни детайли

  • Номер на имота: 19940
  • Цена: € 545,000
    (1,065,927.35 лв.)
  • Спални: 2
  • Площ: 143
  • Статус на имота: Купи

Размер на кредит

| €

2,500 €

500,000 €

Срок на кредит

| месеца

36 месеца

360 месеца

Лихвен процент

| %

2.45%

5%

Месечна вноска

ГПР %

Общо дължима сума

Действия по вписване на ипотека (Еднократно)

€20.45

Такса за проверка и анализ на обезпечението по кредита (Еднократно)

€204.52

Такса план (Месечно)

€6.13

Такса за оценка на обезпечение (Еднократно)

€120.15

Powered by Credia

Стойност на имота

€545000 / 1065928 лв.

Няма данни за наемите в района.

Powered by Credia

Обадете се 0879900994
ПОДОБНИ ИМОТИ

ПОДОБНИ
ИМОТИ

Сравняване на списъци

Сравни
Ина Димитрова
  • Ина Димитрова

Внимание

Академиите в София, Пловдив и Варна се провеждат 3 пъти в годината – в началото на всяка година, на пролет и на есен.

Очаквайте да се свържем с вас, за да се запишете за следващият свободен прозорец.

This site is registered on wpml.org as a development site. Switch to a production site key to remove this banner.