Имоти
Имоти

Продава тристаен апартамент в Банкя

София, Банкя

Общ преглед

  • 3-стаен
  • Тип имот
  • 2
  • Спални
  • 123

Описание

Билдинг Бокс предлага прекрасна новострояща се жилищна сграда в сърцето на град Банкя. Имотът се намира на етаж 2-ри от общо 4, като е изключително подходящ за живеене, поради просторните пространства в имота, както за инвестиционен имот.



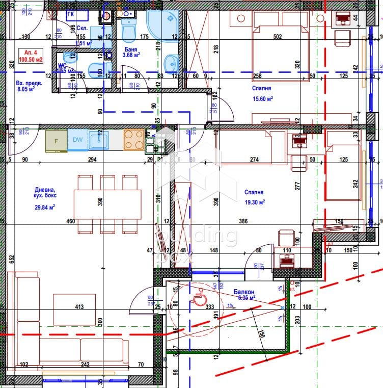
Имотът е с много добро разпределение, със застроена площ от 100.50кв.м. Състои се от антре, дневна с кухненски бокс,2 спални, баня с тоалетна, тоалетна и склад. Изложението на апартамента е Североизток и изток.


Сградата е предвидена да се отоплява на Газ.


В непосредтсвена близост е до магазин Фантастико, голям парк, ресторанти, танцови и езикови школи и спирки на градския транспорт. Град Банкя осигурява на своите жители тишина и спокойствие, зеленина и пространство, придаващо уют ниско строителство и чист въздух. На разположение на жителите е наскоро реновираната минерална баня, както и хубав, поддържан парк и “Пътеката на здравето”, които предлагат възможности за разходки, рекреация и спорт.





Билдинг Бокс предоставя безплатна консултация и съдействие при финансиране на избрания от Вас имот.


Оферта:19544

Имаш интерес?

Свържи се
с нас

Имаш интерес?

Свържи се
с нас

Допълнителни детайли

  • Номер на имота: 19544
  • Цена: € 221,814
    (433,830.48 лв.)
  • Спални: 2
  • Площ: 123
  • Статус на имота: Купи

Размер на кредит

| €

2,500 €

500,000 €

Срок на кредит

| месеца

36 месеца

360 месеца

Лихвен процент

| %

2.45%

5%

Месечна вноска

ГПР %

Общо дължима сума

Действия по вписване на ипотека (Еднократно)

€20.45

Такса за проверка и анализ на обезпечението по кредита (Еднократно)

€204.52

Такса план (Месечно)

€6.13

Такса за оценка на обезпечение (Еднократно)

€120.15

Powered by Credia

Стойност на имота

€221814 / 433831 лв.

Няма данни за наемите в района.

Powered by Credia

Обадете се 0879900994
ПОДОБНИ ИМОТИ

ПОДОБНИ
ИМОТИ

Сравняване на списъци

Сравни
Ина Димитрова
  • Ина Димитрова

Внимание

Академиите в София, Пловдив и Варна се провеждат 3 пъти в годината – в началото на всяка година, на пролет и на есен.

Очаквайте да се свържем с вас, за да се запишете за следващият свободен прозорец.

This site is registered on wpml.org as a development site. Switch to a production site key to remove this banner.