БИЛДИНГ БОКС има удоволствието да Ви представи новострояща се самостоятелна триетажна къща в село Първенец.
Предимства на имота:
- ЛОКАЦИЯ: Намира се в село Първенец, разположена на асфалтирана улица с канализация. Мястото осигурява спокойствие и отлична достъпност.
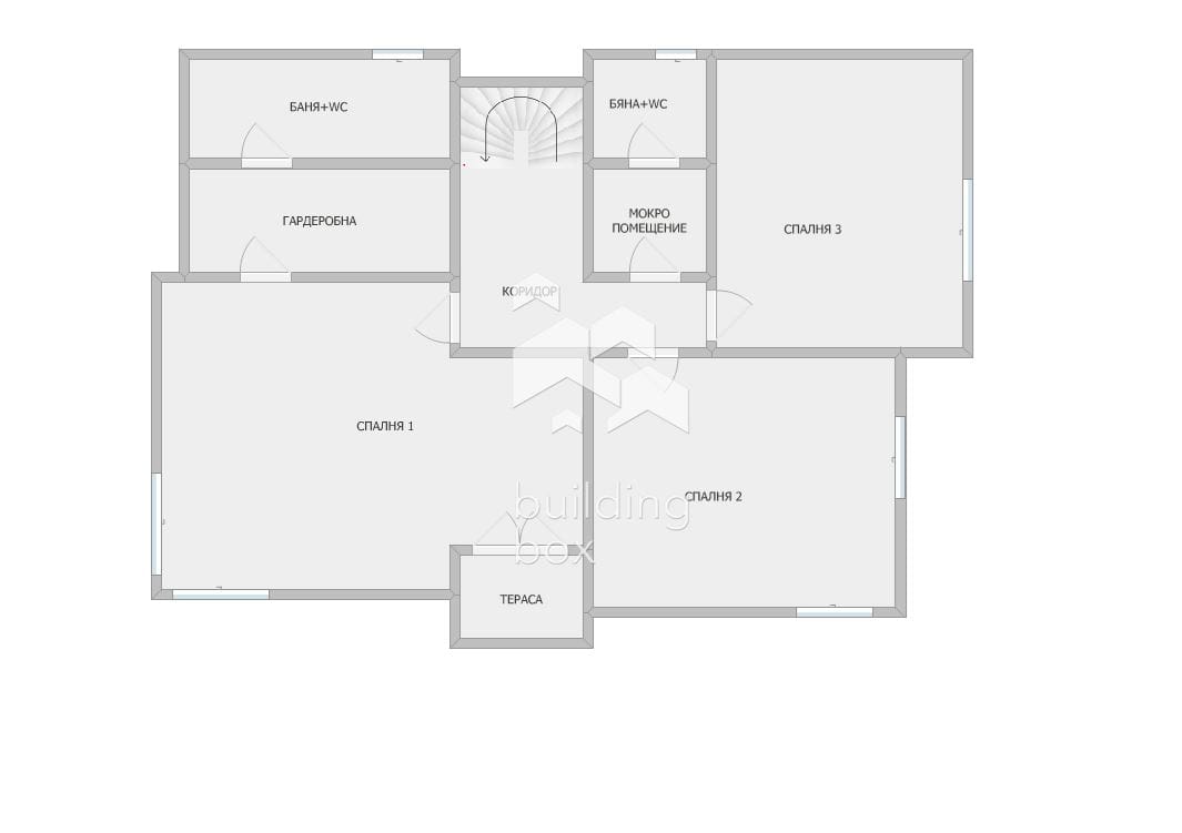
- РАЗПРЕДЕЛЕНИЕ:
- ОТОПЛЕНИЕ: Електричество. Има и предвидено място за камина.
- ПАРКИРАНЕ: Двоен гараж включен в цената.
- ПРЕДИМСТВА:
- СТРОИТЕЛСТВО: Безкомпромисно строителство с качествени материали: Тухли Weinerberger, покрив с двойна хидроизолация и керемиди Тондах, 6-камерна алуминиева дограма Kommerling с троен стъклопакет, 10см. външна изолация и минерална мазилка.
- СТЕПЕН НА ЗАВЪРШЕНОСТ: Къщата е пред АКТ15.
БИЛДИНГ БОКС предоставя безплатна консултация и съдействие при финансиране на избрания от Вас имот.
Оферта № 17104
| €
2,500 €
500,000 €
| месеца
36 месеца
360 месеца
| %
2.45%
5%
Месечна вноска
ГПР %
Общо дължима сума
Действия по вписване на ипотека (Еднократно)
€20.45
Такса за проверка и анализ на обезпечението по кредита (Еднократно)
€204.52
Такса план (Месечно)
€6.13
Такса за оценка на обезпечение (Еднократно)
€120.15
Powered by Credia
Подходящ се за предварително одобрение!
Lorem ipsum dolor sit amet, consectetur adipiscing elit. Maecenas imperdiet leo nisl, et porta massa tempus eget. Sed vestibulum sagittis ante eu dictum.
Няма данни за наемите в района.
Powered by Credia
Подходящ се за предварително одобрение!
Lorem ipsum dolor sit amet, consectetur adipiscing elit. Maecenas imperdiet leo nisl, et porta massa tempus eget. Sed vestibulum sagittis ante eu dictum.
Сравняване на списъци
СравниМоля, въведете вашето потребителско име или имейл адрес. Ще получите връзка за създаване на нова парола по имейл.
Академиите в София, Пловдив и Варна се провеждат 3 пъти в годината – в началото на всяка година, на пролет и на есен.
Очаквайте да се свържем с вас, за да се запишете за следващият свободен прозорец.