Имоти
Имоти

Самостоятелна триетажна къща – с. Първенец

Пловдив, област, с.Първенец

Общ преглед

  • Къща
  • Тип имот
  • 3
  • Спални
  • 265
  • 2025
  • Година на строеж

Описание

БИЛДИНГ БОКС има удоволствието да Ви представи новострояща се самостоятелна триетажна къща в село Първенец.


Предимства на имота:

- ЛОКАЦИЯ: Намира се в село Първенец, разположена на асфалтирана улица с канализация. Мястото осигурява спокойствие и отлична достъпност.

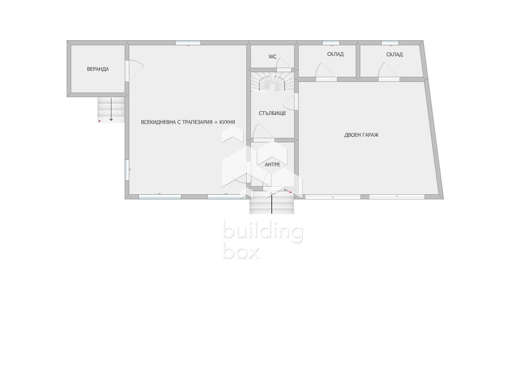
- РАЗПРЕДЕЛЕНИЕ:

  • Етаж 1 - Просторна всекидневна (40 кв.м.) с кухненски кът и трапезария с високи тавани и френски прозорци, веранда, входно антре, склад и санитарно помещение.
  • Етаж 2 - Родителска спалня с отделно помещение за гардероб и баня, две спални, мокро помещение, още една баня и две тераси.
  • Етаж 3 - Подпокривно пространство с уникална гледка към Родопите, което може да бъде обособено спрямо нуждите на клиента.

- ОТОПЛЕНИЕ: Електричество.

- ПАРКИРАНЕ: Двоен гараж включен в цената.

- ДОПЪЛНИТЕЛНИ ПРЕДИМСТВА:

  • Изключителна локация с гледка към Родопите;
  • Просторни и светли помещения с високи тавани и френски прозорци;
  • Безкомпромисно строителство с качествени материали;
  • Тиха и спокойна улица с канализация и асфалт;
  • Възможност за персонализиране на интериора

- СТРОИТЕЛСТВО: Безкомпромисно строителство с качествени материали: тухли Weinerberger, покрив с двойна хидроизолация и керемиди Тондах, 6-камерна алуминиева дограма Kommerling с троен стъклопакет, 10см. външна изолация и минерална мазилка.

- СТЕПЕН НА ЗАВЪРШЕНОСТ: Къщата е след Акт 14.


БИЛДИНГ БОКС предоставя безплатна консултация и съдействие при финансиране на избрания от Вас имот.

Оферта № 17102

Имаш интерес?

Свържи се
с нас

Имаш интерес?

Свържи се
с нас

Допълнителни детайли

  • Номер на имота: 17102
  • Цена: € 350,000
    (684,540.50 лв.)
  • Спални: 3
  • Площ: 265
  • Статус на имота: Купи

Размер на кредит

| €

2,500 €

500,000 €

Срок на кредит

| месеца

36 месеца

360 месеца

Лихвен процент

| %

2.45%

5%

Месечна вноска

ГПР %

Общо дължима сума

Действия по вписване на ипотека (Еднократно)

€20.45

Такса за проверка и анализ на обезпечението по кредита (Еднократно)

€204.52

Такса план (Месечно)

€6.13

Такса за оценка на обезпечение (Еднократно)

€120.15

Powered by Credia

Стойност на имота

€350000 / 684541 лв.

Няма данни за наемите в района.

Powered by Credia

Обадете се 0877190777
ПОДОБНИ ИМОТИ

ПОДОБНИ
ИМОТИ

Сравняване на списъци

Сравни
Мариян Томов
  • Мариян Томов

Внимание

Академиите в София, Пловдив и Варна се провеждат 3 пъти в годината – в началото на всяка година, на пролет и на есен.

Очаквайте да се свържем с вас, за да се запишете за следващият свободен прозорец.

This site is registered on wpml.org as a development site. Switch to a production site key to remove this banner.