Имоти
Имоти

Страхотен тристаен апартамент на 5 минути от Катедралният храм

Варна, Бизнес хотел

Общ преглед

  • 3-стаен
  • Тип имот
  • 2
  • Спални
  • 1
  • Баня
  • 127
  • 2025
  • Година на строеж

Описание

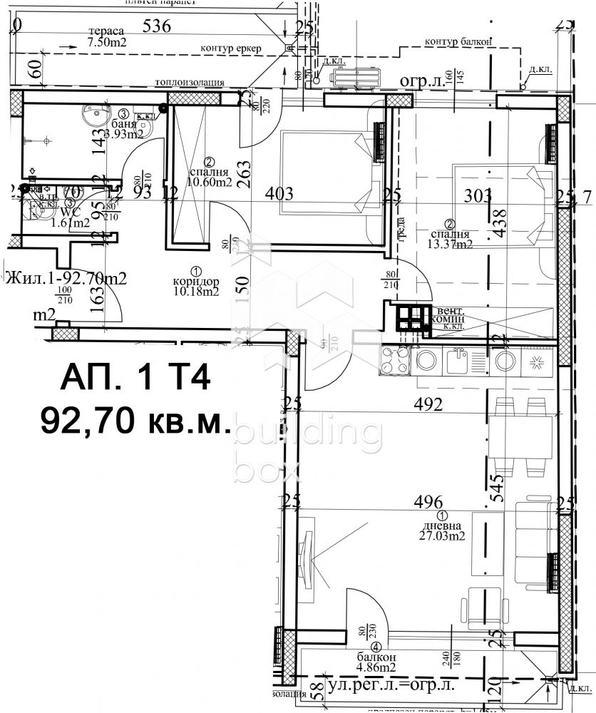
БИЛДИНГ БОКС предлага за продажба тристаен апартамент в жилищна сграда с акт 16

  

– ЛОКАЦИЯ : Жилищната сграда се намира в непосредствена близост до Катедралният храм. Локация с бърз достъп до главен булевард, в квартал с модерни нови жилища. Жилищната сграда се намира в близост до различни обществени имоти, търговски обекти, медицински центрове и морската градина. Отлична локация. Лесен достъп до градски транспорт.


– РАЗПРЕДЕЛЕНИЕ : Практично разпределен тристаен апартамент, който съчетава функционалност и съвременен стил. Състои се от просторна дневна с място за кухненски бокс и трапезария, родителска спалня, втора спалня за, баня с тоалет, отделно тоалет и две тераси. Благодарение на големите прозорци, пространството е изпълнено с естествена светлина, което създава усещане за уют и откритост.


– ЕТАЖНОСТ : Етаж 2 от 8


– ИЗЛОЖЕНИЕ : Североизток/Югозапад


– ОТОПЛЕНИЕ : Електричество



– ПАРКИРАНЕ : Налични подземни паркоместа


– ЕТАП НА СТРОИТЕЛСТВО : акт 16


– СГРАДА : Сградата е проектирана на 8 жилищни етажа. Апартаментите разполагат с функционални разпределения с всекидневни и спални с голяма площ, максимална светлина и простор. Качествено строителство.Тих асансьор. Видео наблюдение.


ИНВЕСТИТОР : Инвеститор с голямо портфолио завършени и успешно въведени в експлоатация сгради.

 

Билдинг Бокс предоставя безплатна консултация и съдействие при финансиране на избрания от Вас имот.


Оферта № 24347

Имаш интерес?

Свържи се
с нас

Имаш интерес?

Свържи се
с нас

Допълнителни детайли

  • Номер на имота: 24347
  • Цена: € 250,000
    (488,957.50 лв.)
  • Спални: 2
  • Баня: 1
  • Площ: 127
  • Статус на имота: Купи

Размер на кредит

| €

2,500 €

500,000 €

Срок на кредит

| месеца

36 месеца

360 месеца

Лихвен процент

| %

2.45%

5%

Месечна вноска

ГПР %

Общо дължима сума

Действия по вписване на ипотека (Еднократно)

€20.45

Такса за проверка и анализ на обезпечението по кредита (Еднократно)

€204.52

Такса план (Месечно)

€6.13

Такса за оценка на обезпечение (Еднократно)

€120.15

Powered by Credia

Стойност на имота

€250000 / 488958 лв.

Ценови диапазон за наем на 3-стаен в Бизнес хотел, Варна

€600 - €700

Процент на възвръщаемост:

3.36%

*Цените са ориентировачни. За повече информация се свържете с наш консултант.

Powered by Credia

Обадете се 0879900993
ПОДОБНИ ИМОТИ

ПОДОБНИ
ИМОТИ

Сравняване на списъци

Сравни
Пресиян Ангелов
  • Пресиян Ангелов

Внимание

Академиите в София, Пловдив и Варна се провеждат 3 пъти в годината – в началото на всяка година, на пролет и на есен.

Очаквайте да се свържем с вас, за да се запишете за следващият свободен прозорец.

This site is registered on wpml.org as a development site. Switch to a production site key to remove this banner.