Имоти
Имоти

Студио в кв. Дружба 1

София, Дружба 1

Общ преглед

  • 1-стаен
  • Тип имот
  • 1
  • Спалня
  • 87
  • 2026
  • Година на строеж

Описание

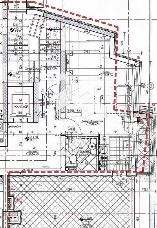
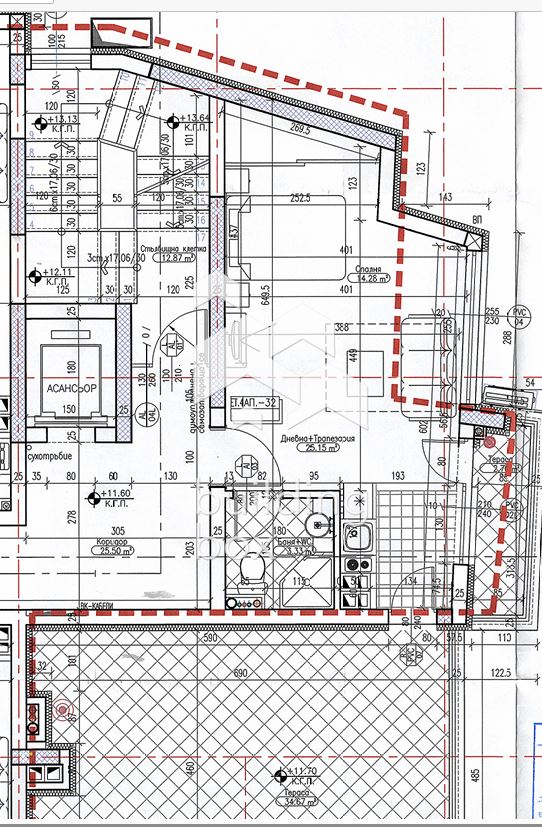
БИЛДИНГ БОКС предлага за продажба студио в кв. Дружба 1.


Апартаментът се състои от: еднопространствено помещение с кухн. бокс , дневна и кът за спане, баня с тоалетна и тераса - 35 м2.

Изложение: Юг.

Имотът се намира на пети етаж от общо шест. 

Ще бъде предаден на шпакловка и замазка, като има възможност, за довършителни работи на преференциални цени.


Сградата е разположена в най- хубавата част на кв. Дружба - до езерото, с модерна архитектура, функционални разпределения и отлична локация. Концепцията e осъществена, с мисъл към семейството и за хора, които не биха направили компромис с дома си.

Състои се от: 37 апартамента от различна големина и 42 паркоместа.

На пешеходно разстояние се намират - училище, детска градина, хранителни магазини , парк Езерото, метростанция.

Районът предоставя на своите бъдещи жители и техните гости отлични условия за спокоен живот.


Планиран срок за въвеждане в експлоатация на комплекса - Юни месец 2026г.


БИЛДИНГ БОКС предоставя безплатна консултация и съдеиствие при финансиране на избрания от вас имот.


Оферта № 25767

Имаш интерес?

Свържи се
с нас

Имаш интерес?

Свържи се
с нас

Допълнителни детайли

  • Номер на имота: 25767
  • Цена: € 227,400
    (444,755.74 лв.)
  • Спалня: 1
  • Площ: 87
  • Статус на имота: Купи

Размер на кредит

| €

2,500 €

500,000 €

Срок на кредит

| месеца

36 месеца

360 месеца

Лихвен процент

| %

2.45%

5%

Месечна вноска

ГПР %

Общо дължима сума

Действия по вписване на ипотека (Еднократно)

€20.45

Такса за проверка и анализ на обезпечението по кредита (Еднократно)

€204.52

Такса план (Месечно)

€6.13

Такса за оценка на обезпечение (Еднократно)

€120.15

Powered by Credia

Стойност на имота

€227400 / 444756 лв.

Ценови диапазон за наем на 1-стаен в Дружба 1, София

€430 - €500

Процент на възвръщаемост:

2.64%

*Цените са ориентировачни. За повече информация се свържете с наш консултант.

Powered by Credia

Обадете се 0879900994
ПОДОБНИ ИМОТИ

ПОДОБНИ
ИМОТИ

Сравняване на списъци

Сравни
Красимир Крумов
  • Красимир Крумов

Внимание

Академиите в София, Пловдив и Варна се провеждат 3 пъти в годината – в началото на всяка година, на пролет и на есен.

Очаквайте да се свържем с вас, за да се запишете за следващият свободен прозорец.

This site is registered on wpml.org as a development site. Switch to a production site key to remove this banner.