Имоти
Имоти

Тристаен апартамент АКТ 15 в кв. Дианабад

София, Дианабад

Общ преглед

  • 3-стаен
  • Тип имот
  • 2
  • Спални
  • 1
  • Баня
  • 210
  • 2023
  • Година на строеж

Описание

Билдинг Бокс предлага за продажба тристаен апартамент в кв. Дианабад, в близост до парк Студентски и х-л Вега.


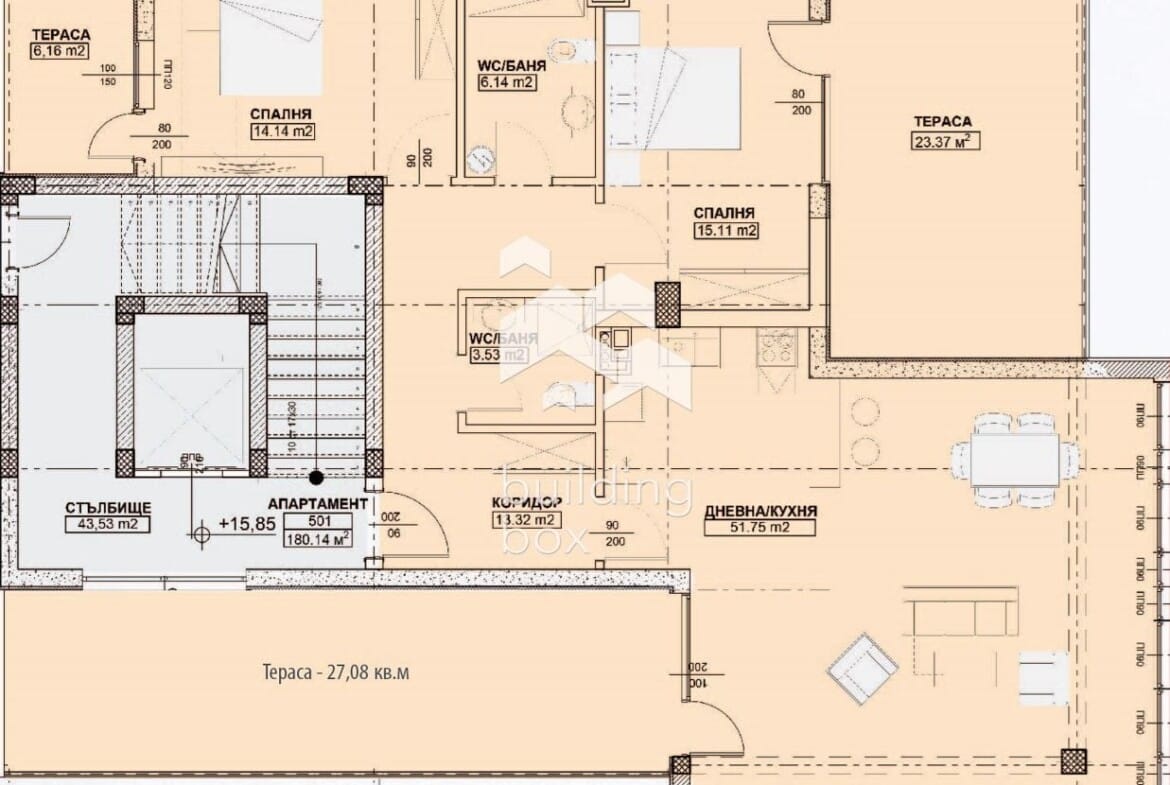
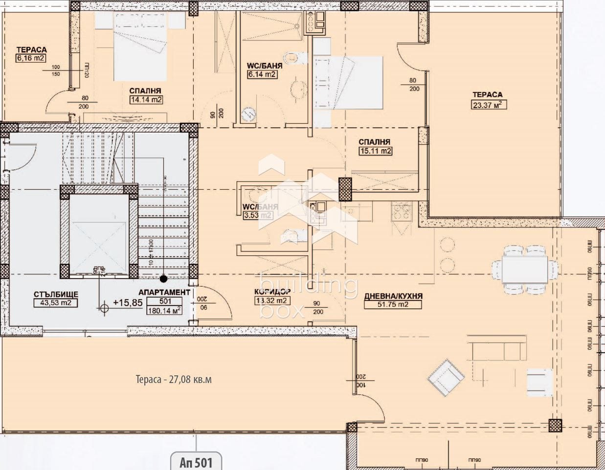
Апартаментът е с чиста застроена площ 128.82 кв.м, както и панорамни тераси с обща квадратура от 49.93 кв.м, разположен на шести етаж от общо шест етажа. Апартаментът се състои от входно антре, дневна с кухненски бокс, две спални, две бани с тоалетни, три тераси и отделно складово помещение. Изложението е юг-запад-изток. Отоплението е на ТЕЦ.


Бутиковата шест етажна жилищна сграда се състои само от 16 апартамента, намира се на пешеходна близост до метростанция Г.М. Димитров, супермаркет Фантастико, аптека, парк Студентски, училище и детски градини.


Строителство:

  • Зидария - високоенергийни тухлени блокове 25 см и преградни 12 см;
  • Дограма - алуминиева, ETEM E45, прахово боядисани в цвят RAL7016 мат;
  • EPDM уплътнители;
  • Обков GU - Германия, 60мм ширина на профила 67мм ширина на крилото, 36мм стъклопакет, изградени от 2 бр. безцветни стъкла по 4 мм и външно четири сезонно;
  • Топлоизолация - EPS 10см - рьофикс, силиконова външна мазилка 1.5, HPL и каменна вата 10см за декоративни орнаменти около отворите;
  • Вътрешна машинна мазилка - варо-гипсова шпакловка Rofix 150 - 2см;
  • Хидроизолация - VJF газопламъчна 2 пласта - 4 мм без посипка SBS, 4,5 кг с посипка SBS , в основите VJF газопламъчна 2 пласта - 4 кг без посипка SBS, 4 кг без посипка SBS;
  • Балкони - МАПЕИ двукомпоненктна
  • Положен тръбен път за климатици във всяка стая;
  • ТЕЦ;
  • Входни врати блиндирани;
  • Асансьор Лифтком - електрически, безредукторен, мотор - Alberto Sassi – Италия с честотно управление VVVF.


Впечатляващия и едновременно семпъл и изчистен дизайн на сградата придава стил и естетика на мястото, където е ситуирана. Балансът между подбраните материали я превръща в изключително приятна за окото гледка в така натоварената градска среда.


Има възможност за покупка на Гаражи и паркоместа.


Може да се възползвате от изключително гъвкави схеми на плащане, позволяващи комбинирани начини на финансиране.


Билдинг Бокс предоставя безплатна консултация и съдействие при финансиране на избрания от Вас имот. 

Оферта 6451

Имаш интерес?

Свържи се
с нас

Имаш интерес?

Свържи се
с нас

Допълнителни детайли

  • Номер на имота: 6451
  • Цена: € 660,000
    (1,290,847.80 лв.)
  • Спални: 2
  • Баня: 1
  • Площ: 210
  • Статус на имота: Купи

Размер на кредит

| €

2,500 €

500,000 €

Срок на кредит

| месеца

36 месеца

360 месеца

Лихвен процент

| %

2.45%

5%

Месечна вноска

ГПР %

Общо дължима сума

Действия по вписване на ипотека (Еднократно)

€20.45

Такса за проверка и анализ на обезпечението по кредита (Еднократно)

€204.52

Такса план (Месечно)

€6.13

Такса за оценка на обезпечение (Еднократно)

€120.15

Powered by Credia

Стойност на имота

€660000 / 1290848 лв.

Ценови диапазон за наем на 3-стаен в Дианабад, София

€800 - €950

Процент на възвръщаемост:

1.73%

*Цените са ориентировачни. За повече информация се свържете с наш консултант.

Powered by Credia

Обадете се 0877734412
ПОДОБНИ ИМОТИ

ПОДОБНИ
ИМОТИ

Сравняване на списъци

Сравни
Антонио Динев
  • Антонио Динев

Внимание

Академиите в София, Пловдив и Варна се провеждат 3 пъти в годината – в началото на всяка година, на пролет и на есен.

Очаквайте да се свържем с вас, за да се запишете за следващият свободен прозорец.

This site is registered on wpml.org as a development site. Switch to a production site key to remove this banner.