Имоти
Имоти

Тристаен апартамент – кв. Гагарин

Пловдив, Гагарин

Общ преглед

  • 3-стаен
  • Тип имот
  • 2
  • Спални
  • 111
  • 2027
  • Година на строеж

Описание

БИЛДИНГ БОКС предлага за продажба тристаен апартамент пред АКТ 14 в кв. Гагарин.


Предимства на имота:

- ЛОКАЦИЯ: Комплексът е разположен в квартал Гагарин, в близост до основни пътни артерии, детски градини, училища и паркове, супермаркети - Lidl и Kaufland, като в същото време е на 10 минути пешеходно разстояние от центъра на гр. Пловдив.

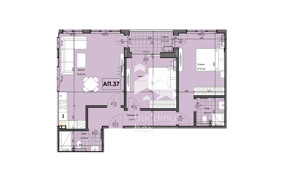
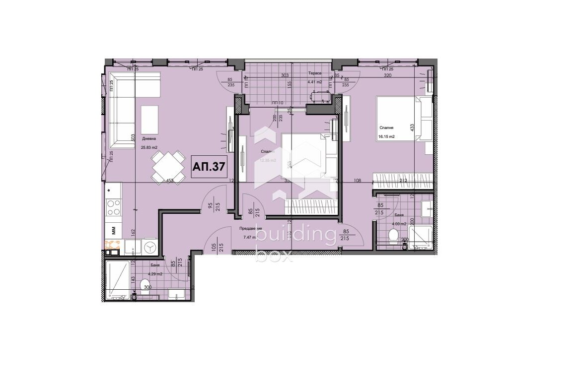
- РАЗПРЕДЕЛЕНИЕ: Просторна всекидневна с кухненски бокс, с площ от 25,83 кв.м, родителска спалня с площ от 16,15 кв.м, към която има и баня с тоалетна, още една спалня - 12,36 кв.м, втора баня с тоалетна и тераса.

- ОТОПЛЕНИЕ: Електричество.

- ИЗЛОЖЕНИЕ: СЕВЕР/ЗАПАД.

- ЕТАЖ: 9-ти етаж от общо 10

- ПАРКИРАНЕ: С възможност за закупуване на паркомясто от инвеститора.

- СГРАДА: Нова сграда от инвеститор с богат опит и над 17 години в бранша.

- ЕТАП НА СТРОИТЕЛСТВО: Сградата очаква АКТ 14 през лятото на 2025г.


БИЛДИНГ БОКС предоставя безплатна консултация и съдействие при финансиране на избрания от Вас имот.


Оферта № 23744

Имаш интерес?

Свържи се
с нас

Имаш интерес?

Свържи се
с нас

Допълнителни детайли

  • Номер на имота: 23744
  • Цена: € 109,201
    (213,578.59 лв.)
  • Спални: 2
  • Площ: 111
  • Статус на имота: Купи

Размер на кредит

| €

2,500 €

500,000 €

Срок на кредит

| месеца

36 месеца

360 месеца

Лихвен процент

| %

2.45%

5%

Месечна вноска

ГПР %

Общо дължима сума

Действия по вписване на ипотека (Еднократно)

€20.45

Такса за проверка и анализ на обезпечението по кредита (Еднократно)

€204.52

Такса план (Месечно)

€6.13

Такса за оценка на обезпечение (Еднократно)

€120.15

Powered by Credia

Стойност на имота

€109201 / 213579 лв.

Ценови диапазон за наем на 3-стаен в Гагарин, Пловдив

€360 - €430

Процент на възвръщаемост:

4.73%

*Цените са ориентировачни. За повече информация се свържете с наш консултант.

Powered by Credia

Обадете се 0879900984
ПОДОБНИ ИМОТИ

ПОДОБНИ
ИМОТИ

Сравняване на списъци

Сравни
Атанас Денчев
  • Атанас Денчев

Внимание

Академиите в София, Пловдив и Варна се провеждат 3 пъти в годината – в началото на всяка година, на пролет и на есен.

Очаквайте да се свържем с вас, за да се запишете за следващият свободен прозорец.

This site is registered on wpml.org as a development site. Switch to a production site key to remove this banner.