Имоти
Имоти

Тристаен апартамент – кв. “Остромила”

Пловдив, Остромила

Общ преглед

  • 3-стаен
  • Тип имот
  • 2
  • Спални
  • 113
  • 2027
  • Година на строеж

Описание

БИЛДИНГ БОКС предлага за продажба тристаен апартамент в гр. Пловдив.


Предимства на имота:

- ЛОКАЦИЯ: Инфраструктурно най-развита локация в кв. Остромила. Намира се на асфалтов път, в близост до нови ниски сгради и къщи.

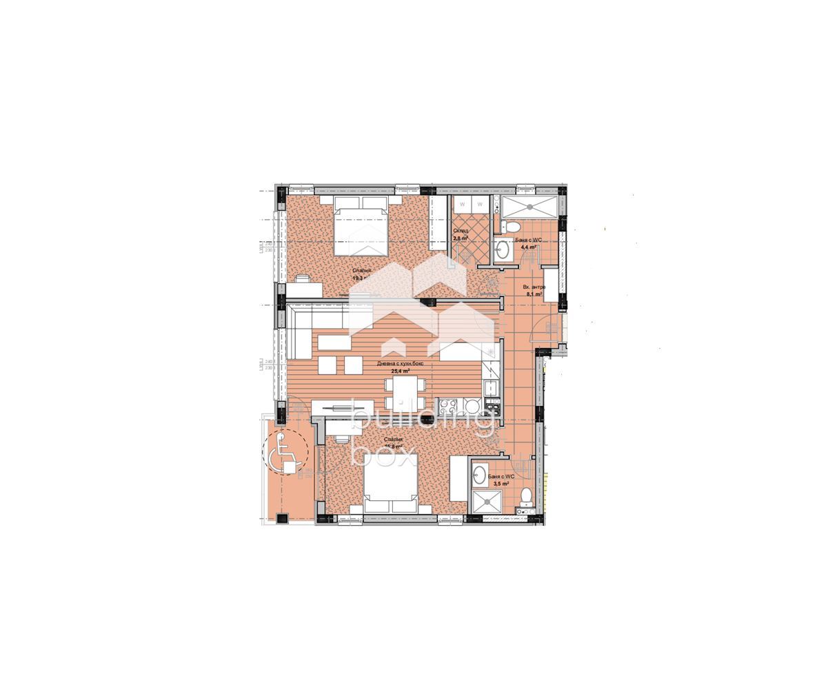
- РАЗПРЕДЕЛЕНИЕ: Просторна всекидневна с кухненски бокс с площ от 25,4 кв.м, спалня с площ от 19,3 кв.м и още една спалня с площ 15,8 кв.м, антре, склад, две бани с тоалетни и тераса*.

- ЕТАЖНОСТ: 2-ри етаж от общо 3.

- ОТОПЛЕНИЕ: Електричество.

- ИЗЛОЖЕНИЕ: ЮГОЗАПАД.

- ПАРКИРАНЕ: Наличие на надземни паркоместа и гаражи.

- СГРАДА: Апартаментът се намира във трета сграда, част от комплекс от 3 малки бутикови сгради на 3 етажа по 3 апартамента на етаж.

- СХЕМА НА ПЛАЩАНЕ: 30% / 30% / 30% 10% - стандартна схема на плащане.

- ЕТАП НА СТРОИТЕЛСТВО: Сградата е в начален етап на строителството. Въвеждане в експлоатация се очаква през 2027г.


* НИСЪК ПРОЦЕНТ ОБЩИ ЧАСТИ


БИЛДИНГ БОКС предоставя безплатна консултация и съдействие при финансиране на избрания от Вас имот.


Оферта № 24299

Имаш интерес?

Свържи се
с нас

Имаш интерес?

Свържи се
с нас

Допълнителни детайли

  • Номер на имота: 24299
  • Цена: € 129,914
    (254,089.70 лв.)
  • Спални: 2
  • Площ: 113
  • Статус на имота: Купи

Размер на кредит

| €

2,500 €

500,000 €

Срок на кредит

| месеца

36 месеца

360 месеца

Лихвен процент

| %

2.45%

5%

Месечна вноска

ГПР %

Общо дължима сума

Действия по вписване на ипотека (Еднократно)

€20.45

Такса за проверка и анализ на обезпечението по кредита (Еднократно)

€204.52

Такса план (Месечно)

€6.13

Такса за оценка на обезпечение (Еднократно)

€120.15

Powered by Credia

Стойност на имота

€129914 / 254090 лв.

Ценови диапазон за наем на 3-стаен в Остромила, Пловдив

€530 - €630

Процент на възвръщаемост:

5.82%

*Цените са ориентировачни. За повече информация се свържете с наш консултант.

Powered by Credia

Обадете се 0877190777
ПОДОБНИ ИМОТИ

ПОДОБНИ
ИМОТИ

Сравняване на списъци

Сравни
Джунейт Узунов
  • Джунейт Узунов

Внимание

Академиите в София, Пловдив и Варна се провеждат 3 пъти в годината – в началото на всяка година, на пролет и на есен.

Очаквайте да се свържем с вас, за да се запишете за следващият свободен прозорец.

This site is registered on wpml.org as a development site. Switch to a production site key to remove this banner.