Имоти
Имоти

Тристаен апартамент – кв. Остромила

Пловдив, Остромила

Общ преглед

  • 3-стаен
  • Тип имот
  • 2
  • Спални
  • 2
  • Бани
  • 94
  • 2027
  • Година на строеж

Описание

БИЛДИНГ БОКС предлага за продажба тристаен апартамент в кв. Остромила.


Предимства на имота:

- ЛОКАЦИЯ: Най-развита инфраструктурна локация в кв. Остромила. Намира се на асфалтов път с нови ниски сгради и къщи.

- СХЕМИ НА ПЛАЩАНЕ: Гъвкава схема на плащане.

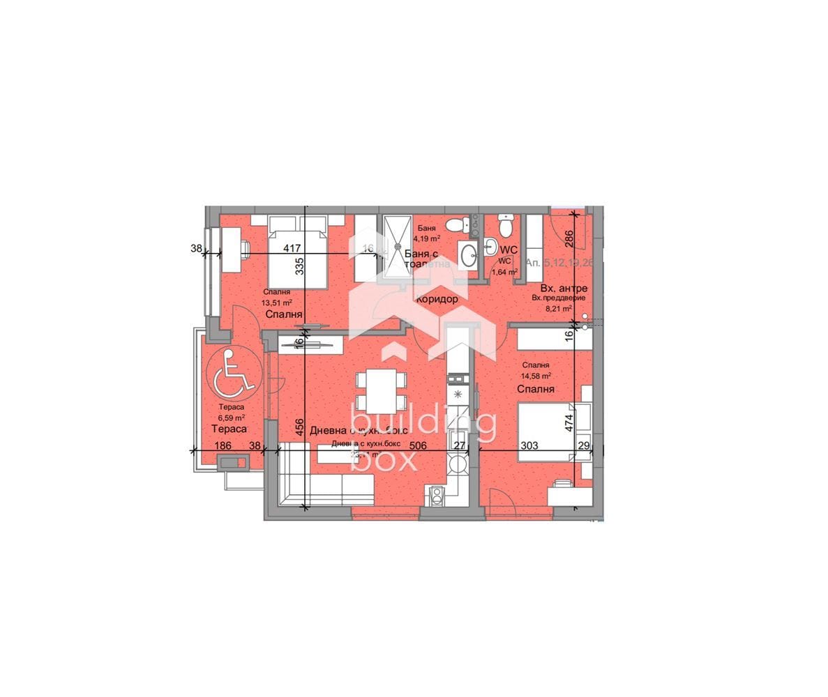
- РАЗПРЕДЕЛЕНИЕ: Просторна всекидневна с кухненски бокс с площ от 23.11 кв.м., две спални с площ от 13.51 кв.м. и 12.51 кв.м., антре, склад, баня с тоалетна, отделна тоалетна, тераса и мазе.

- ЕТАЖНОСТ: 5-ти строителен етаж от общо 6.

- ОТОПЛЕНИЕ: Електричество.

- ИЗЛОЖЕНИЕ: Югоизток.

- ПАРКИРАНЕ: Налични подземни и наземни гаражи, както и подземни паркоместа.

- СГРАДА: Апартаментът се намира в нова сграда, състояща се от 2 секции по 5 жилищни етажа с по 6 и 7 апартамента на етаж*.

- ЕТАП НА СТРОИТЕЛСТВО: Сградата е пред АКТ 14. Въвеждане в експлоатация се очаква през 2027г.


* НИСЪК ПРОЦЕНТ ОБЩИ ЧАСТИ!


БИЛДИНГ БОКС предоставя безплатна консултация и съдействие при финансиране на избрания от Вас имот.

Оферта № 14308

Имаш интерес?

Свържи се
с нас

Имаш интерес?

Свържи се
с нас

Допълнителни детайли

  • Номер на имота: 14308
  • Цена: € 135,000
    (264,037.05 лв.)
  • Спални: 2
  • Бани: 2
  • Площ: 94
  • Статус на имота: Купи

Размер на кредит

| €

2,500 €

500,000 €

Срок на кредит

| месеца

36 месеца

360 месеца

Лихвен процент

| %

2.45%

5%

Месечна вноска

ГПР %

Общо дължима сума

Действия по вписване на ипотека (Еднократно)

€20.45

Такса за проверка и анализ на обезпечението по кредита (Еднократно)

€204.52

Такса план (Месечно)

€6.13

Такса за оценка на обезпечение (Еднократно)

€120.15

Powered by Credia

Стойност на имота

€135000 / 264038 лв.

Ценови диапазон за наем на 3-стаен в Остромила, Пловдив

€530 - €630

Процент на възвръщаемост:

5.6%

*Цените са ориентировачни. За повече информация се свържете с наш консултант.

Powered by Credia

Обадете се 0877190777
ПОДОБНИ ИМОТИ

ПОДОБНИ
ИМОТИ

Сравняване на списъци

Сравни
Джунейт Узунов
  • Джунейт Узунов

Внимание

Академиите в София, Пловдив и Варна се провеждат 3 пъти в годината – в началото на всяка година, на пролет и на есен.

Очаквайте да се свържем с вас, за да се запишете за следващият свободен прозорец.

This site is registered on wpml.org as a development site. Switch to a production site key to remove this banner.