Имоти
Имоти

Тристаен апартамент м-т Гърдова глава, кв. Бояна

София, м-т Гърдова глава

Общ преглед

  • 3-стаен
  • Тип имот
  • 2
  • Спални
  • 153
  • 2025
  • Година на строеж

Описание

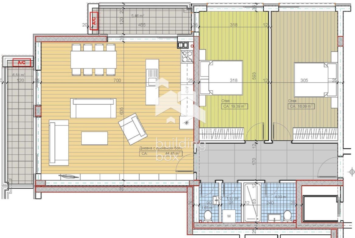
Светъл и просторен имот с 45 кв.м всекидневна, сградата е пред АКТ 15, само на 200 м. от градски транспорт, в тиха и спокойна улица.


Билдинг Бокс предлага за продажба прекрасен тристаен апартамент, с инвестиционен потенциал, в модерна новострояща се сграда в м-т Гърдова глава, кв. Бояна.


Апартаментът е на 2-ри етаж, с чиста площ 129.59 кв.м и обща площ 153.45 кв.м. Апартаменти със същото разпределение се предлагат и на горните етажи.


Изложение: юг-запад


Сградата е след АКТ 14 чл. 181, АКТ 16 се очаква до края на 2025г.


Отоплението е на газ, с изградени изводи за радиатори и климатици. Инвеститорът предлага изграждане на подово отопление на преференциални цени.


Имотът включва:

  • Всекидневна - 44.45 кв.м
  • Спалня 1 - 18.09 кв.м
  • Спалня 2 - 19.39 кв.м
  • Баня с тоалетна - 4.39 кв.м
  • Тоалетна - 1.67 кв.м
  • Мокро помещение - 1.65 кв.м
  • Южна лоджия - 6.81 кв.м
  • Западна лоджия - 5.46 кв.м
  • Склад в сутерена - 4.16 кв.м светла площ
  • Антре - 9.10 кв.м


Паркиране: към имота може да се закупят паркоместа и гаражи.


ПРЕДИМСТВА НА ПРОЕКТА:


Сградата се изпълнява с водоплътен бетон клас С 25/30 като допълнителна гаранция за високоякостните характеристики на стоманобетонната конструкция. Този бетон е над изискванията по проект и с него се строят много високи сгради. Зидарията се изпълнява с тухли „ВИНЕРБЕРГЕР“.


Сградата ще е с изцяло окачена вентилеруема фасада, ще се използват материали като: стъклокерамика, HPL и еталбонд, по разработен дизайнерски проект, което ще придаде стил и уникалност на сградата. Дограмата ще е от композитен материал 86 мм, модел „GENEO“ на REHAU с троен стъклопакет, цвят антрацит (тъмносив).


Асансьорите ще са 8 местни на световния производител ОТИС. 


Входните врати на апартаментите ще са поръчкови, метални, блиндирани и с топлоизолация. 


За локацията:


Жилищната сграда се намира в най-хубавата част на местност Гърдова глава, на 200 метра от околовръстния път и бул.“Цар Борис ІІІ“, в околностите има училище, детска градина, хипермаркети Фантастико и Lidl.

Местност Гърдова глава е част от зелената яка на гр.София. Районът е близо до основни булеварди и градски транспорт и едновременно с това е тихо и спокойно място с чист въздух. През пролетта въздухът е с аромат на цветя, а през цялата година ваши съседи ще са борове с катерици и кълвачи.


Билдинг Бокс предоставя безплатна консултация и съдействие при финансиране на избрания от Вас имот.


Оферта № 22493

Имаш интерес?

Свържи се
с нас

Имаш интерес?

Свържи се
с нас

Допълнителни детайли

  • Номер на имота: 22493
  • Цена: € 365,559
    (714,971.26 лв.)
  • Спални: 2
  • Площ: 153
  • Статус на имота: Купи

Размер на кредит

| €

2,500 €

500,000 €

Срок на кредит

| месеца

36 месеца

360 месеца

Лихвен процент

| %

2.45%

5%

Месечна вноска

ГПР %

Общо дължима сума

Действия по вписване на ипотека (Еднократно)

€20.45

Такса за проверка и анализ на обезпечението по кредита (Еднократно)

€204.52

Такса план (Месечно)

€6.13

Такса за оценка на обезпечение (Еднократно)

€120.15

Powered by Credia

Стойност на имота

€365559 / 714972 лв.

Няма данни за наемите в района.

Powered by Credia

Обадете се 0877734412
ПОДОБНИ ИМОТИ

ПОДОБНИ
ИМОТИ

Сравняване на списъци

Сравни
Антонио Динев
  • Антонио Динев

Внимание

Академиите в София, Пловдив и Варна се провеждат 3 пъти в годината – в началото на всяка година, на пролет и на есен.

Очаквайте да се свържем с вас, за да се запишете за следващият свободен прозорец.

This site is registered on wpml.org as a development site. Switch to a production site key to remove this banner.