Имоти
Имоти

Тристаен апартамент пред АКТ16 – до “ПУ” нова сграда

Пловдив, Кършияка

Общ преглед

  • 3-стаен
  • Тип имот
  • 2
  • Спални
  • 190
  • 2025
  • Година на строеж

Описание

БИЛДИНГ БОКС предлага за продажба тристаен апартамент в малка бутикова сграда.


Предимства на имота:

- ЛОКАЦИЯ: В непосредствена близост до Пловдивски Университет.

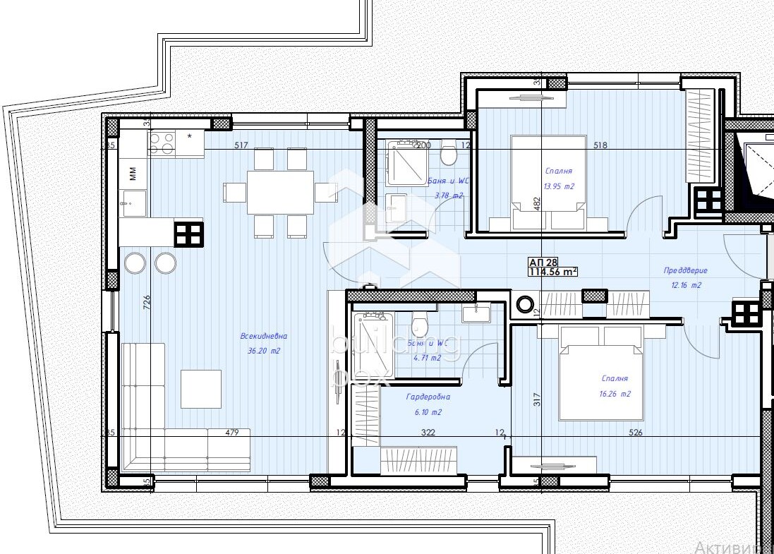
- РАЗПРЕДЕЛЕНИЕ: Просторна всекидневна с кухненски бокс с площ от 36,20 кв.м., родителска спалня с площ от 16,26 кв.м. и дрешник към нея с площ от 6,10 кв.м., самостоятелна баня 4,71 кв.м., втора спалня с площ от 13,95 кв.м., антре 12,16 кв.м., втора баня с тоалетна 3,78 кв.м. и голяма панорамна тераса с три изложения 57 кв.м.*

- ЕТАЖНОСТ: Шести етаж (пети жилищен).

- ОТОПЛЕНИЕ: Електричество.

- ИЗЛОЖЕНИЕ: ЗАПАД / СЕВЕР / ИЗТОК

- ПАРКИРАНЕ: Наличие на надземни паркоместа и гаражи.

- СГРАДА: Малка бутикова сграда с общо 30 апартамента.

- ЕТАП НА СТРОИТЕЛСТВО: Сградата е с АКТ 14. Въвеждане в експлоатация (АКТ 16) се очаква до края на 2025г.


* НИСЪК ПРОЦЕНТ ОБЩИ ЧАСТИ с НАЙ-НИСКА ЦЕНА В РАЙОНА


БИЛДИНГ БОКС предоставя безплатна консултация и съдействие при финансиране на избрания от Вас имот.

Оферта № 25608

Имаш интерес?

Свържи се
с нас

Имаш интерес?

Свържи се
с нас

Допълнителни детайли

  • Номер на имота: 25608
  • Цена: € 200,000
    (391,166.00 лв.)
  • Спални: 2
  • Площ: 190
  • Статус на имота: Купи

Размер на кредит

| €

2,500 €

500,000 €

Срок на кредит

| месеца

36 месеца

360 месеца

Лихвен процент

| %

2.45%

5%

Месечна вноска

ГПР %

Общо дължима сума

Действия по вписване на ипотека (Еднократно)

€20.45

Такса за проверка и анализ на обезпечението по кредита (Еднократно)

€204.52

Такса план (Месечно)

€6.13

Такса за оценка на обезпечение (Еднократно)

€120.15

Powered by Credia

Стойност на имота

€200000 / 391166 лв.

Ценови диапазон за наем на 3-стаен в Кършияка, Пловдив

€520 - €620

Процент на възвръщаемост:

3.72%

*Цените са ориентировачни. За повече информация се свържете с наш консултант.

Powered by Credia

Обадете се 0877190777
ПОДОБНИ ИМОТИ

ПОДОБНИ
ИМОТИ

Сравняване на списъци

Сравни
Ана Димитрова
  • Ана Димитрова

Внимание

Академиите в София, Пловдив и Варна се провеждат 3 пъти в годината – в началото на всяка година, на пролет и на есен.

Очаквайте да се свържем с вас, за да се запишете за следващият свободен прозорец.

This site is registered on wpml.org as a development site. Switch to a production site key to remove this banner.