БИЛДИНГ БОКС предлагаа просторен тристаен апартамент в нова малка бутикова сграда, разположена в с. Белащица.
Сградата се отличава с висококачествено изпълнение и иновативни системи за отопление и охлаждане.
Характеристики и предимства на имота:
- ЛОКАЦИЯ: Село Белащица се намира само на 10 минути с автомобил от гр. Пловдив. Районът е с изградена инфраструктура, добра пътна връзка и предлага спокойна жилищна среда.
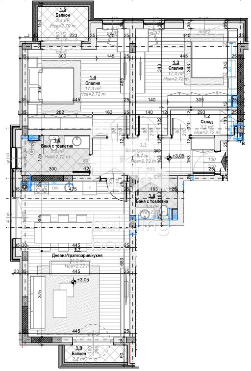
- ПЛОЩ: Апартаментът е с обща площ от 119 кв.м., чиста - и 110.30 кв.м.
- РАЗПРЕДЕЛЕНИЕ: Просторна всекидневна 31 кв.м., две самостоятелни спални по 17 кв.м., две бани с тоалетни и склад.
- ИЗЛОЖЕНИЕ: Североизток / Югозапад.
- ЕТАЖ: 2-ри етаж от общо 4.
- ПАРКИРАНЕ: Има възможност за закупуване на гаражи.
Характеристики на сградата и апартаментите:
1. Подготовка за водно-подова система с термопомпа „въздух-вода“, осигуряваща равномерна температура, ниски разходи и по-здравословна среда. Заложени са тръби в пода, топлоизолация и изводи за въздушни конвектори по стените;
2. Допълнителна шумоизолация под замазката във всеки апартамент;
3. Алуминиева дограма с троен стъклопакет и стъкло „четири сезона“ от фирма „ЕТЕМ“ с луксозен обков;
4. Електрически щори „Techno Roll“, монтирани заедно с прозорците, с дискретен дизайн и отлична топло- и звукоизолация;
5. Вентилируема фасада с твърда минерална вата (12 см) и завършващо покритие с плоскости от Еталбонд, Ламинан и HPL. Всички използвани материали са сертифицирани по отношение на качество, здравина и екологичност;
6. LED фасадно осветление;
7. Видеонаблюдение с възможност за запис – камери по външния периметър и във вътрешността на сградата;
8. Видеодомофони във всеки апартамент и централен вход с електрическа брава;
9. Автоматични секционни гаражни врати Hormann с висока топлоизолация и безшумно движение.
БИЛДИНГ БОКС предоставя безплатна консултация и съдействие при финансиране на избрания от Вас имот.
Оферта №23988
| €
2,500 €
500,000 €
| месеца
36 месеца
360 месеца
| %
2.45%
5%
Месечна вноска
ГПР %
Общо дължима сума
Действия по вписване на ипотека (Еднократно)
€20.45
Такса за проверка и анализ на обезпечението по кредита (Еднократно)
€204.52
Такса план (Месечно)
€6.13
Такса за оценка на обезпечение (Еднократно)
€120.15
Powered by Credia
Подходящ се за предварително одобрение!
Lorem ipsum dolor sit amet, consectetur adipiscing elit. Maecenas imperdiet leo nisl, et porta massa tempus eget. Sed vestibulum sagittis ante eu dictum.
Няма данни за наемите в района.
Powered by Credia
Подходящ се за предварително одобрение!
Lorem ipsum dolor sit amet, consectetur adipiscing elit. Maecenas imperdiet leo nisl, et porta massa tempus eget. Sed vestibulum sagittis ante eu dictum.
Сравняване на списъци
СравниМоля, въведете вашето потребителско име или имейл адрес. Ще получите връзка за създаване на нова парола по имейл.
Академиите в София, Пловдив и Варна се провеждат 3 пъти в годината – в началото на всяка година, на пролет и на есен.
Очаквайте да се свържем с вас, за да се запишете за следващият свободен прозорец.