БИЛДИНГ БОКС предлага за продажба тристаен апартамент с двор в новострояща се сграда
-ЛОКАЦИЯ: Разположена в кв. Аспарухово, жилищната сграда предоставя уникално съчетание между чист свеж горски въздух и спокойствие.
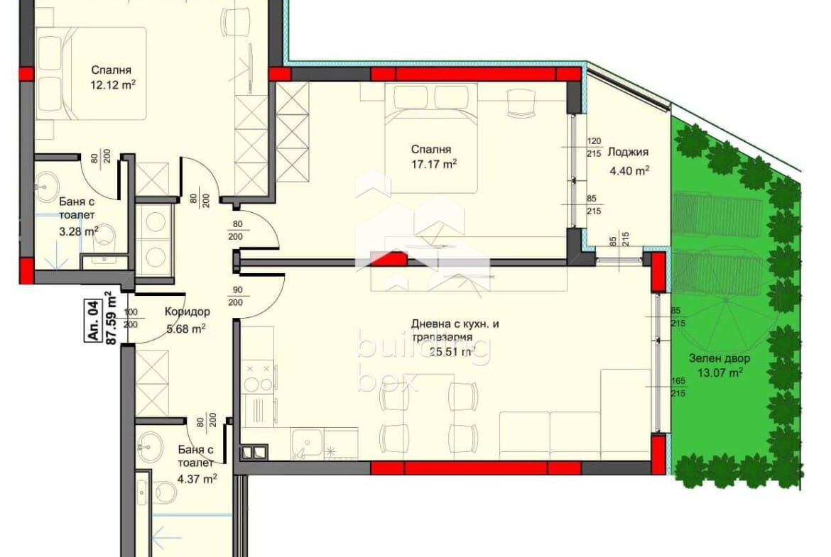
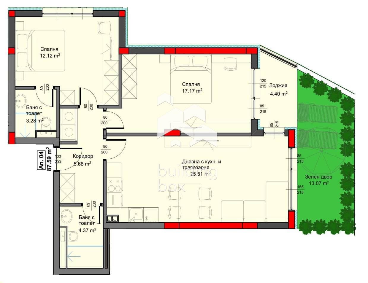
-РАЗПРЕДЕЛЕНИЕ: Апартаментът се състои от 2 спални по 17.17 и 12.12 кв.м., дневна с кухненски бокс и трапезария - 25.51 кв.м., 2 бани с тоалетна, килер, коридор, лоджия - 4.40 кв.м и двор.
-ЕТАЖНОСТ: Етаж 1 от общо 6
-ОТОПЛЕНИЕ: Електричество
-ИЗЛОЖЕНИЕ: Североизток
-ПАРКИРАНЕ: Налични паркоместа
-СГРАДА: Сградата предлага удобни и съвременни жилища за своите бъдещи обитатели. Проектирана е със съвременен дизайн и се състои от 6 жилищни етажа и едно подземно ниво.
ЕТАП НА СТРОИТЕЛСТВО: Сградата е с Разрешение за строеж
ИНВЕСТИТОР: Инвеститор с доказана история от вече завършени сгради, които могат да бъдат разгледани като начин на изпълнение, качество, външен вид и стил.
Билдинг Бокс предоставя безплатна консултация и съдействие при финансиране на избрания от Вас имот.
Оферта №17893
| €
2,500 €
500,000 €
| месеца
36 месеца
360 месеца
| %
2.45%
5%
Месечна вноска
ГПР %
Общо дължима сума
Действия по вписване на ипотека (Еднократно)
€20.45
Такса за проверка и анализ на обезпечението по кредита (Еднократно)
€204.52
Такса план (Месечно)
€6.13
Такса за оценка на обезпечение (Еднократно)
€120.15
Powered by Credia
Подходящ се за предварително одобрение!
Lorem ipsum dolor sit amet, consectetur adipiscing elit. Maecenas imperdiet leo nisl, et porta massa tempus eget. Sed vestibulum sagittis ante eu dictum.
Ценови диапазон за наем на 3-стаен в Аспарухово, Варна
€350 - €460
Процент на възвръщаемост:
4.15%
*Цените са ориентировачни. За повече информация се свържете с наш консултант.
Powered by Credia
Подходящ се за предварително одобрение!
Lorem ipsum dolor sit amet, consectetur adipiscing elit. Maecenas imperdiet leo nisl, et porta massa tempus eget. Sed vestibulum sagittis ante eu dictum.
Сравняване на списъци
СравниМоля, въведете вашето потребителско име или имейл адрес. Ще получите връзка за създаване на нова парола по имейл.
Академиите в София, Пловдив и Варна се провеждат 3 пъти в годината – в началото на всяка година, на пролет и на есен.
Очаквайте да се свържем с вас, за да се запишете за следващият свободен прозорец.