Имоти
Имоти

Тристаен апартамент с голяма тераса с АКТ 16

Пловдив, Южен

Общ преглед

  • 3-стаен
  • Тип имот
  • 2
  • Спални
  • 178
  • 2024
  • Година на строеж

Описание

БИЛДИНГ БОКС има удоволствието да Ви представи тристаен апартамент в модерна сграда с изчистена архитектура.


Предимства на имота:

- ЛОКАЦИЯ: Апартаментът се намира на края на кв. Южен и началото на кв. Беломорски - прекрасна локация, както за живеене, така и за инвестиция. Ако предпочитате ниското строителство, спокойствието и чистия въздух, а същевременно желаете да сте близо до градската среда - това е Вашият апартамент.

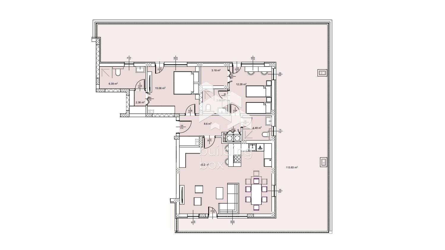
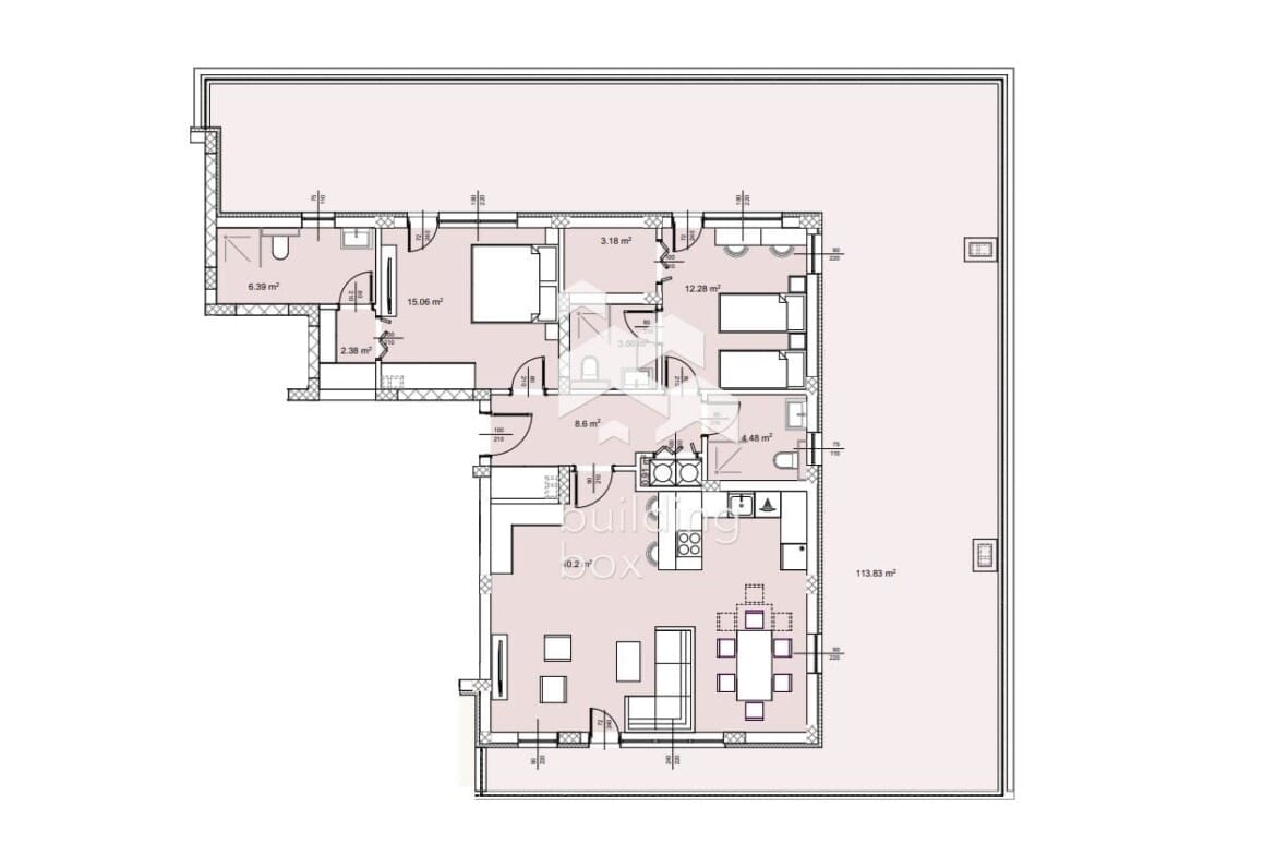
- РАЗПРЕДЕЛЕНИЕ: С възможност за преустройство след закупуване. Състои се от просторна всекидневна с кухненски бокс с площ от 40,2 кв.м, с голяма тераса с площ от 113.83 кв.м, която дава светлина и простор на целия апартамент. Две спални помещения с площ от 12,28 кв.м и 15,06 кв.м с гардеробни и самостоятелни бани с тоалетни. Апартаментът разполага с още една баня и антре.

- ЕТАЖ: 4-ти етаж от общо 4.

- ОТОПЛЕНИЕ: Електричество.

- ИЗЛОЖЕНИЕ: Три изложения - СЕВЕР/ИЗТОК/ЮГ.

- СГРАДА: Модерна четириетажна Г-образна сграда. С АКТ 16.


БИЛДИНГ БОКС предоставя безплатна консултация и съдействие при финансиране на избрания от Вас имот.

Оферта № 1737

Имаш интерес?

Свържи се
с нас

Имаш интерес?

Свържи се
с нас

Допълнителни детайли

  • Номер на имота: 1737
  • Цена: € 248,343
    (485,716.69 лв.)
  • Спални: 2
  • Площ: 178
  • Статус на имота: Купи
Обадете се 0879900984
ПОДОБНИ ИМОТИ

ПОДОБНИ
ИМОТИ

Сравняване на списъци

Сравни
Кристина Шупак
  • Кристина Шупак

Внимание

Академиите в София, Пловдив и Варна се провеждат 3 пъти в годината – в началото на всяка година, на пролет и на есен.

Очаквайте да се свържем с вас, за да се запишете за следващият свободен прозорец.

This site is registered on wpml.org as a development site. Switch to a production site key to remove this banner.