Имоти
Имоти

Тристаен апартамент в Център

София, Център

Общ преглед

  • 3-стаен
  • Тип имот
  • 2
  • Спални
  • 111
  • 2026
  • Година на строеж

Описание

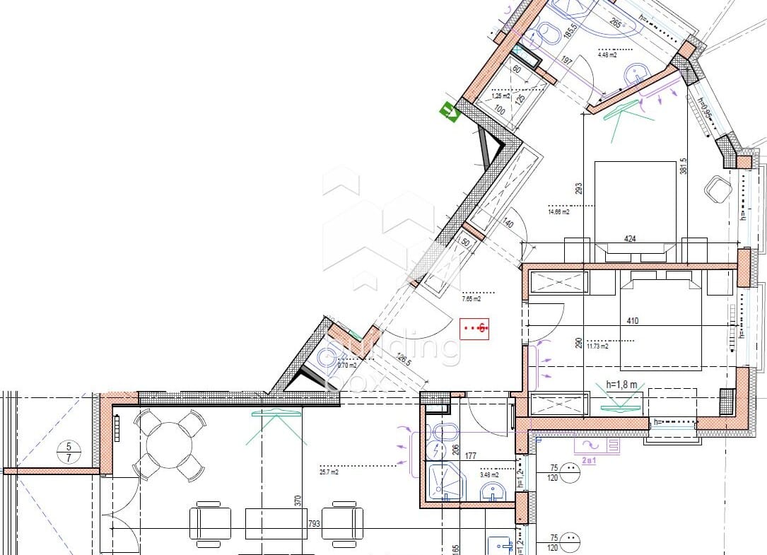
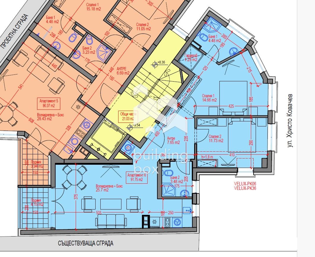
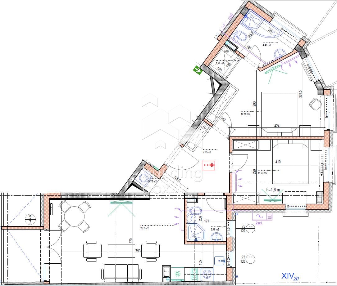
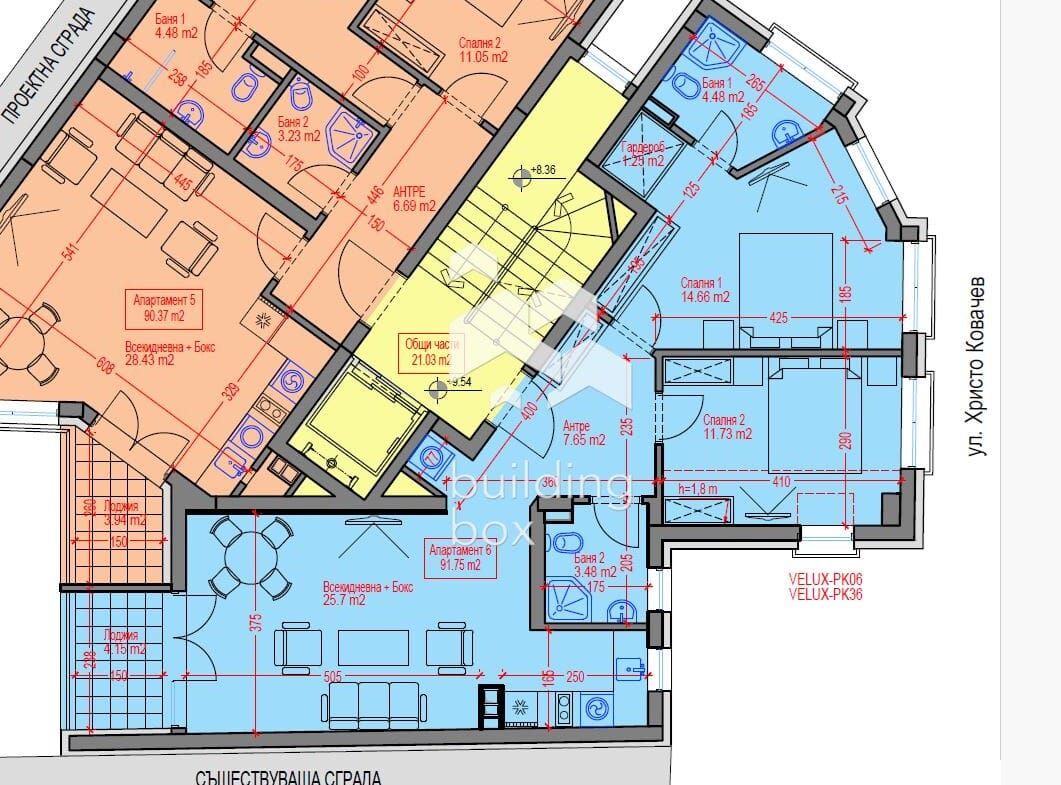
Билдинг Бокс предлага за продажба тристаен апартамент в малка кокетна сграда от 9 апартамента в сърцето на София на метри от бул. Васил Левски.

 

Апартаментът се намира на четвърти етаж от общо шест, със застроена площ 91,75 кв.м и се състои от антре, дневна с кухненски бокс, две спални, две бани с тоалетна и лоджия. Отоплението е предвидено на ТЕЦ. Изложението е юг, север.

 

Към имота се предлага и мазе с площ от 4,84 кв.м.

 

Сградата е разположена в централната част на столицата, на пешеходно разстояние от основните културни забележителности на стара София, намира се на тиха и спокойна улица с ниски нива на шумово замърсяване, в непосредствена близост до учебни заведения, общински и държавни учреждения, магазини, заведения за хранене, банки, медицински центрове и основни пътни артерии, с бърз и удобен достъп до градски транспорт. В сградата ще можете да се насладите на висок стандарт на градски живот, гарантиран чрез модерни строителни решения с безкомпромисно качество на използваните материали. Сградата се откроява със стилен силует, елегантен дизайн, съчетаваща стил и красива архитектура, които не могат да останат незабелязани.

 

Сградата е с Разрешение за строеж и ще бъде завършена ноември 2026г.

 

Има възможност за закупуване на партерни гаражи и подземни паркоместа.

 

Може да се възползвате от изключително гъвкави схеми на плащане, позволяващи комбинирани начини на финансиране.

 

Билдинг Бокс предоставя безплатна консултация и съдействие при финансиране на избрания от Вас имот. 


Оферта № 8603

Имаш интерес?

Свържи се
с нас

Имаш интерес?

Свържи се
с нас

Допълнителни детайли

  • Номер на имота: 8603
  • Цена: € 332,130
    (649,589.82 лв.)
  • Спални: 2
  • Площ: 111
  • Статус на имота: Купи

Размер на кредит

| €

2,500 €

500,000 €

Срок на кредит

| месеца

36 месеца

360 месеца

Лихвен процент

| %

2.45%

5%

Месечна вноска

ГПР %

Общо дължима сума

Действия по вписване на ипотека (Еднократно)

€20.45

Такса за проверка и анализ на обезпечението по кредита (Еднократно)

€204.52

Такса план (Месечно)

€6.13

Такса за оценка на обезпечение (Еднократно)

€120.15

Powered by Credia

Стойност на имота

€332130 / 649590 лв.

Ценови диапазон за наем на 3-стаен в Център, София

€850 - €1050

Процент на възвръщаемост:

3.79%

*Цените са ориентировачни. За повече информация се свържете с наш консултант.

Powered by Credia

Обадете се 0877734412
ПОДОБНИ ИМОТИ

ПОДОБНИ
ИМОТИ

Сравняване на списъци

Сравни
Владимир Аговски
  • Владимир Аговски

Внимание

Академиите в София, Пловдив и Варна се провеждат 3 пъти в годината – в началото на всяка година, на пролет и на есен.

Очаквайте да се свържем с вас, за да се запишете за следващият свободен прозорец.

This site is registered on wpml.org as a development site. Switch to a production site key to remove this banner.