Имоти
Имоти

Тристаен апартамент в ж.к. Оборище

София, Оборище

Общ преглед

  • 3-стаен
  • Тип имот
  • 2
  • Спални
  • 1
  • Баня
  • 125
  • 2026
  • Година на строеж

Описание

НОВА Гореща оферта! Само 2000€/кв.м! Без аналог на цената за района в луксозна новострояща се сграда с очакван АКТ 16 в края на 2026г.


Имотът се намира на етаж 7 от общо 9, като е изключително подходящ за живеене, поради просторните пространства в имота, както за инвестиционен имот - дългосрочно или краткосрочно отдаване под наем тип Airbnb поради непосредствената си близост до метростанция Хаджи Димитър и метростанция Театрална.


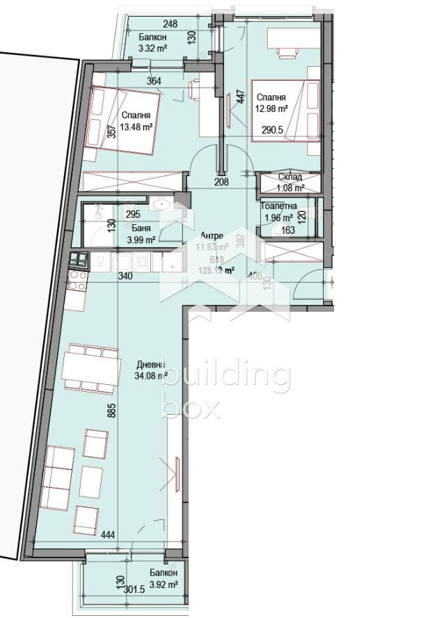
Имотът е с много добро разпределение, със застроена площ от 113кв.м. Състои се от дневна с кухненски бокс, 2 спални, баня с тоалетна, една самостоятелна тоалетна, две тераси, склад и коридор. Изложението на апартамента е север-юг. Сградата е предвидена да се отоплява на ТЕЦ и климатици.



Възможност за покупка на паркомясто на цена от 25 000 евро.


На пешеходно разстояние се намират метростанция Хаджи Димитър и Театрална, БИЛЛА, спирки на градския транспорт, на 800м от парка Заимов , театър София и театър малък градски зад канала, спортни зали, стадион Георги Аспарухов, 143 ОУ, Фитнес, заведения за хранене и др.


Билдинг Бокс предоставя безплатна консултация и съдействие при финансиране на избрания от Вас имот.


Оферта:19041

Имаш интерес?

Свържи се
с нас

Имаш интерес?

Свържи се
с нас

Допълнителни детайли

  • Номер на имота: 19041
  • Цена: € 275,418
    (538,670.79 лв.)
  • Спални: 2
  • Баня: 1
  • Площ: 125
  • Статус на имота: Купи

Размер на кредит

| €

2,500 €

500,000 €

Срок на кредит

| месеца

36 месеца

360 месеца

Лихвен процент

| %

2.45%

5%

Месечна вноска

ГПР %

Общо дължима сума

Действия по вписване на ипотека (Еднократно)

€20.45

Такса за проверка и анализ на обезпечението по кредита (Еднократно)

€204.52

Такса план (Месечно)

€6.13

Такса за оценка на обезпечение (Еднократно)

€120.15

Powered by Credia

Стойност на имота

€275418 / 538671 лв.

Ценови диапазон за наем на 3-стаен в Оборище, София

€850 - €1050

Процент на възвръщаемост:

4.57%

*Цените са ориентировачни. За повече информация се свържете с наш консултант.

Powered by Credia

Обадете се 0879900994
ПОДОБНИ ИМОТИ

ПОДОБНИ
ИМОТИ

Сравняване на списъци

Сравни
Мартин Емануилов
  • Мартин Емануилов

Внимание

Академиите в София, Пловдив и Варна се провеждат 3 пъти в годината – в началото на всяка година, на пролет и на есен.

Очаквайте да се свържем с вас, за да се запишете за следващият свободен прозорец.

This site is registered on wpml.org as a development site. Switch to a production site key to remove this banner.